Spatii de birouri de inchiriat in Unimed Business Center
Spatii birouri de inchiriat intr-o cladire de birouri amplasata in zona Piata Universitatii, Sector 2, Bucuresti
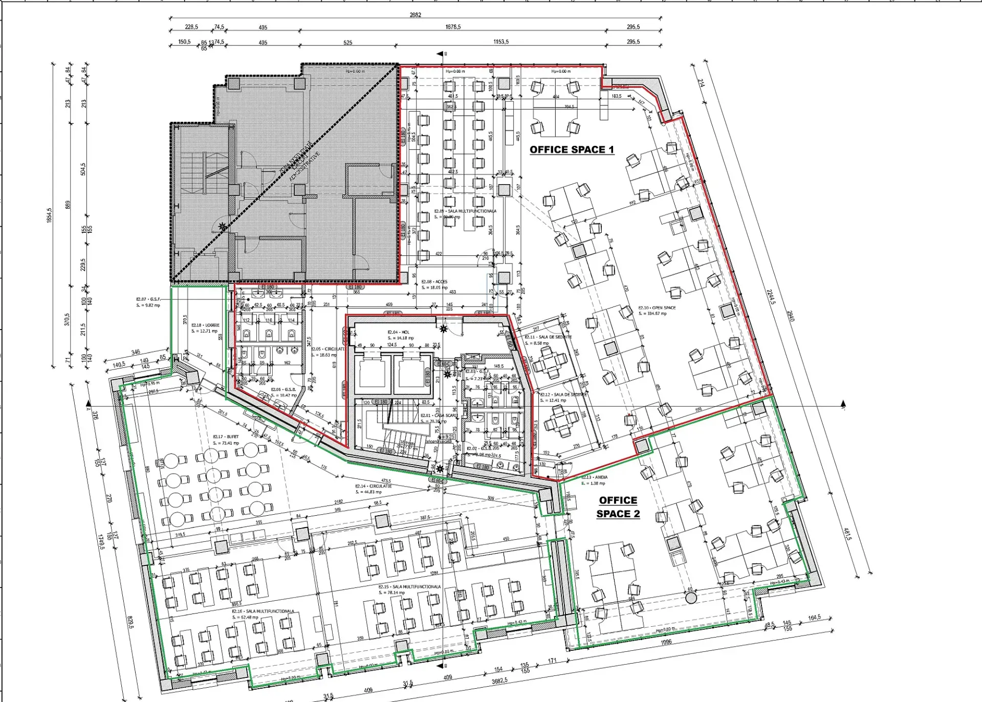
TABEL DETALIAT SUPRAFEȚE DISPONIBILE
| Etaj | Suprafață (m2) | Descriere | Disponibil | |||
| 2 | 821 | open space, sali multifunctionale, bucatarie, logie, GS Posibilitate impartire 380 - 442 m2 | Imediat | Poze | Plan | |
| 4 | 325 | open space, 2 zone de recreere / birouri, 3 sali de sedinta, logie + terasa 7m2 | Aprilie 2026 | Plan | ||
| 5 | 544 | open space, sala conferinte, 7 birouri, camera server, depozitare, GS, terasa | Imediat | Poze | Plan |
Birouri de închiriat lânga Piața Universității
Unimed Business Center este amplasat în zona ultracentrală a Capitalei, în spatele Teatrului Național și a Pieței Universității. Clădirea este situată pe Strada Tudor Arghezi, strada care leagă Piața Rosetti de Strada Batiștei.
Locația ultracentrală îi conferă clădirii o accesibilitate auto excelentă, în timp ce infrastructura de transport public include metrou și linii de autobuz / troleibuz în imediata vecinătate (Piața Universității).
Clădirea Unimed are o suprafața închiriabilă de 6.000 m2, cu o suprafață pe nivel de aproximativ 780 m2. Clădirea include un nivel subteran pentru parcare, parter și 7 etaje. Parcarea dispune de un număr total de 72 locuri.
Clădirea a fost finalizată în 2005, având specificații moderne precum layout open-space, HVAC, tavan suspendat, access securizat, senzori de fum, servicii recepție etc. Principalii chiriași ai clădirii sunt Microsoft și Arup.
Status Cladire finalizata
Dată finalizare 2005
Niveluri S+P+7
Suprafață închiriabilă 6,000 m²
Suprafață etaj curent 780 m²
Locuri parcare 72
- Servicii receptie
- Parcare proprie
- Cafenea
- HVAC
- Tavan Suspendat
- Acces Securizat
- Inaltime utila minim 2,7 metri
- Paza 24/7
- Lift/Lifturi
- CCTV / Supraveghere Video
- Detectoare Fum/Foc
- Mocheta
Alte oferte din Universitate
Oferte disponibile: 30
Str. Thomas Masaryk 17 , Universitate , București
Str. Jean Louis Calderon 38 , Universitate , București
Str. Sfantul Spiridon 7 , Universitate , București
Str. Semilunei 4-6 , Universitate , București
Str. Tudor Arghezi 21 , Universitate , București
Strada General Emanoil Ion Florescu 8 , Universitate , București
Bdul. Regina Elisabeta 28 , Universitate , București
Str. Sperantei 21 , Universitate , București
Str. Thomas Masaryk 17 , Universitate , București
Bdul. Nicolae Balcescu 17A , Universitate , București
Str. Tudor Arghezi 21 , Universitate , București
Str. Dem Dobrescu 5 , Universitate , București
Str. Academiei 29 , Universitate , București
Str. Matei Millo 5 , Universitate , București
Str. Jean Louis Calderon 57 , Universitate , București
Str. Semilunei 4-6 , Universitate , București
Str. Nicolae Filipescu 39-41 , Universitate , București
Str. Vasile Lascar 31 , Universitate , București
Str. Matei Millo 6 , Universitate , București
Str. Armand Calinescu 26 , Universitate , București
Str. N.Filipescu 28 , Universitate , București
Str. Italiana 24 , Universitate , București
Bd.Carol I, Nr.34-36 , Universitate , București
Jean Louis Calderon 70 , Universitate , București
Academiei 39-41 , Universitate , București
Ion Campineanu 11 , Universitate , București
Academiei 28-30 , Universitate , București
Bd. I.C. Bratianu nr. 10 , Universitate , București
Negustori 12 , Universitate , București
Str. Maria Rosetti 6 , Universitate , București
Ești chiriaș?
Contactează-ne și vei primi consultanță gratuită cu privire la:
- condițiile existente în piață
- renegociere termeni contractuali
- opțiuni de relocare
Ești proprietar?
Contactează-ne dacă vrei să fii prezent în cea mai avansată platformă online dedicată închirierii/vânzării de birouri
Contactează-neVIDEO 360 de grade: puteți schimba unghiul de vizualizare prin click / rotire pe video.
Utilizatorii iPhone: faceți click pe titlul din VIDEO pentru o vizualizare completă în aplicația YouTube.







































