Spații de birouri în Maria Rosetti Tower
Spații de birouri in zona ultracentrală a Bucureștiului, într-o clădire modernă amplasată la 2 minute de Bd. Magheru, pe Strada Maria Rosetti nr. 6, sector 2
TABEL DETALIAT SUPRAFEȚE DISPONIBILE
| Etaj | Suprafață (m2) | Descriere | Disponibil | |||
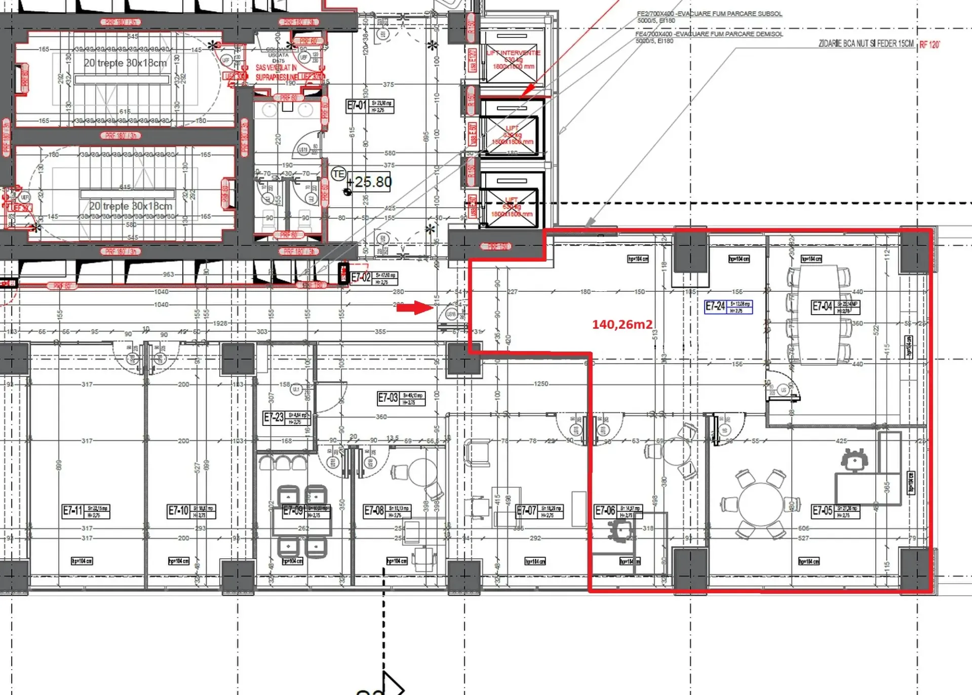
| 7 | 140 | zona receptie, 2 birouri, sala de sedinte, chicineta la comun | Imediat | Poze | Plan | |
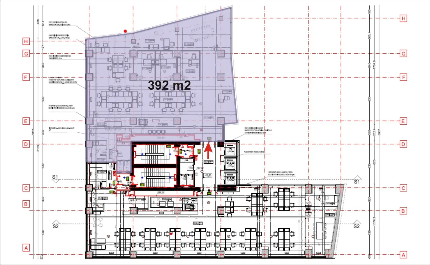
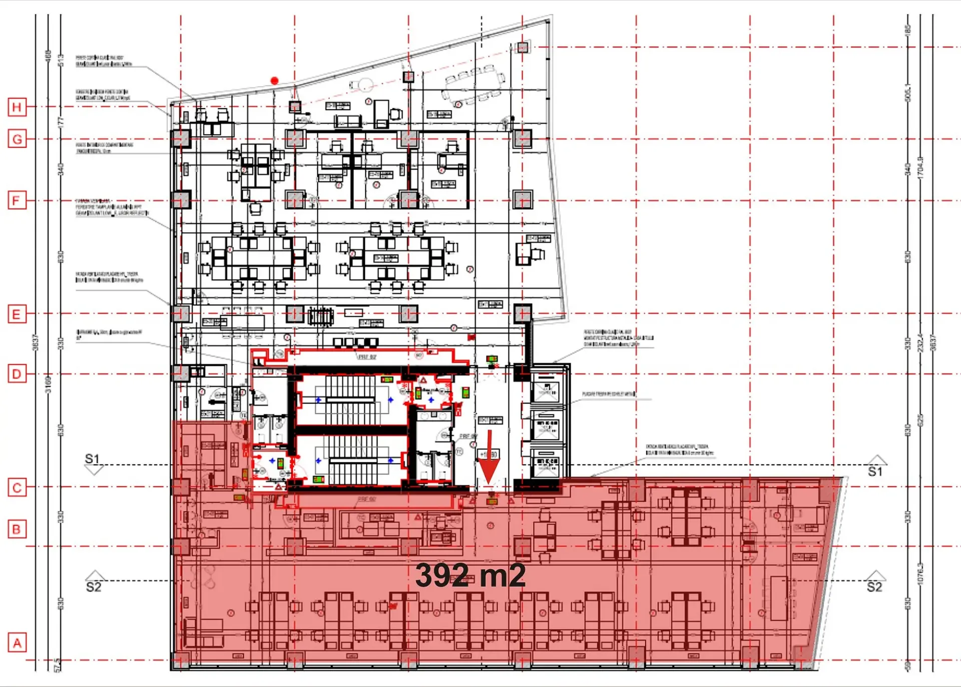
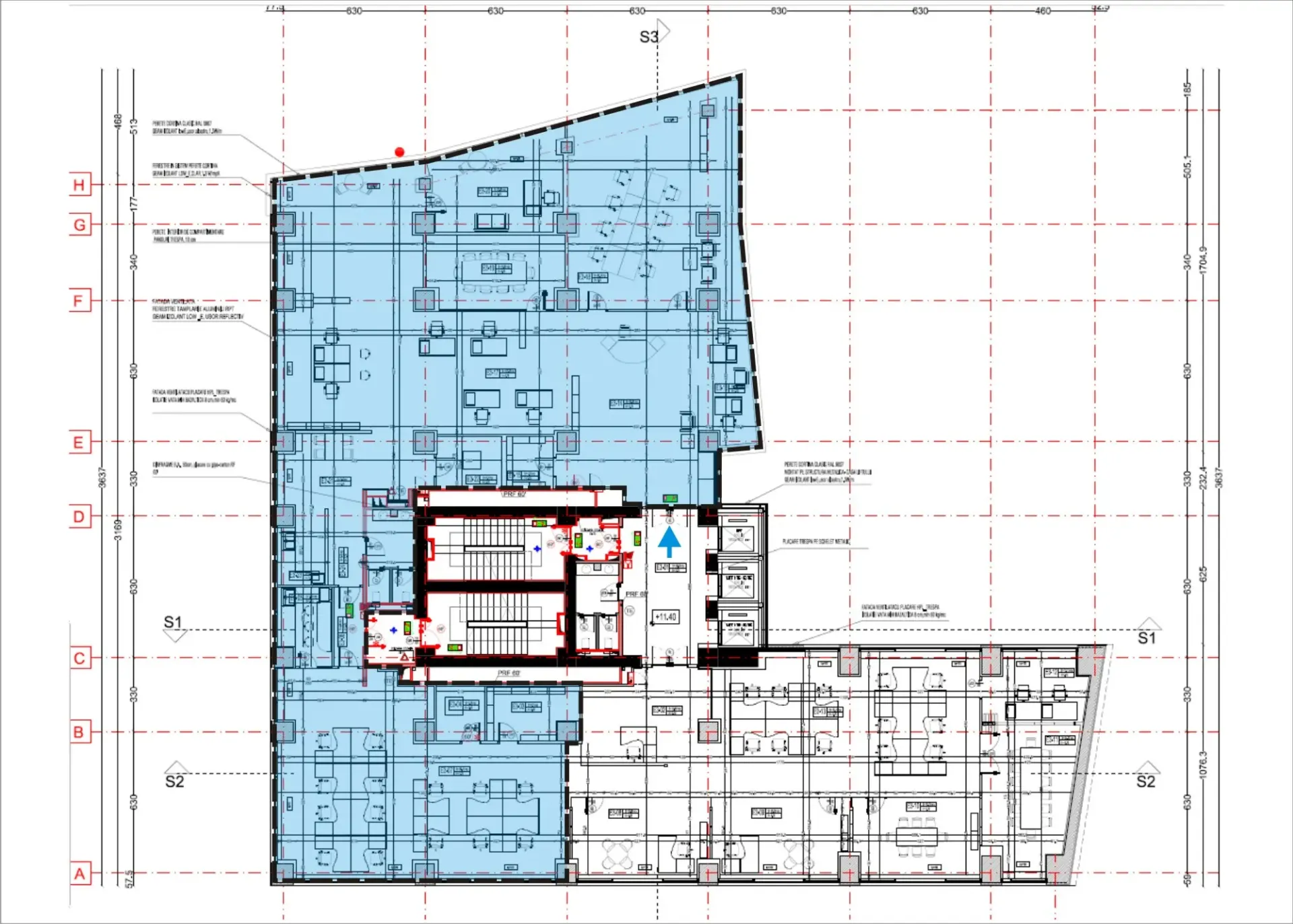
| 5 | 392 | jumatatea din fata a etajului; open space, 5 birouri, chicineta, GS | Imediat | Poze | Plan | |
| 5 | 392 | jumatatea din spate a etajului; open space, 2 meeting rooms cu perete amovibil, chicineta, GS | Imediat | Poze | Plan | |
| 3 | 544 | open space, 3 birouri/ meeting rooms, 4 zone phone booth & arhiva, bucatarie, GS | Imediat | Poze | Plan | |
| 5 | 794 | open space / compartimentat; posibilitate divizare in 392-392m2 | Imediat | Poze | Plan |
Spații de birouri în zona ultracentrală, clasa A
Maria Rosetti Tower este o clădire de birouri amplasată în zona ultracentrală a Bucureștiului, pe Strada Maria Rosetti. Clădirea se găsește la 500 de metri distanța de Bulevardul Magheru, în proximitatea Parcului Grădina Icoanei.
Accesibilitatea cu automobilul se realizează pe străzi cu sens unic care fac legătura cu principalele bulevarde ale zonei centrale (Bulevardul Magheru, Calea Moșilor). Transportul public se găsește în distanța pietonală (5-12 minute de mers pe jos) de clădire și include linii de autobuz si tramvai, alături de metrou și alte facilități la Piața Universității.
Maria Rosetti Tower a fost finalizată în anul 2008 și include o suprafață închiriabilă de 6.600 m, având specificații de clasă A.
Status Cladire finalizata
Dată finalizare 2008
Niveluri S+P+9
Suprafață închiriabilă 6,600 m²
Suprafață etaj curent 660 m²
Locuri parcare 80
- Servicii receptie
- Cafenea
- Cantina
- Restaurant
- Punct bancar
- ATM
- BMS - Building Management System
- HVAC
- Aer Conditionat
- Incalzire Centralizata
- Tavan Suspendat
- Acces Securizat
- Ferestre cu deschidere
- Paza 24/7
- Lift/Lifturi
- Generator de Back-up
- CCTV / Supraveghere Video
- Detectoare Fum/Foc
- Mocheta
Alte oferte din Universitate
Oferte disponibile: 30
Str. Thomas Masaryk 17 , Universitate , București
Str. Jean Louis Calderon 38 , Universitate , București
Str. Sfantul Spiridon 7 , Universitate , București
Str. Semilunei 4-6 , Universitate , București
Str. Tudor Arghezi 21 , Universitate , București
Strada General Emanoil Ion Florescu 8 , Universitate , București
Bdul. Regina Elisabeta 28 , Universitate , București
Str. Sperantei 21 , Universitate , București
Str. Thomas Masaryk 17 , Universitate , București
Bdul. Nicolae Balcescu 17A , Universitate , București
Str. Tudor Arghezi 21 , Universitate , București
Str. Dem Dobrescu 5 , Universitate , București
Str. Academiei 29 , Universitate , București
Str. Matei Millo 5 , Universitate , București
Str. Jean Louis Calderon 57 , Universitate , București
Str. Semilunei 4-6 , Universitate , București
Str. Nicolae Filipescu 39-41 , Universitate , București
Str. Vasile Lascar 31 , Universitate , București
Str. Matei Millo 6 , Universitate , București
Str. Armand Calinescu 26 , Universitate , București
Str. N.Filipescu 28 , Universitate , București
Str. Italiana 24 , Universitate , București
Bd.Carol I, Nr.34-36 , Universitate , București
Jean Louis Calderon 70 , Universitate , București
Academiei 39-41 , Universitate , București
Ion Campineanu 11 , Universitate , București
Academiei 28-30 , Universitate , București
Bd. I.C. Bratianu nr. 10 , Universitate , București
Negustori 12 , Universitate , București
Str.Tudor Arghezi 8-10 , Universitate , București
Ești chiriaș?
Contactează-ne și vei primi consultanță gratuită cu privire la:
- condițiile existente în piață
- renegociere termeni contractuali
- opțiuni de relocare
Ești proprietar?
Contactează-ne dacă vrei să fii prezent în cea mai avansată platformă online dedicată închirierii/vânzării de birouri
Contactează-neVIDEO 360 de grade: puteți schimba unghiul de vizualizare prin click / rotire pe video.
Utilizatorii iPhone: faceți click pe titlul din VIDEO pentru o vizualizare completă în aplicația YouTube.








































