Închiriere spațiu birou Nicolae Filipescu 39-41
Închiriere spațiu de birouri într-o cladire modernă amplasată în zona ultracentrală a capitalei, pe strada Nicolae Filipescu nr. 39-41, sector 2
TABEL DETALIAT SUPRAFEȚE DISPONIBILE
| Etaj | Suprafață (m2) | Descriere | Disponibil | |||
| 1 | 660 | 2 zone open space, 6 birouri, sala de conferinte, GS, chicineta | Imediat | Plan | ||
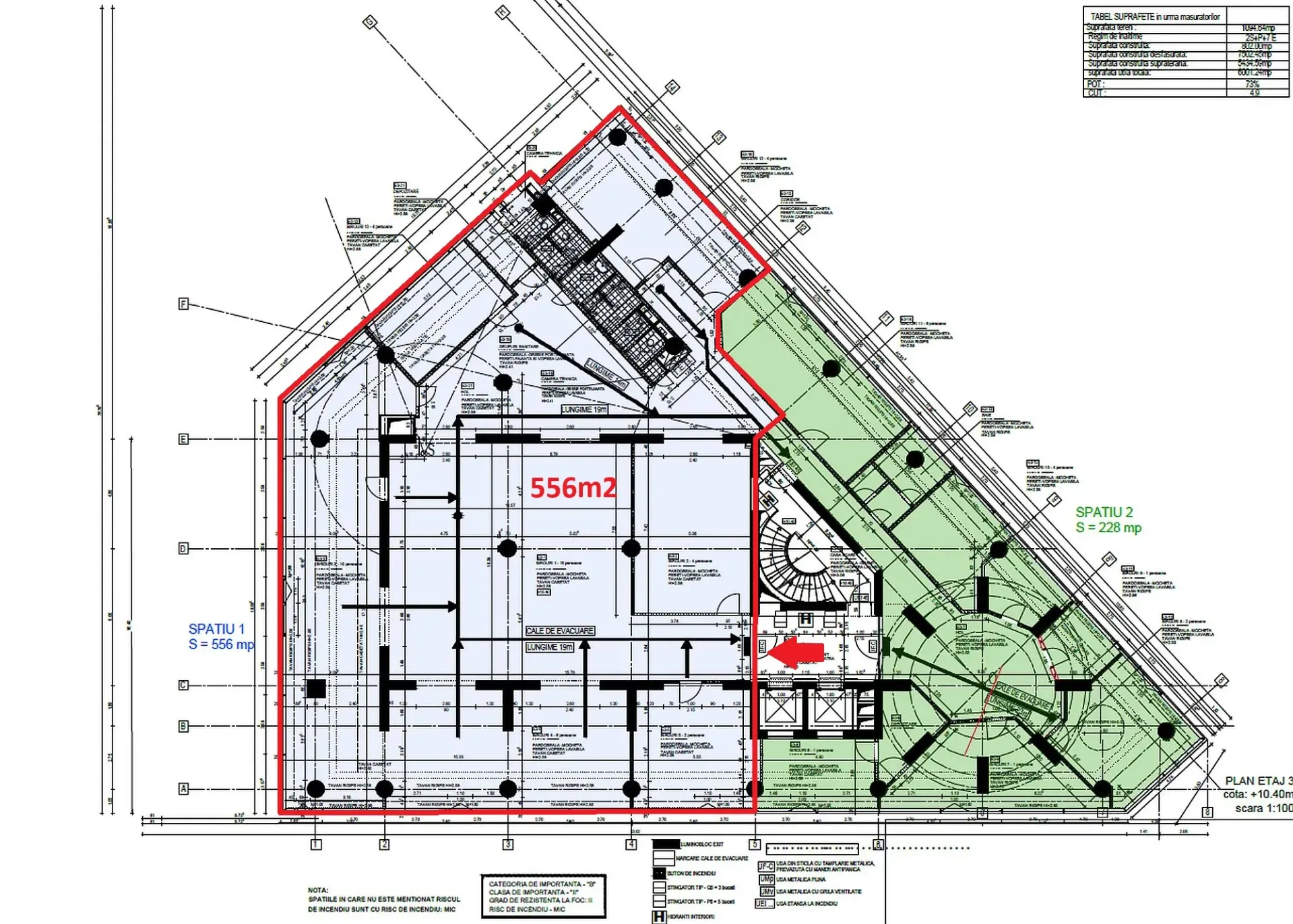
| 3 | 556 | zona open space, 3 birouri / sali de conferinte, GS | Imediat | Plan |
Birouri de inchiriat Piata Universitatii
Cladirea de birouri Nicolae Filipescu 39-41 este amplasata in partea ultracentrala a Bucurestiului, zona Universitatii, la doar 100 de metri de Bulevardul Nicolae Balcescu / Magheru.
Cladirea este situata la intersectia strazilor Nicolae Filipescu si Vasile Conta, in spatele salii Dalles si la mai putin de 5 minute de mers de Piata Universitatii, respectiv la 10 minute de km 0 (Piata Sf. Gheorghe) si Piata Romana.
Amplasamentul beneficiaza de o accesibilitate excelenta, atat cu automobilul cat si cu mijloacele de transport in comun, locatia ultracentrala oferind conexiuni pe bulevarde majore cu celalalte zone ale capitalei.
Transportul public include statia de metrou Universitate la mai putin de 5 minute de mers de cladire, statii de autobuz si troleibuz in proximitate, respectiv statii de tramvai la 10 minute de mers.
Nicolae Filipescu 39-41 este o cladire moderna de birouri desfasurata pe 2 niveluri subterane (parcare), parter si 7 etaje. Cladirea are o suprafata inchiriabila totala de 5.185 m2, cu o suprafata pe nivel de 730 m2.
Cladirea beneficiaza de un stoc semnificativ de functiuni, servicii, restaurante si cafenele, respectiv facilitati de parcare publica (parcare subterana Piata Universitatii) in imediata proximitate.
Status Cladire finalizata
Dată finalizare 2004
Niveluri 2S+P+7
Suprafață închiriabilă 5,185 m²
Suprafață etaj curent 730 m²
Locuri parcare 35
- Zona Comerciala
- Parcare proprie
- Ventiloconvectoare
- Tavan Suspendat
- Acces Securizat
- Ferestre cu deschidere
- Receptie
- Paza 24/7
- Lift/Lifturi
- Furnizori multipli Date si Voce
- CCTV / Supraveghere Video
- Detectoare Fum/Foc
Alte oferte din Universitate
Oferte disponibile: 31
Str. Thomas Masaryk 17 , Universitate , București
Str. Jean Louis Calderon 38 , Universitate , București
Str. Sfantul Spiridon 7 , Universitate , București
Str. Semilunei 4-6 , Universitate , București
Str. Tudor Arghezi 21 , Universitate , București
Strada General Emanoil Ion Florescu 8 , Universitate , București
Bdul. Regina Elisabeta 28 , Universitate , București
Str. Sperantei 21 , Universitate , București
Str. Thomas Masaryk 17 , Universitate , București
Bdul. Nicolae Balcescu 17A , Universitate , București
Str. Tudor Arghezi 21 , Universitate , București
Str. Dem Dobrescu 5 , Universitate , București
Str. Academiei 29 , Universitate , București
Str. Matei Millo 5 , Universitate , București
Str. Jean Louis Calderon 57 , Universitate , București
Str. Semilunei 4-6 , Universitate , București
Str. Vasile Lascar 31 , Universitate , București
Str. Matei Millo 6 , Universitate , București
Str. Armand Calinescu 26 , Universitate , București
Bulevardul Carol nr. 68, Sector 2 , Universitate , București
Str. N.Filipescu 28 , Universitate , București
Str. Italiana 24 , Universitate , București
Bd.Carol I, Nr.34-36 , Universitate , București
Jean Louis Calderon 70 , Universitate , București
Academiei 39-41 , Universitate , București
Ion Campineanu 11 , Universitate , București
Academiei 28-30 , Universitate , București
Bd. I.C. Bratianu nr. 10 , Universitate , București
Negustori 12 , Universitate , București
Str.Tudor Arghezi 8-10 , Universitate , București
Str. Maria Rosetti 6 , Universitate , București
Ești chiriaș?
Contactează-ne și vei primi consultanță gratuită cu privire la:
- condițiile existente în piață
- renegociere termeni contractuali
- opțiuni de relocare
Ești proprietar?
Contactează-ne dacă vrei să fii prezent în cea mai avansată platformă online dedicată închirierii/vânzării de birouri
Contactează-ne









































