Birouri de vanzare in complexul Casa Daneza
Complex de birouri de clasa A de vanzare, zona ultracentrala, intre Piata Universitatii si Piata Romana, sector 2, Bucuresti.
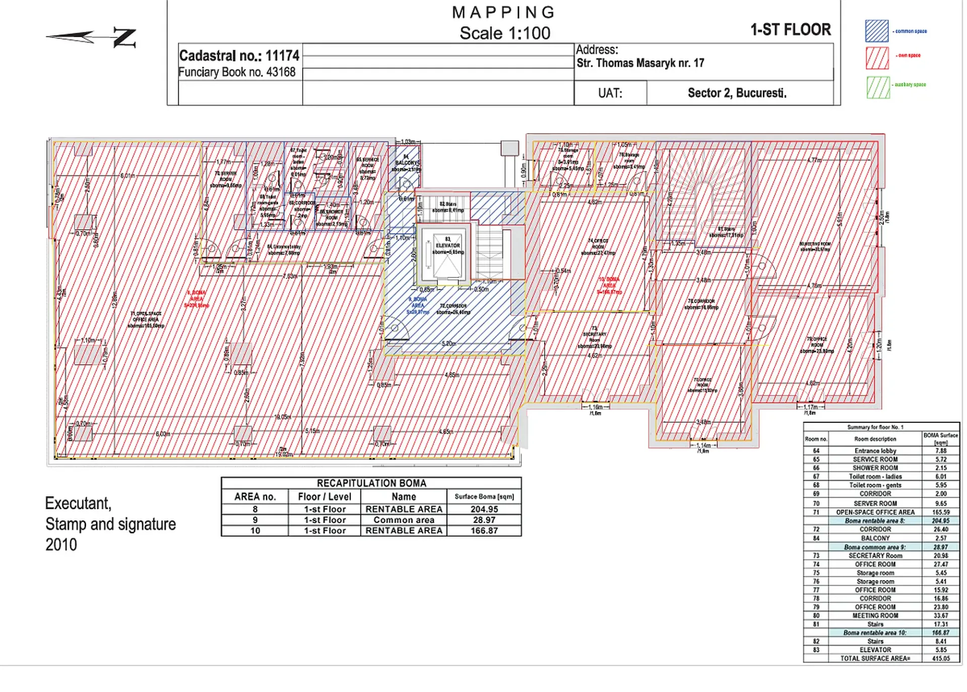
Spatii de birouri de vanzare pe Strada Thomas Masaryk 17
Spatii de birouri de vanzare in sectorul 2, la intersectia strazilor Thomas Masaryk si Sfantul Spiridon / Schitul Darvari, la 600 de metri de Bulevardul Magheru.
Complexul este situat intre Piata Universitatii (800 m distanta) si Piata Romana (1 km distanta), in zona cuprinsa intre Strada Maria Rosetti, Strada Batistei si Strada Vasile Lascar.
Cladirile sunt situate in proximitate pietonala de zone de promenada, precum Parcul Gradina Icoanei si Parcul Ion Voicu, monumente (Scoala Centrala, Schitul Darvari etc.), restaurante si cafenele, institutii, ambasade si sedii bancare, hoteluri etc.
Accesul cu automobilul se realizeaza venind dinspre Strada Vasile Lascar pe Thomas Masaryk, zona fiind conectata cu artere majore de circulatie precum Bulevardul Magheru, Calea Mosilor si inelul median Stefan cel Mare.
Transportul public include statie de tramvai la 2 minute de mers (liniile 5, 16), troleibuze in zona Armeneasca si acces la metrou si celelalte mijloace de la Piata Universitatii (10 minute de mers) si Piata Romana (maxim 15 minute de mers).
Casa Daneza este un complex de birouri inaugurat in 2009, incluzand o cladire istorica complet renovata si modernizata, alaturi de un corp nou de cladire de clasa A.
Complexul are o suprafata totala de 2.170 m2 si o suprafata pe etaj cuprinsa intre 188-405 m2.
Cladirea istorica, avand o vechime de peste 100 de ani, este desfasurata pe demisol, parter si 1 etaj, cu un etaj suplimentar avand acces doar din corpul nou de cladire. Au fost pastrate elemente decorative originale (scara lemn acces parter-etaj, 2 sobe teracota), alaturi de specificatii moderne precum podea inaltata, acoperita de placi de travertin sau mocheta si sistem HVAC cu 4 tevi.
Corpul nou de cladire este desfasurat pe subsol, parter si 5 etaje, incluzand atat spatii de birouri open space (podea inaltata, sistem HVAC), cat si cateva apartamente (parchet pe jos si incalzire in pardoseala, jaluzele exterioare cu actionare electrica).
Parcarea este amplasata integral in subteran, incluzand 12 locuri in sistyem Klaus, grupate 2-4, accesul facandu-se cu lift masini.
Status Cladire finalizata
Dată finalizare 2009
Niveluri D+P+2+3r / S+P+4+5t
Suprafață etaj curent 405 m²
Locuri parcare 12
- Parcare proprie
- Parcare biciclete
- HVAC
- Podea Inaltata
- Tavan Suspendat
- Acces Securizat
- Ferestre cu deschidere
- Receptie
- Paza 24/7
- Lift/Lifturi
- Generator de Back-up
- CCTV / Supraveghere Video
- Detectoare Fum/Foc
- Mocheta
- Rampa scaun cu rotile
Alte oferte din Universitate
Oferte disponibile: 31
Str. Jean Louis Calderon 38 , Universitate , București
Str. Sfantul Spiridon 7 , Universitate , București
Str. Semilunei 4-6 , Universitate , București
Str. Tudor Arghezi 21 , Universitate , București
Strada General Emanoil Ion Florescu 8 , Universitate , București
Bdul. Regina Elisabeta 28 , Universitate , București
Str. Sperantei 21 , Universitate , București
Str. Thomas Masaryk 17 , Universitate , București
Bdul. Nicolae Balcescu 17A , Universitate , București
Str. Tudor Arghezi 21 , Universitate , București
Str. Dem Dobrescu 5 , Universitate , București
Str. Academiei 29 , Universitate , București
Str. Matei Millo 5 , Universitate , București
Str. Jean Louis Calderon 57 , Universitate , București
Str. Semilunei 4-6 , Universitate , București
Str. Nicolae Filipescu 39-41 , Universitate , București
Str. Vasile Lascar 31 , Universitate , București
Str. Matei Millo 6 , Universitate , București
Str. Armand Calinescu 26 , Universitate , București
Bulevardul Carol nr. 68, Sector 2 , Universitate , București
Str. N.Filipescu 28 , Universitate , București
Str. Italiana 24 , Universitate , București
Bd.Carol I, Nr.34-36 , Universitate , București
Jean Louis Calderon 70 , Universitate , București
Academiei 39-41 , Universitate , București
Ion Campineanu 11 , Universitate , București
Academiei 28-30 , Universitate , București
Bd. I.C. Bratianu nr. 10 , Universitate , București
Negustori 12 , Universitate , București
Str.Tudor Arghezi 8-10 , Universitate , București
Str. Maria Rosetti 6 , Universitate , București
Ești chiriaș?
Contactează-ne și vei primi consultanță gratuită cu privire la:
- condițiile existente în piață
- renegociere termeni contractuali
- opțiuni de relocare
Ești proprietar?
Contactează-ne dacă vrei să fii prezent în cea mai avansată platformă online dedicată închirierii/vânzării de birouri
Contactează-ne
















































