Birouri de închiriat în CUBE VICTORIEI CENTER
Birouri de închiriat într-o clădire modernă de clasa A, amplasată în principalul centru de afaceri al Bucureștiului, zona Victoriei, pe Strada Buzești, nr. 75-77
TABEL DETALIAT SUPRAFEȚE DISPONIBILE
| Etaj | Suprafață (m2) | Descriere | Disponibil | |||
| 2 | 230 | open space, 3 birouri, bucatarie, camera server | Aprilie 2026 | Plan | ||
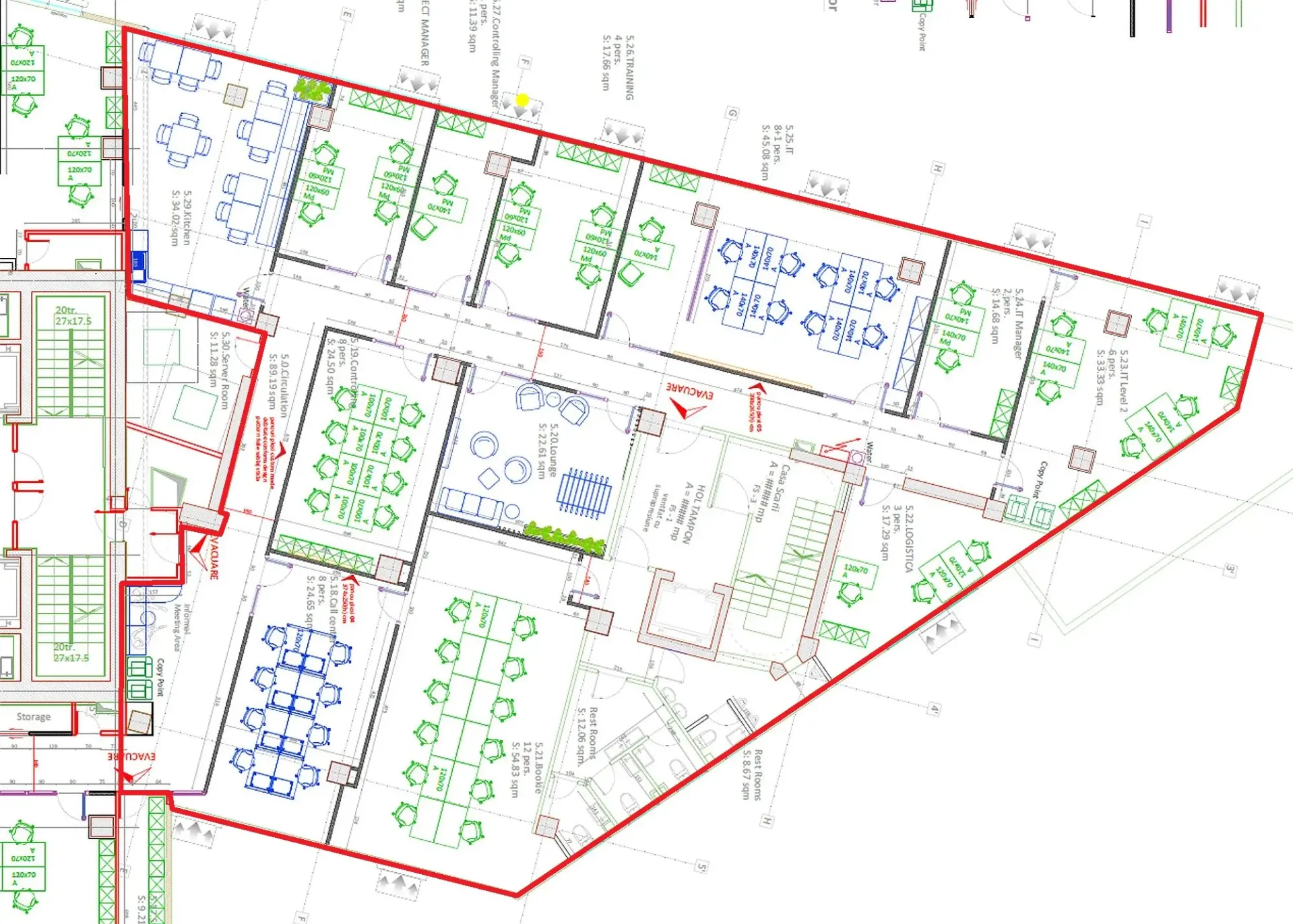
| 5 | 462 | Spatiu amenajat compartimentat, 8 birouri, 2 sali de conferinte, lounge, bucatarie, camera server, GS; chirie 11,5€/m2/luna | Imediat | Poze | Plan | |
| 6 | 480 | Cladire Muntii Tatra; open space / compartimentat , neamenajat | Imediat | Plan | ||
| 6 | 480 | Cladire Buzesti; open space / compartimentat , neamenajat | Imediat | Plan |
Clădire de birouri de clasă A în Piața Victoriei
Cube Victoriei Center este o clădire de birouri, amplasată la doar 150 m distanță de Piața Victoriei, principalul centru de afaceri din zona centrală a Bucureștiului. Clădirea este situată pe Strada Buzești.
Accesibilitatea este excelentă, atât cu automobilul, cât si cu transportul în comun, Piața Victoriei fiind situată la intersecția a 5 artere rutiere majore: Calea Victoriei, Iancu de Hunedoara, Aviatorilor, Nicolae Titulescu și Lascăr Catargiu.
De asemenea, Piața Victoriei este unul dintre principalele noduri de transport în comun, incluzând 2 magistrale de metrou (metrou Victoriei), linii de autobuz și tramvai.
Locația beneficiază de acces direct către Aeroportul Internațional Henry Coanda, dar și către celelalte zone de business ale orașului.
Status Cladire finalizata
Dată finalizare 2010
Niveluri S+P+14
Suprafață închiriabilă 10,000 m²
Suprafață etaj curent 960 m²
Locuri parcare 10
- Cafenea
- Restaurant
- Punct Presa
- Punct Medical
- HVAC
- Tavan Suspendat
- Ferestre cu deschidere
- Paza 24/7
- Lift/Lifturi
- Generator de Back-up
- CCTV / Supraveghere Video
- Detectoare Fum/Foc
- Sprinkler System
- Mocheta
Alte oferte din Victoriei
Oferte disponibile: 45
Dr. Iacob Felix 63-69 , Victoriei , București
Str. Caderea Bastiliei 80-84 , Victoriei , București
Bdul. Ion Mihalache 15-17 , București
Str. Grigore Alexandrescu 74 , Victoriei , București
Calea Victoriei 222 , Victoriei , București
Gen. Gheorghe Manu 7 , Victoriei , București
Str. Occidentului 3 , Victoriei , București
Bdul.Dinicu Golescu 36 , Victoriei , București
Bulevardul Alexandru Ioan Cuza 32 , Victoriei , București
Str. Occidentului 3 , Victoriei , București
Str. Grigore Alexandrescu 66 , Victoriei , București
Strada Comana 3 , Victoriei , București
Bld. Alexandru Ioan Cuza 98A , Victoriei , București
Str. Buzesti 85 , Victoriei , București
Str. Argentina 30 , Victoriei , București
Str. Buzesti 71 , Victoriei , București
Str. Dr. Felix 55 , Victoriei , București
Str. Argentina 41 , Victoriei , București
Calea Grivitei 84-98 , Victoriei , București
Bdul. Lascar Catargiu 47-53 , Victoriei , București
Calea Grivitei 84-98 , Victoriei , București
Str. Buzesti 62-64 , Victoriei , București
Str. Sevastopol 13-17 , Victoriei , București
Bdul.Dinicu Golescu 36 , Victoriei , București
Str. Gheorghe Manu 5 , Victoriei , București
Str. Scarlatescu 17-19 , Victoriei , București
Str. Dr. Felix 87 , Victoriei , București
Str. Dr. Felix 17-19 , Victoriei , București
Dr. Felix 57 , Victoriei , București
Bdul. Iancu de Hunedoara 54B , Victoriei , București
Str. Dr. Iacob Felix 70 , Victoriei , București
Bd. Nicolae Titulescu 4-8 , Victoriei , București
Grigore Alexandrescu 59 , Victoriei , București
Sos. Nicolae Titulescu 48 , Victoriei , București
Bdul. Ion Mihalache 15-17 , Victoriei , București
Calea Victoriei 145 , Victoriei , București
Frumoasa 30 , Victoriei , București
Str. Gheorghe Polizu 58-60 , Victoriei , București
Buzesti 76-80 , Victoriei , București
Dr. Iacob Felix 63-69 , Victoriei , București
Iancu de Hunedoara 56-60 , Victoriei , București
Macul Rosu 1-3 , Victoriei , București
Bdul. Iancu de Hunedoara 48-50 , Victoriei , București
Bdul. Aviatorilor 8 , Victoriei , București
Str. Louis Blanc 1 , Victoriei , București
Ești chiriaș?
Contactează-ne și vei primi consultanță gratuită cu privire la:
- condițiile existente în piață
- renegociere termeni contractuali
- opțiuni de relocare
Ești proprietar?
Contactează-ne dacă vrei să fii prezent în cea mai avansată platformă online dedicată închirierii/vânzării de birouri
Contactează-neVIDEO 360 de grade: puteți schimba unghiul de vizualizare prin click / rotire pe video.
Utilizatorii iPhone: faceți click pe titlul din VIDEO pentru o vizualizare completă în aplicația YouTube.




















































