Închiriere birouri în PREMIUM PLAZA
Închiriere birouri într-o clădire modernă cu dotări și standarde de clasă A amplsată in Piața Victoriei, la intersecția dintre Șos. Nicolae Titulescu si Str. Doctor Felix
TABEL DETALIAT SUPRAFEȚE DISPONIBILE
| Etaj | Suprafață (m2) | Descriere | Disponibil | |||
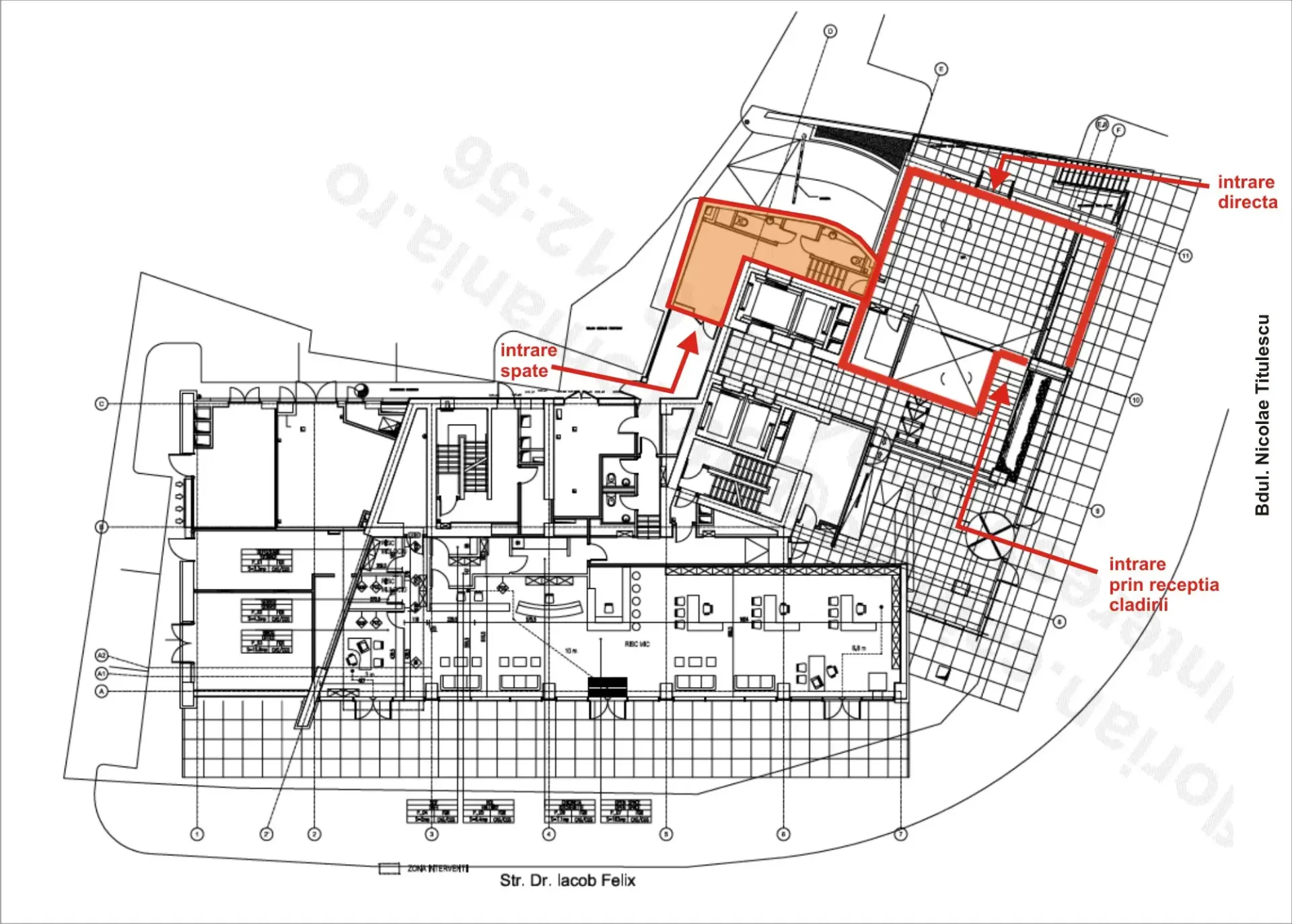
| Parter | 240 | spatiu comercial; 3 intrari din Strada Doctor Felix; chirie 27 €/m2/luna | 01.09.2026 | Plan | ||
| Mezanin | 112 | spatiu destinatie horeca; intrare directa pe lateral cladire, intrare din zona lobby cladire; chirie 20 €/m2/luna | 01.09.2026 | Plan | ||
| 14 | 516 | open space, chicineta, GS, camera server | Imediat | Poze | Plan |
Birouri de închiriat de clasa A în centrul de business al Bucureștiului
Premium Plaza este o clădire de birouri de clasa A, certificata verde LEED Platinum, amplasată în Piața Victoriei, principalul centru de afaceri din zona centrală a Bucureștiului.
Clădirea este situată la intersecția Șoselei Nicolae Titulescu cu Strada Doctor Felix, vis-à-vis de clădirile de birouri America House și sediul Piraeus Bank.
Accesibilitatea este excelentă, atât cu automobilul, cat și cu transportul în comun. Piața Victoriei este situată la intersecția unor artere rutiere majore: Calea Victoriei, Iancu de Hunedoara, Aviatorilor, Nicolae Titulescu și Lascăr Catargiu.
De asemenea, Piata Victoriei este unul dintre principalele noduri de transport în comun, incluzând 2 magistrale de metrou (metrou Victoriei), linii de autobuz și tramvai. Locația beneficiază de acces direct către aeroportul internațional Henry Coandă, dar și către celelalte zone de business ale orașului.
Status Cladire finalizata
Dată finalizare 2008
Niveluri 3S+P+15
Suprafață închiriabilă 8,468 m²
Suprafață etaj curent 516 m²
Locuri parcare 85
- Cafenea
- Restaurant
- ATM
- Farmacie
- Punct Medical
- Sala de Fitness
- Aer Conditionat
- Podea Inaltata
- Tavan Suspendat
- Ferestre cu deschidere
- Lift/Lifturi
- Internet Cablu
- Detectoare Fum/Foc
- Sprinkler System
- Mocheta
- LEED
Alte oferte din Victoriei
Oferte disponibile: 45
Dr. Iacob Felix 63-69 , Victoriei , București
Str. Caderea Bastiliei 80-84 , Victoriei , București
Bdul. Ion Mihalache 15-17 , București
Str. Grigore Alexandrescu 74 , Victoriei , București
Calea Victoriei 222 , Victoriei , București
Gen. Gheorghe Manu 7 , Victoriei , București
Str. Occidentului 3 , Victoriei , București
Bdul.Dinicu Golescu 36 , Victoriei , București
Bulevardul Alexandru Ioan Cuza 32 , Victoriei , București
Str. Occidentului 3 , Victoriei , București
Str. Grigore Alexandrescu 66 , Victoriei , București
Strada Comana 3 , Victoriei , București
Bld. Alexandru Ioan Cuza 98A , Victoriei , București
Str. Buzesti 85 , Victoriei , București
Str. Argentina 30 , Victoriei , București
Str. Buzesti 71 , Victoriei , București
Str. Dr. Felix 55 , Victoriei , București
Str. Argentina 41 , Victoriei , București
Calea Grivitei 84-98 , Victoriei , București
Bdul. Lascar Catargiu 47-53 , Victoriei , București
Calea Grivitei 84-98 , Victoriei , București
Str. Buzesti 62-64 , Victoriei , București
Str. Sevastopol 13-17 , Victoriei , București
Bdul.Dinicu Golescu 36 , Victoriei , București
Str. Gheorghe Manu 5 , Victoriei , București
Str. Scarlatescu 17-19 , Victoriei , București
Str. Buzesti 75-77 , Victoriei , București
Str. Dr. Felix 87 , Victoriei , București
Str. Dr. Felix 17-19 , Victoriei , București
Dr. Felix 57 , Victoriei , București
Bdul. Iancu de Hunedoara 54B , Victoriei , București
Str. Dr. Iacob Felix 70 , Victoriei , București
Bd. Nicolae Titulescu 4-8 , Victoriei , București
Grigore Alexandrescu 59 , Victoriei , București
Sos. Nicolae Titulescu 48 , Victoriei , București
Bdul. Ion Mihalache 15-17 , Victoriei , București
Calea Victoriei 145 , Victoriei , București
Frumoasa 30 , Victoriei , București
Str. Gheorghe Polizu 58-60 , Victoriei , București
Buzesti 76-80 , Victoriei , București
Iancu de Hunedoara 56-60 , Victoriei , București
Macul Rosu 1-3 , Victoriei , București
Bdul. Iancu de Hunedoara 48-50 , Victoriei , București
Bdul. Aviatorilor 8 , Victoriei , București
Str. Louis Blanc 1 , Victoriei , București
Ești chiriaș?
Contactează-ne și vei primi consultanță gratuită cu privire la:
- condițiile existente în piață
- renegociere termeni contractuali
- opțiuni de relocare
Ești proprietar?
Contactează-ne dacă vrei să fii prezent în cea mai avansată platformă online dedicată închirierii/vânzării de birouri
Contactează-neVIDEO 360 de grade: puteți schimba unghiul de vizualizare prin click / rotire pe video.
Utilizatorii iPhone: faceți click pe titlul din VIDEO pentru o vizualizare completă în aplicația YouTube.



















































