Birouri de inchiriat in Glass House
Birouri de inchiriat intr-o cladire boutique in curs de modernizare integrala, amplasata central, in distanta pietonala de Piata Victoriei si Piata Romana, sector 1, Bucuresti.
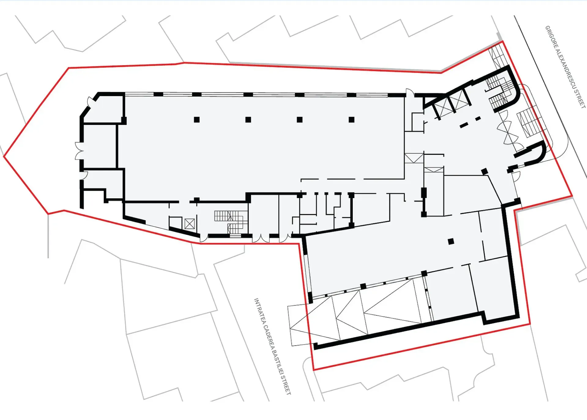
Inchiriere birouri pe Strada Grigore Alexandrescu 74
Inchiriere birouri in sectorul 1, intr-o cladire amplasata la intersectia strazilor Grigore Alexandrescu si Caderea Bastiliei, la doar 130 de metri de inelul median (Soseaua Iancu de Hunedoara), 500 de metri de Piata Romana si 600 de metri de Piata Victoriei.
Cladirea are o pozitie strategica, la granita intre zona centrala si cea de nord (zona exclusivista Capitale), in proximitatea principalelor piete si artere de circulatie. Vecinatatile cladirii au functiuni mixte, incluzand cladiri de birouri in imediata proximitate si la 8 minute de mers (zona CBD de la Piata Victoriei), institutii publice, hoteluri, restaurante, cafenele si spatii comerciale, functiuni medicale si cladiri rezidentiale etc.
Accesul cu automobilul este excelent, fiind usor de realizat din marile bulevarde ale zonei, cu conexiuni directe catre zona centrala si de nord a Bucurestiului.
Transportul public include 3 statii de metrou in distanta pietona (Romana, Piata Victoriei, Stefan cel Mare), respectiv statii de autobuz, troleibuz si tramvai, amplasate la 2-10 minute de mers de cladire.
Glass House este o cladire de birouri boutique, de inaltime mica, desfasurata pe 2 niveluri subterane, parter si 4 etaje (ultimul retras). Cladirea are o suprafata inchiriabila totala de 4.200 m2, cu 756-912 m2 pe etaj.
Cladirea dispune de 50 de locuri de parcare amplasate pe cele 2 niveluri subterane, corespunzatoare unei ratii de 1 loc : 80 m2 birouri.
Cladirea urmeaza sa fie modernizata integral in 2026 si va beneficia de specificatii de clasa A precum inaltime a etajului de 3 metri, podea flotanta, HVAC cu pompa de caldura, acces securizat, CCTV, detectie fum/foc.
Status In constructie
Dată finalizare T4 2026
Niveluri 2S+P+3+4r
Suprafață închiriabilă 4,200 m²
Suprafață etaj curent 900 m²
Locuri parcare 50
- Zona Comerciala
- Servicii receptie
- Parcare proprie
- BMS - Building Management System
- HVAC
- Podea Inaltata
- Acces Securizat
- Inaltime utila minim 2,7 metri
- Receptie
- Paza 24/7
- Lift/Lifturi
- Generator de Back-up
- Furnizori multipli Date si Voce
- CCTV / Supraveghere Video
- Detectoare Fum/Foc
Alte oferte din Victoriei
Oferte disponibile: 45
Dr. Iacob Felix 63-69 , Victoriei , București
Str. Caderea Bastiliei 80-84 , Victoriei , București
Bdul. Ion Mihalache 15-17 , București
Calea Victoriei 222 , Victoriei , București
Gen. Gheorghe Manu 7 , Victoriei , București
Str. Occidentului 3 , Victoriei , București
Bdul.Dinicu Golescu 36 , Victoriei , București
Bulevardul Alexandru Ioan Cuza 32 , Victoriei , București
Str. Occidentului 3 , Victoriei , București
Str. Grigore Alexandrescu 66 , Victoriei , București
Strada Comana 3 , Victoriei , București
Bld. Alexandru Ioan Cuza 98A , Victoriei , București
Str. Buzesti 85 , Victoriei , București
Str. Argentina 30 , Victoriei , București
Str. Buzesti 71 , Victoriei , București
Str. Dr. Felix 55 , Victoriei , București
Str. Argentina 41 , Victoriei , București
Calea Grivitei 84-98 , Victoriei , București
Bdul. Lascar Catargiu 47-53 , Victoriei , București
Calea Grivitei 84-98 , Victoriei , București
Str. Buzesti 62-64 , Victoriei , București
Str. Sevastopol 13-17 , Victoriei , București
Bdul.Dinicu Golescu 36 , Victoriei , București
Str. Gheorghe Manu 5 , Victoriei , București
Str. Scarlatescu 17-19 , Victoriei , București
Str. Buzesti 75-77 , Victoriei , București
Str. Dr. Felix 87 , Victoriei , București
Str. Dr. Felix 17-19 , Victoriei , București
Dr. Felix 57 , Victoriei , București
Bdul. Iancu de Hunedoara 54B , Victoriei , București
Str. Dr. Iacob Felix 70 , Victoriei , București
Bd. Nicolae Titulescu 4-8 , Victoriei , București
Grigore Alexandrescu 59 , Victoriei , București
Sos. Nicolae Titulescu 48 , Victoriei , București
Bdul. Ion Mihalache 15-17 , Victoriei , București
Calea Victoriei 145 , Victoriei , București
Frumoasa 30 , Victoriei , București
Str. Gheorghe Polizu 58-60 , Victoriei , București
Buzesti 76-80 , Victoriei , București
Dr. Iacob Felix 63-69 , Victoriei , București
Iancu de Hunedoara 56-60 , Victoriei , București
Macul Rosu 1-3 , Victoriei , București
Bdul. Iancu de Hunedoara 48-50 , Victoriei , București
Bdul. Aviatorilor 8 , Victoriei , București
Str. Louis Blanc 1 , Victoriei , București
Ești chiriaș?
Contactează-ne și vei primi consultanță gratuită cu privire la:
- condițiile existente în piață
- renegociere termeni contractuali
- opțiuni de relocare
Ești proprietar?
Contactează-ne dacă vrei să fii prezent în cea mai avansată platformă online dedicată închirierii/vânzării de birouri
Contactează-ne


















































