VICTORIA CENTER
Spatii birouri de inchiriat intr-o cladire de birouri amplasata in zona Pietei Victoriei, Sector 1, Bucuresti
TABEL DETALIAT SUPRAFEȚE DISPONIBILE
| Etaj | Suprafață (m2) | Descriere | Disponibil | |||
| Parter + mezanin | 320 | spatiu comercial, dispus P+M, terasa 90m2 | Imediat | |||
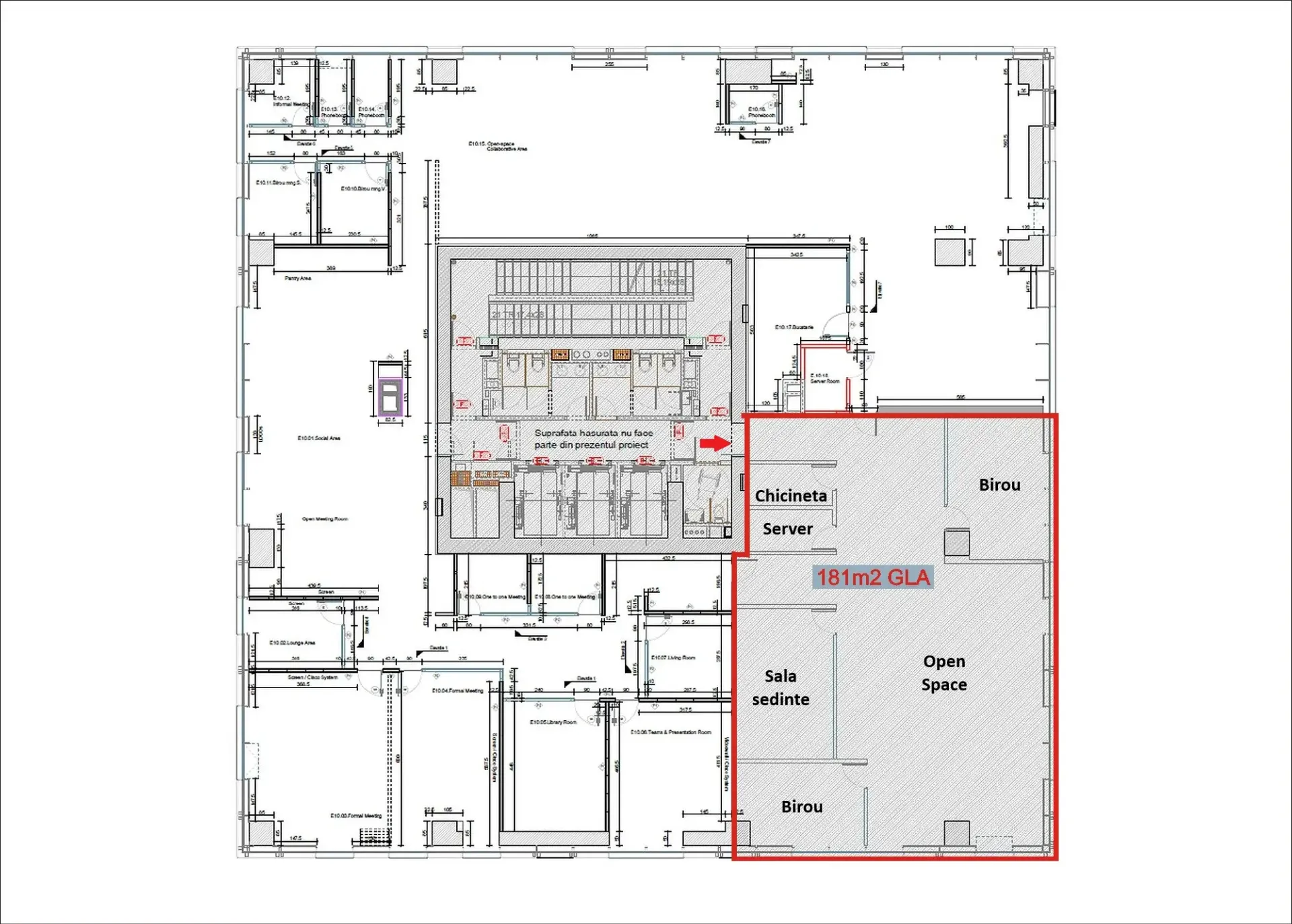
| 10 | 181 | open space, 2 meeting rooms, birou manager, chicineta, camera depozitare; chirie 26€/m2/luna | Imediat | Poze | Plan |
Birouri de închiriat clasa A Piaţa Victoriei
Victoria Center este amplasată în zona Pieței Victoriei, cea mai reprezentativă concentrare de birouri din centrul capitalei. Clădirea este situată la intersecția dintre Calea Victoriei cu Strada Frumoasă, la 200 de metri distanță de Piața Victoriei.
Accesibilitatea este excelentă, Piața Victoriei fiind un nod major de transport al Capitalei unde se întalnesc bulevarde majore de circulație. Transportul public include 2 magistrale de metrou (stația Piața Victoriei), linii de autobuz și tramvai ușor accesibile pietonal de la clădire.
Victoria Center este o clădire de clasa A, cu certificare verde BREEAM, inaugurată în 2009. Clădirea dispune de 3 etaje subterane, parter, mezanin și 9 etaje. Suprafața inchiriabilă totală este de 8.600 m2, cu aproximativ 700 m2 / etaj.
Parcarea este amplasata in subteran si include 92 de locuri.
Status Cladire finalizata
Dată finalizare 2009
Niveluri 3S+P+M+9
Suprafață închiriabilă 8,600 m²
Suprafață etaj curent 700 m²
Locuri parcare 92
- Zona Comerciala
- Parcare proprie
- Parcare biciclete
- Cafenea
- Servicii receptie
- HVAC
- Tavan Suspendat
- Acces Securizat
- Inaltime utila minim 2,7 metri
- Paza 24/7
- Lift/Lifturi
- Generator de Back-up
- Furnizori multipli Date si Voce
- CCTV / Supraveghere Video
- Detectoare Fum/Foc
- Mocheta
- BREEAM
- Podea Inaltata
- Receptie
- Sprinkler System
Alte oferte din Victoriei
Oferte disponibile: 45
Dr. Iacob Felix 63-69 , Victoriei , București
Str. Caderea Bastiliei 80-84 , Victoriei , București
Bdul. Ion Mihalache 15-17 , București
Str. Grigore Alexandrescu 74 , Victoriei , București
Calea Victoriei 222 , Victoriei , București
Gen. Gheorghe Manu 7 , Victoriei , București
Str. Occidentului 3 , Victoriei , București
Bdul.Dinicu Golescu 36 , Victoriei , București
Bulevardul Alexandru Ioan Cuza 32 , Victoriei , București
Str. Occidentului 3 , Victoriei , București
Str. Grigore Alexandrescu 66 , Victoriei , București
Strada Comana 3 , Victoriei , București
Bld. Alexandru Ioan Cuza 98A , Victoriei , București
Str. Buzesti 85 , Victoriei , București
Str. Argentina 30 , Victoriei , București
Str. Buzesti 71 , Victoriei , București
Str. Dr. Felix 55 , Victoriei , București
Str. Argentina 41 , Victoriei , București
Calea Grivitei 84-98 , Victoriei , București
Bdul. Lascar Catargiu 47-53 , Victoriei , București
Calea Grivitei 84-98 , Victoriei , București
Str. Buzesti 62-64 , Victoriei , București
Str. Sevastopol 13-17 , Victoriei , București
Bdul.Dinicu Golescu 36 , Victoriei , București
Str. Gheorghe Manu 5 , Victoriei , București
Str. Scarlatescu 17-19 , Victoriei , București
Str. Buzesti 75-77 , Victoriei , București
Str. Dr. Felix 87 , Victoriei , București
Str. Dr. Felix 17-19 , Victoriei , București
Dr. Felix 57 , Victoriei , București
Bdul. Iancu de Hunedoara 54B , Victoriei , București
Str. Dr. Iacob Felix 70 , Victoriei , București
Bd. Nicolae Titulescu 4-8 , Victoriei , București
Grigore Alexandrescu 59 , Victoriei , București
Sos. Nicolae Titulescu 48 , Victoriei , București
Bdul. Ion Mihalache 15-17 , Victoriei , București
Frumoasa 30 , Victoriei , București
Str. Gheorghe Polizu 58-60 , Victoriei , București
Buzesti 76-80 , Victoriei , București
Dr. Iacob Felix 63-69 , Victoriei , București
Iancu de Hunedoara 56-60 , Victoriei , București
Macul Rosu 1-3 , Victoriei , București
Bdul. Iancu de Hunedoara 48-50 , Victoriei , București
Bdul. Aviatorilor 8 , Victoriei , București
Str. Louis Blanc 1 , Victoriei , București
Ești chiriaș?
Contactează-ne și vei primi consultanță gratuită cu privire la:
- condițiile existente în piață
- renegociere termeni contractuali
- opțiuni de relocare
Ești proprietar?
Contactează-ne dacă vrei să fii prezent în cea mai avansată platformă online dedicată închirierii/vânzării de birouri
Contactează-neVIDEO 360 de grade: puteți schimba unghiul de vizualizare prin click / rotire pe video.
Utilizatorii iPhone: faceți click pe titlul din VIDEO pentru o vizualizare completă în aplicația YouTube.




















































