Birouri de închiriat în ROMANITZA OFFICE BUILDING
Spatii birouri de inchiriat intr-o cladire amplasata central, in zona Piata Victoriei, sector 1, Bucuresti.
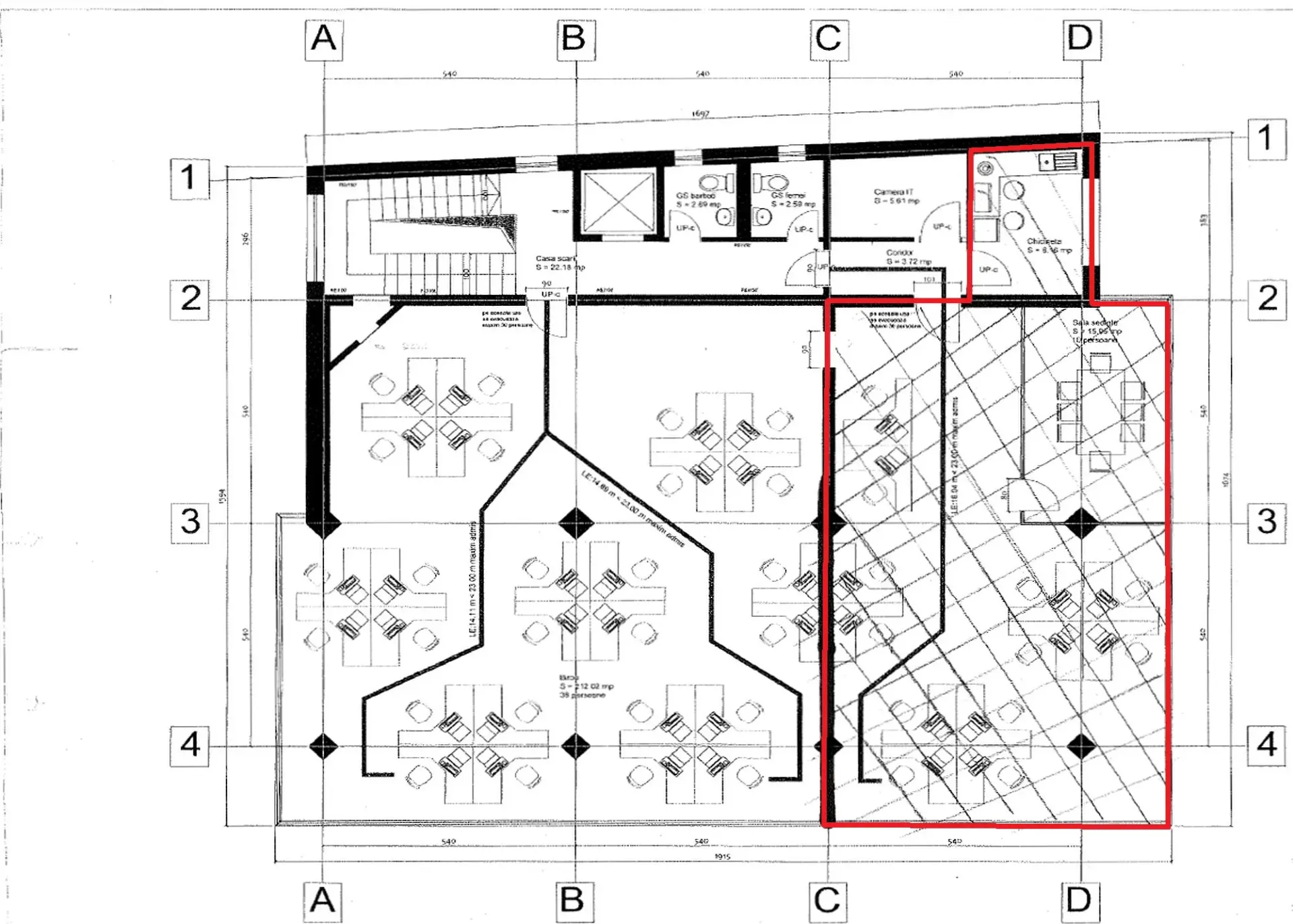
TABEL DETALIAT SUPRAFEȚE DISPONIBILE
| Etaj | Suprafață (m2) | Descriere | Disponibil | |||
| Parter | 130 | open space impartit in doua spatii, chicineta, cu intrare din receptie si intrare secundara | Imediat | Poze | Plan | |
| 1 | 255 | acces din receptia cladirii, zona open space, 2 birouri / sali de sedinta, chicineta, GS | Imediat | Poze | Plan | |
| 2 | 110 | zona open space, sala de sedinta, chicineta | Imediat | Poze | Plan | |
| 3 | 296 | etaj complet, open space, 2 birouri manager, 2 birouri individuale, MR, GS, oficiu; disponibile 5 locuri de parcare | Imediat | Poze | Plan |
Inchiriere spatiu birouri pe Strada Macul Rosu 1-3
Inchiriere spatiu birouri in sector 1, zona centrala Piata Victoriei, intr-o cladire amplasata la intersectia strazii Doctor Iacob Felix si Soseaua Nicolae Titulescu, 300 metri de Piata Victoriei si de Spitalul Clinic “Filantropia” , 750 metri de Bld. Banu Manta si 2 km de Arcul de Triumf, respective Piata Charles de Gaulle.
Cladirea este situata la 750 metri de Gara de Nord, 1,4 km de Piata Romana si 2,5 km de Ateneul Roman.
Vecinatatile cladirii includ cladiri de birouri si proprietati rezidentiale, zone de promenada (Parcul Kiseleff), Muzeul de Istorie Naturala “Grigore Antipa”, Muzeul National al Taranului Roman, restaurante si cafenele.
Accesibilitatea auto este excelenta, cladirea fiind amplasata in apropiere de bulevarde majore (Aviatorilor, Banu Manta etc.) ce faciliteaza legaturi rapide cu toate zonele orasului.
Transportul public include statia de metrou Victoriei la 8 minute de mers pe jos de cladire (M1 si M2) si statii de autobuz si de tramvai la 2 minute de mers de cladire.
Romanitza Office Building este o cladire de birouri finalizata in 1999, avand o suprafata inchiriabila totala de 1.840 m2 (350 m² / nivel). Cladirea se desfasoara pe subsol, parter si 4 etaje, avand specificatii precum ventiloconvectoare, tavan suspendat, paza 24/7, supraveghere video, detectoare foc/fum, generator de back-up, lift si mocheta.
Cladirea dispune de 25 de locuri de parcare proprii, aflate in exteriorul cladirii.
Status Cladire finalizata
Dată finalizare 1999
Niveluri S+P+4
Suprafață închiriabilă 1,840 m²
Suprafață etaj curent 350 m²
Locuri parcare 25
- Zona Comerciala
- Parcare proprie
- Ventiloconvectoare
- Tavan Suspendat
- Ferestre cu deschidere
- Paza 24/7
- Lift/Lifturi
- Generator de Back-up
- Internet Cablu
- CCTV / Supraveghere Video
- Detectoare Fum/Foc
- Mocheta
Alte oferte din Victoriei
Oferte disponibile: 45
Dr. Iacob Felix 63-69 , Victoriei , București
Str. Caderea Bastiliei 80-84 , Victoriei , București
Bdul. Ion Mihalache 15-17 , București
Str. Grigore Alexandrescu 74 , Victoriei , București
Calea Victoriei 222 , Victoriei , București
Gen. Gheorghe Manu 7 , Victoriei , București
Str. Occidentului 3 , Victoriei , București
Bdul.Dinicu Golescu 36 , Victoriei , București
Bulevardul Alexandru Ioan Cuza 32 , Victoriei , București
Str. Occidentului 3 , Victoriei , București
Str. Grigore Alexandrescu 66 , Victoriei , București
Strada Comana 3 , Victoriei , București
Bld. Alexandru Ioan Cuza 98A , Victoriei , București
Str. Buzesti 85 , Victoriei , București
Str. Argentina 30 , Victoriei , București
Str. Buzesti 71 , Victoriei , București
Str. Dr. Felix 55 , Victoriei , București
Str. Argentina 41 , Victoriei , București
Calea Grivitei 84-98 , Victoriei , București
Bdul. Lascar Catargiu 47-53 , Victoriei , București
Calea Grivitei 84-98 , Victoriei , București
Str. Buzesti 62-64 , Victoriei , București
Str. Sevastopol 13-17 , Victoriei , București
Bdul.Dinicu Golescu 36 , Victoriei , București
Str. Gheorghe Manu 5 , Victoriei , București
Str. Scarlatescu 17-19 , Victoriei , București
Str. Buzesti 75-77 , Victoriei , București
Str. Dr. Felix 87 , Victoriei , București
Str. Dr. Felix 17-19 , Victoriei , București
Dr. Felix 57 , Victoriei , București
Bdul. Iancu de Hunedoara 54B , Victoriei , București
Str. Dr. Iacob Felix 70 , Victoriei , București
Bd. Nicolae Titulescu 4-8 , Victoriei , București
Grigore Alexandrescu 59 , Victoriei , București
Sos. Nicolae Titulescu 48 , Victoriei , București
Bdul. Ion Mihalache 15-17 , Victoriei , București
Calea Victoriei 145 , Victoriei , București
Frumoasa 30 , Victoriei , București
Str. Gheorghe Polizu 58-60 , Victoriei , București
Buzesti 76-80 , Victoriei , București
Dr. Iacob Felix 63-69 , Victoriei , București
Iancu de Hunedoara 56-60 , Victoriei , București
Bdul. Iancu de Hunedoara 48-50 , Victoriei , București
Bdul. Aviatorilor 8 , Victoriei , București
Str. Louis Blanc 1 , Victoriei , București
Ești chiriaș?
Contactează-ne și vei primi consultanță gratuită cu privire la:
- condițiile existente în piață
- renegociere termeni contractuali
- opțiuni de relocare
Ești proprietar?
Contactează-ne dacă vrei să fii prezent în cea mai avansată platformă online dedicată închirierii/vânzării de birouri
Contactează-neVIDEO 360 de grade: puteți schimba unghiul de vizualizare prin click / rotire pe video.
Utilizatorii iPhone: faceți click pe titlul din VIDEO pentru o vizualizare completă în aplicația YouTube.

















































