Birouri de inchiriat in Matrix Office Building
Birouri de inchiriat intr-o cladire istorica amplasata la km 0 al Bucurestiului, zona Unirii, sector 3, Bucuresti.
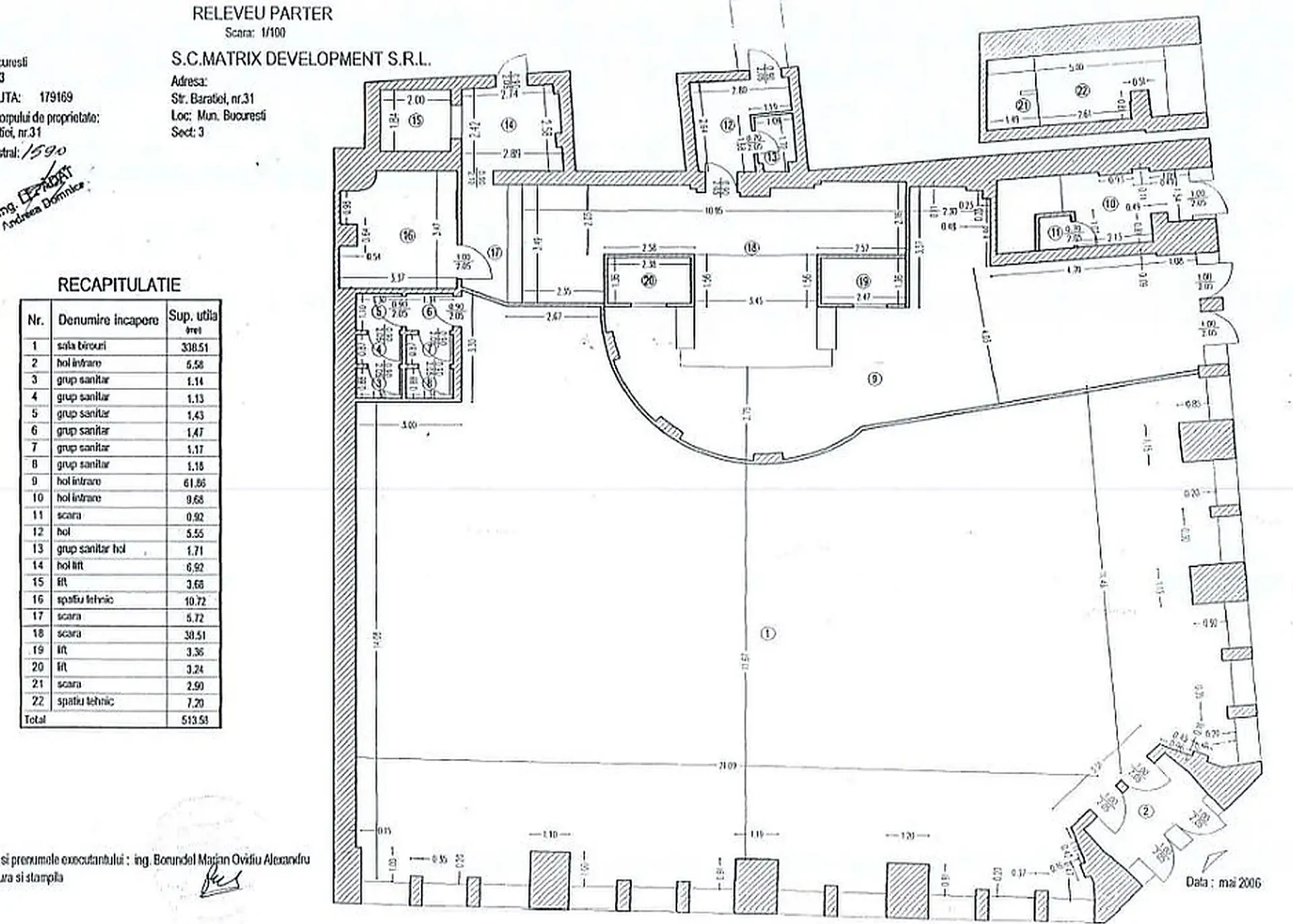
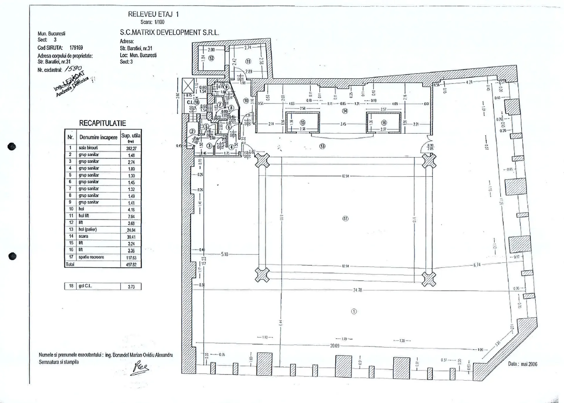
TABEL DETALIAT SUPRAFEȚE DISPONIBILE
| Etaj | Suprafață (m2) | Descriere | Disponibil | |||
| 1 | 380 | open space / compartimentat | Imediat | Plan | ||
| 2 | 382 | open space | Imediat | Plan | ||
| 3 | 387 | open space | Imediat | Plan | ||
| Mansarda | 372 | compartimentat | Imediat | Plan |
Spatii de birouri pe Strada Baratiei 31
Spatii de birouri de inchiriat in sectorul 3, zona Centrului Vechi, in spatele magazinului Cocor, la doar 3 minute de mers de statia de metrou Piata Unirii si Unirea Shopping Center.
Cladirea este situata intre bulevardele I.C. Bratianu si Corneliu Coposu, respectiv la 230 de metri de Piata Sfantul Gheorghe si 550 de metri de Piata Universitatii.
Zona are un caracter mixt, incluzand cladiri istorice cu folosinta de rezidential, birouri, hoteluri, zone verzi, spatii comerciale, edificii culturale / religioase, etc.
Accesul cu automobilul este excelent, beneficiind de conexiuni rapide si directe cu Bulevardul I.C. Bratianu (artera cu 4 benzi pe sens), Calea Mosilor, Bulevardul Corneliu Coposu si Splaiul Independentei.
Transportul public include statia de metrou Unirii (3 magistrale) la 3 minute de mers, respectiv statii de autobuz, troleibuz si tramvai la 2-8 minute de mers de cladire.
Matrix OB este o cladire istorica de birouri construita in 1924 si modernizata in 2002, avand o suprafata totala de 2,649 m2. Cladirea este desfasurata pe subsol, parter, 3 etaje si mansarda, cu o suprafata totala a etajului curent de aprox. 382 m2.
La subsolul cladirii exista spatii de depozitare.
Cladirea nu beneficiaza de parcare, dar in zona exista parcarea multietajata a centrului comercial Cocor in fata cladirii, parcarea multietajata Unirea si parcari publice exterioare.
Status Cladire finalizata
Dată finalizare 1924; modernizat 2002
Niveluri S+P+3+M
Suprafață închiriabilă 2,649 m²
- Zona Comerciala
- Servicii receptie
- Aer Conditionat
- Incalzire Centralizata
- Podea Inaltata
- Inaltime utila minim 2,7 metri
- Ferestre cu deschidere
- Receptie
- Lift/Lifturi
- Detectoare Fum/Foc
- Mocheta
Alte oferte din Unirii
Oferte disponibile: 25
Splaiul Independentei 15 , Unirii , București
Splaiul Independentei 15 , Unirii , București
Str. Cluceru Udricani 20 , Unirii , București
Bld. Corneliu Coposu 6-8 , Unirii , București
Str. Matei Basarab 20 , Unirii , București
Str. Baratiei 35 , Unirii , București
Str. Vulturilor 98A , Unirii , București
Str. Popa Soare 9 , Unirii , București
Bd. Dimitrie Cantemir 1 , Unirii , București
Bld. Mircea Voda 24 , Unirii , București
Str. Baratiei 41-43 , Unirii , București
Str. Halelor 7 , Unirii , București
Str. Matei Basarab 13-15 , Unirii , București
Str. Vulturilor 18-18A , Unirii , București
Str. Olteni 2-4 , Unirii , București
Str. Radu Voda 17 , Unirii , București
Str. Lipscani 102 , Unirii , București
Str. Turturelelor 62 , Unirii , București
Str. Remus 1-3 , Unirii , București
Str. Stelea Spataru 12 , Unirii , București
Mircea Voda 30 , Unirii , București
Str. Nerva Traian 3 , Unirii , București
Str. Vulturilor 12-14 , Unirii , București
Sfanta Vineri 29 , Unirii , București
Calea Mosilor 51 , Unirii , București
Ești chiriaș?
Contactează-ne și vei primi consultanță gratuită cu privire la:
- condițiile existente în piață
- renegociere termeni contractuali
- opțiuni de relocare
Ești proprietar?
Contactează-ne dacă vrei să fii prezent în cea mai avansată platformă online dedicată închirierii/vânzării de birouri
Contactează-ne



































