Birouri de inchiriat in City Business Center
Birouri de inchiriat intr-o cladire modernizata din zona ultracentrala, cu vizibilitate excelenta la Bulevardul Unirii, sector 3, Bucuresti.
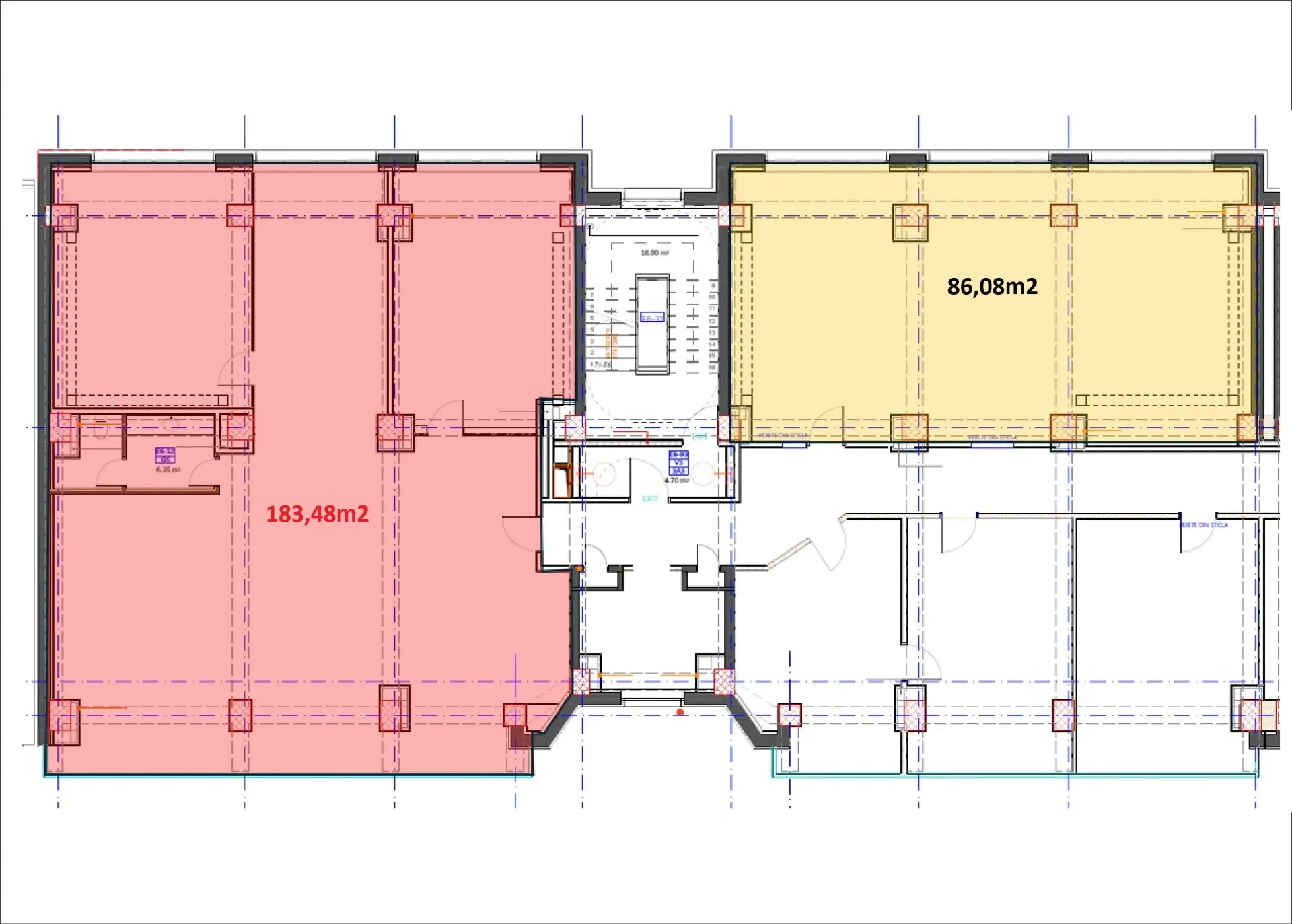
TABEL DETALIAT SUPRAFEȚE DISPONIBILE
| Etaj | Suprafață (m2) | Descriere | Disponibil | |||
| 6 | 183 | open space, 2 birouri , GS | Imediat | Poze | Plan | |
| 10 | 440 | spatiu compartimentat, 12 birouri, birou deschis, chicineta, 2 grupuri sanitare proprii | Imediat | Poze | Plan |
Inchiriere birouri pe Strada Nerva Traian 3
Inchiriere birouri in sectorul 3, pe strada Nerva Traian, la doar 50 metri intre Bulevardul Unirii si Bulevardul Octavian Goga.
Cladirea este lipita de fostul hotel DoubleTree by Hilton si in fata viitorul preconizat Cartier al Justitiei, la o distanta de 1,2 km de Piata Unirii / Unirea Shopping Center si 700 de metri de Piata Alba Iulia.
Vecinatatile cladirii includ cladiri rezidentiale si spatii comerciale, cladiri de birouri si sedii administrative (Biblioteca Nationala, Enel, Tribunalul Bucuresti etc.), hoteluri etc.
Accesul cu automobilul este excelent, fiind realizat din bulevarde majore, cu conexiuni directe catre km 0 si inelul median de circulatie.
Transportul public include statii de autobuz si tramvai in proximitatea cladirii (1-2 minute de mers), cu acces in 20 minute la nodul de transport de la Piata Unirii (2 magistrale de metrou).
City Business Center este o cladire de birouri modernizata in 2017, desfasurata pe subsol, parter si 11 etaje. Cladirea are o suprafata totala inchiriabila de 13.250 m2, cu o suprafata pe etaj de 950-1.150 m2.
Cladirea beneficiaza de receptie modernizata, acces securizat si paza 24/7, patru lifturi de persoane, climatizare cu ventiloconvectoare, tavan casetat, sistem de detectie fum/foc si sprinklere.
City Business Center dispune de spatii comerciale la parter (Mega Image, cafenea, cantina), loc pentru fumat si locuri de parcare securizate cu bariera in partea din spate, respectiv locuri de parcare publice in fata cladirii.
Status Cladire finalizata
Dată finalizare 1996 (modernizata 2017)
Niveluri S+P+11
Suprafață închiriabilă 13,250 m²
Suprafață etaj curent 1,130 m²
Locuri parcare 55
- Zona Comerciala
- Servicii receptie
- Parcare proprie
- Cafenea
- Cantina
- Restaurant
- Punct bancar
- ATM
- Farmacie
- Ventiloconvectoare
- Tavan Suspendat
- Acces Securizat
- Ferestre cu deschidere
- Receptie
- Paza 24/7
- Lift/Lifturi
- Furnizori multipli Date si Voce
- CCTV / Supraveghere Video
- Detectoare Fum/Foc
- Sprinkler System
- Mocheta
Alte oferte din Unirii
Oferte disponibile: 25
Splaiul Independentei 15 , Unirii , București
Splaiul Independentei 15 , Unirii , București
Str. Cluceru Udricani 20 , Unirii , București
Bld. Corneliu Coposu 6-8 , Unirii , București
Str. Matei Basarab 20 , Unirii , București
Str. Baratiei 35 , Unirii , București
Str. Baratiei 31 , Unirii , București
Str. Vulturilor 98A , Unirii , București
Str. Popa Soare 9 , Unirii , București
Bd. Dimitrie Cantemir 1 , Unirii , București
Bld. Mircea Voda 24 , Unirii , București
Str. Baratiei 41-43 , Unirii , București
Str. Halelor 7 , Unirii , București
Str. Matei Basarab 13-15 , Unirii , București
Str. Vulturilor 18-18A , Unirii , București
Str. Olteni 2-4 , Unirii , București
Str. Radu Voda 17 , Unirii , București
Str. Lipscani 102 , Unirii , București
Str. Turturelelor 62 , Unirii , București
Str. Remus 1-3 , Unirii , București
Str. Stelea Spataru 12 , Unirii , București
Mircea Voda 30 , Unirii , București
Str. Vulturilor 12-14 , Unirii , București
Sfanta Vineri 29 , Unirii , București
Calea Mosilor 51 , Unirii , București
Ești chiriaș?
Contactează-ne și vei primi consultanță gratuită cu privire la:
- condițiile existente în piață
- renegociere termeni contractuali
- opțiuni de relocare
Ești proprietar?
Contactează-ne dacă vrei să fii prezent în cea mai avansată platformă online dedicată închirierii/vânzării de birouri
Contactează-neVIDEO 360 de grade: puteți schimba unghiul de vizualizare prin click / rotire pe video.
Utilizatorii iPhone: faceți click pe titlul din VIDEO pentru o vizualizare completă în aplicația YouTube.








































