Birouri de inchiriat in Halelor 7
Birouri de inchiriat intr-o cladire de birouri amplasata la km 0 al capitalei, la adresa Strada Halelor 7, sector 3
TABEL DETALIAT SUPRAFEȚE DISPONIBILE
| Etaj | Suprafață (m2) | Descriere | Disponibil | |||
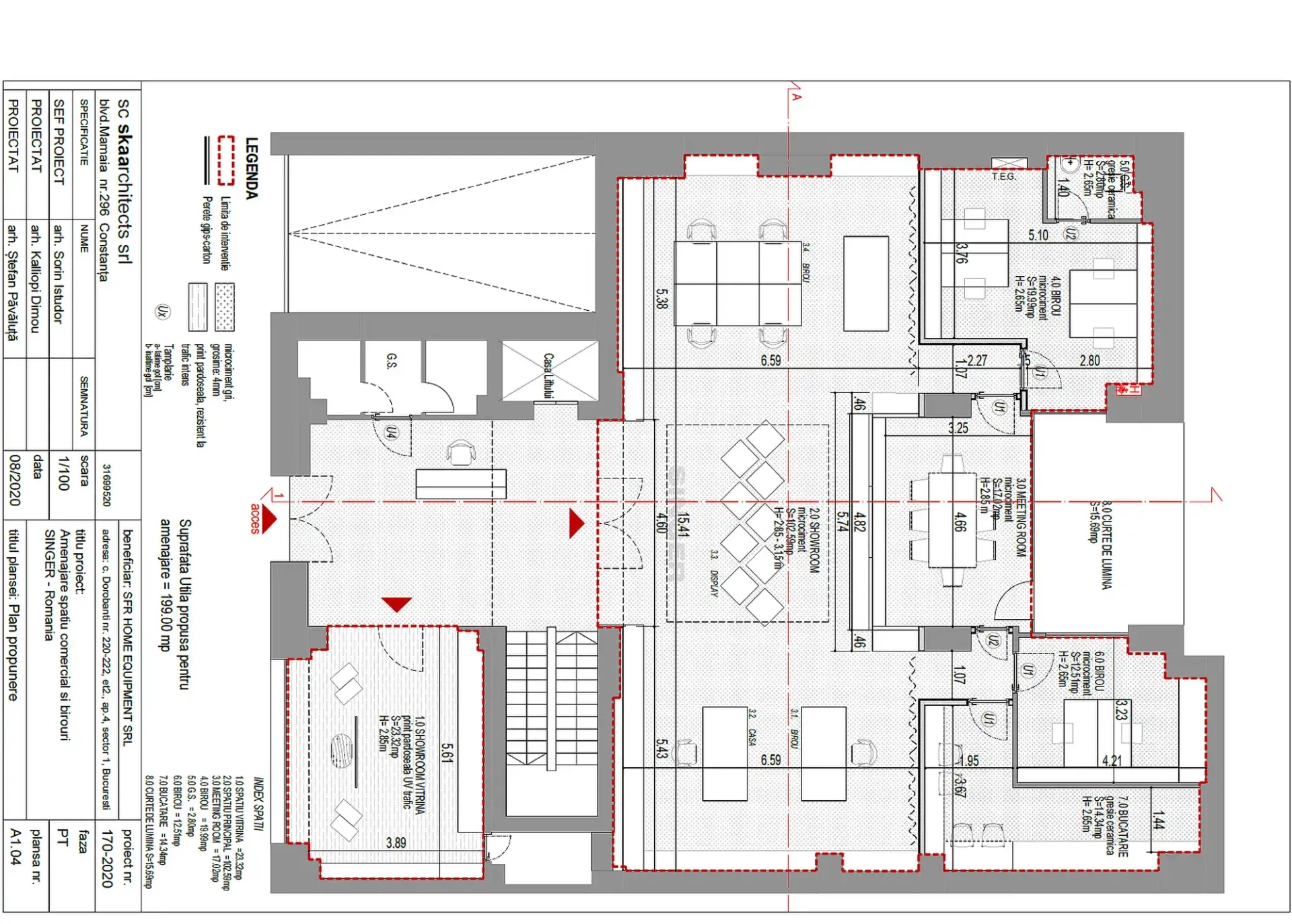
| Parter | 199 | spatiu comercial la parterul cladirii, impartit in 2 zone, fiecare cu propria intrare din zona de receptie; chirie 20 €/m2/luna (nu se aplica TVA); SC 4 €/m2/luna+TVA | Imediat | Plan | ||
| 1 | 286 | 2 zone open space, 5 birouri, bucatarie, grup sanitar, spatiu tehnic | 01.06.2026 | Plan |
Inchiriere birouri in Bucuresti, zona Unirii
Inchiriere birouri in Halelor 7, cladire de birouri amplasata in Piata Unirii, pe Strada Halelor - Splaiul Independentei.
Cladirea este amplasata langa Hanul lui Manuc, vis-a-vis de Palatului de Justitie Bucuresti, beneficiind de o vedere ampla catre toata Piata Unirii.
Vecinatatile includ functiuni mixte: cladiri de birouri si administrative, centre comerciale, clinici medicale private, numeroase magazine, restaurante si cafenele, hoteluri etc.
Accesul cu automobilul este excelent, zona avand acces la bulevarde majore precum: Splaiul Independentei, Bulevardul I.C. Bratianu, una dintre pricipalele artere care asigura legaturi catre Universitate (900 m) - Piata Romana (2.2 km) - Piata Victoriei (3.2 km), Bulevardul Unirii, Bulevardul Corneliu Coposu etc.
Transportul public este excelent dezvoltat si include prezenta tuturor tipurilor de transport în comun la 1-5 minute de mers pe jos: 2 magistrale de metrou, numeroase linii de autobuz şi tramvai.
Halelor 7 este o cladire de birouri finalizata in anul 2006, cu fatada istorica si elemente moderne (mansarda panoramica de sticla), avand o suprafata inchiriabila totala de 1.597 m2. Cladirea este desfasurata pe subsol, parter, 4 etaje si mansarda, asigurand o suprafata inchiriabila pe etaj de aprox. 250 m2.
Cladirea beneficiaza de 10 locuri de parcare amplasate in subsol.
Status Cladire finalizata
Dată finalizare 2006
Niveluri S+P+4+M
Suprafață închiriabilă 1,597 m²
Locuri parcare 7
- Servicii receptie
- Parcare proprie
- HVAC
- Ventiloconvectoare
- Aer Conditionat
- Incalzire Centralizata
- Tavan Suspendat
- Ferestre cu deschidere
- Receptie
- Paza 24/7
- Lift/Lifturi
- Furnizori multipli Date si Voce
- CCTV / Supraveghere Video
- Detectoare Fum/Foc
- Mocheta
Alte oferte din Unirii
Oferte disponibile: 25
Splaiul Independentei 15 , Unirii , București
Splaiul Independentei 15 , Unirii , București
Str. Cluceru Udricani 20 , Unirii , București
Bld. Corneliu Coposu 6-8 , Unirii , București
Str. Matei Basarab 20 , Unirii , București
Str. Baratiei 35 , Unirii , București
Str. Baratiei 31 , Unirii , București
Str. Vulturilor 98A , Unirii , București
Str. Popa Soare 9 , Unirii , București
Bd. Dimitrie Cantemir 1 , Unirii , București
Bld. Mircea Voda 24 , Unirii , București
Str. Baratiei 41-43 , Unirii , București
Str. Matei Basarab 13-15 , Unirii , București
Str. Vulturilor 18-18A , Unirii , București
Str. Olteni 2-4 , Unirii , București
Str. Radu Voda 17 , Unirii , București
Str. Lipscani 102 , Unirii , București
Str. Turturelelor 62 , Unirii , București
Str. Remus 1-3 , Unirii , București
Str. Stelea Spataru 12 , Unirii , București
Mircea Voda 30 , Unirii , București
Str. Nerva Traian 3 , Unirii , București
Str. Vulturilor 12-14 , Unirii , București
Sfanta Vineri 29 , Unirii , București
Calea Mosilor 51 , Unirii , București
Ești chiriaș?
Contactează-ne și vei primi consultanță gratuită cu privire la:
- condițiile existente în piață
- renegociere termeni contractuali
- opțiuni de relocare
Ești proprietar?
Contactează-ne dacă vrei să fii prezent în cea mai avansată platformă online dedicată închirierii/vânzării de birouri
Contactează-ne



































