Închiriere spații birouri în Hermes Business Campus
Închiriere spații birouri într-un complex de birouri Clasa A amplasat în nordul capitalei, zona Pipera, pe Bulevardul Dimitrie Pomeiu nr. 5-7, sector 2
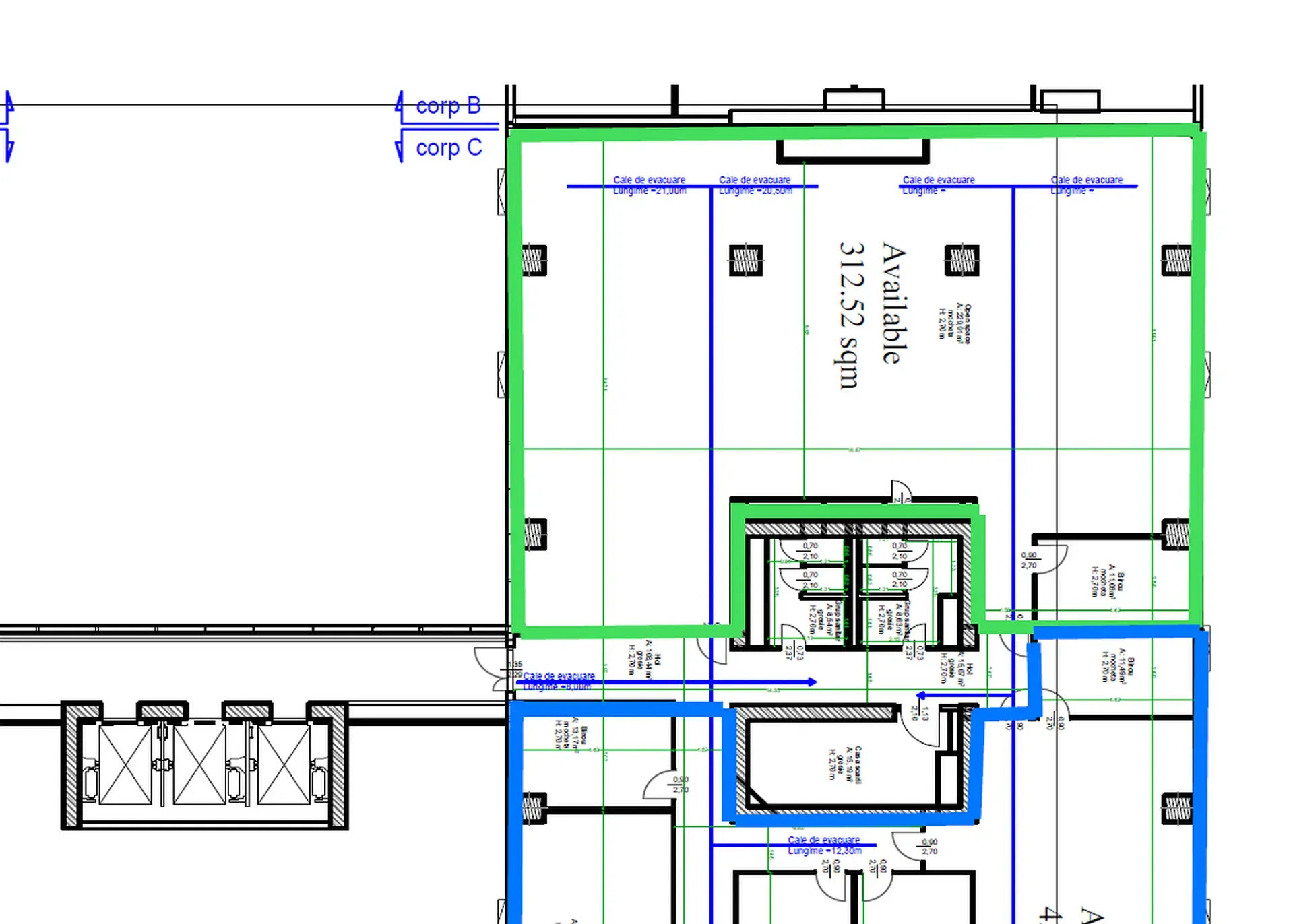
TABEL DETALIAT SUPRAFEȚE DISPONIBILE
| Etaj | Suprafață (m2) | Descriere | Disponibil | |||
| 3 | 171 | Cladire B: open space, luminos; chirie 14.5 | Imediat | |||
| 3 | 285 | Cladire B: open space, birou pentru 2 desk, bucatarie | Imediat |
Birouri De Închiriat Sector 2, Zona Pipera
Birouri de închiriat in Sector 2, în incinta Hermes Business Campus. Complex de birouri de clasă A, amplasat în nordul Capitalei, pe Bulevardul Dimitrie Pompeiu, vis-à-vis de staţia de metrou Pipera.
Complexul este situat în inima zonei de birouri Dimitrie Pompeiu, la numai 500 metri de zona Barbu Văcărescu şi 4,7 km de Piaţa Victoriei.
Accesibilitatea în zonă are caracteristici bune şi a înregistrat îmbunătăţiri în ultima perioadă. Transportul public include metrou (staţia Pipera) şi linii de tramvai, cu staţie amplasată chiar în faţa Hermes BC. Locaţia beneficiază de acces direct către celelalte zone majore de birouri din nordul Capitalei (B.Văcărescu, Pipera, Piata Victoriei).
Hermes Business Campus include 3 clădiri cu o suprafaţă închiriabilă totală de 75.400 m2, livrate în perioada 2014-2017. Clădirile dispun de 4 niveluri subterane pentru parcare, parter şi 8 etaje, cu o suprafaţă pe nivel de 3.500 – 4.800 m2.
Spaţiile au specificaţii de clasă A şi certificare BREEAM “Excelent”, incluzând BMS, HVAC, podea înălţată şi tavan suspendat, ferestre cu deschidere, acces securizat, generator de back-up, detectoare de fum, panouri solare înglobate în faţadă etc.
Complexul este închiriat către companii majore precum Xerox, Genpact, DB Schenker, Luxoft, Mondelez, Ambasada Olandei, Elefant, Regus, SNC Lavalin etc.
Status Cladire finalizata
Dată finalizare 2014 - 2017
Niveluri 4S+P+8
Suprafață închiriabilă 75,400 m²
Suprafață etaj curent 3,500 m²
Locuri parcare 1072
- Zona Comerciala
- Servicii receptie
- Parcare proprie
- Parcare biciclete
- Cafenea
- Cantina
- Punct Presa
- BREEAM
- BMS - Building Management System
- HVAC
- Tavan Suspendat
- Acces Securizat
- Lift/Lifturi
- Generator de Back-up
- CCTV / Supraveghere Video
- Detectoare Fum/Foc
- Mocheta
- Podea Inaltata
- Inaltime utila minim 2,7 metri
- Ferestre cu deschidere
- Receptie
- Paza 24/7
- Furnizori multipli Date si Voce
Alte oferte din Dimitrie Pompeiu
Oferte disponibile: 18
Dimitrie Pompeiu 9-9A , Dimitrie Pompeiu , București
Dimitrie Pompeiu 4-6 , Dimitrie Pompeiu , București
Str. George Constantinescu 3 , Dimitrie Pompeiu , București
Bdul. Dimitrie Pompeiu 9-9A , Dimitrie Pompeiu , București
Intrarea Chefalului 10A-10B , Dimitrie Pompeiu , București
Bdul. Dimitrie Pompeiu 10A , Dimitrie Pompeiu , București
Bdul. Dimitrie Pompeiu 10A , Dimitrie Pompeiu , București
Str. George Constantinescu 2-4 , Dimitrie Pompeiu , București
Bdul. Dimitrie Pompeiu 4-6 , Dimitrie Pompeiu , București
Bdul. Dimitrie Pompeiu 5-7 , Dimitrie Pompeiu , București
Bdul. Dimitrie Pompeiu 6E , Dimitrie Pompeiu , București
Str. Fabrica de Glucoza nr. 11 B , Dimitrie Pompeiu , București
Str. Fabrica de Glucoza 21 , Dimitrie Pompeiu , București
Dimitrie Pompeiu 5-7 , Dimitrie Pompeiu , București
Bdul. Dimitrie Pompeiu 6A , Dimitrie Pompeiu , București
Bdul. Dimitrie Pompeiu 4-6 , Dimitrie Pompeiu , București
Str. George Constantinescu 2C , Dimitrie Pompeiu , București
Bdul. Dimitrie Pompeiu 9-9A , Dimitrie Pompeiu , București
Ești chiriaș?
Contactează-ne și vei primi consultanță gratuită cu privire la:
- condițiile existente în piață
- renegociere termeni contractuali
- opțiuni de relocare
Ești proprietar?
Contactează-ne dacă vrei să fii prezent în cea mai avansată platformă online dedicată închirierii/vânzării de birouri
Contactează-neVIDEO 360 de grade: puteți schimba unghiul de vizualizare prin click / rotire pe video.
Utilizatorii iPhone: faceți click pe titlul din VIDEO pentru o vizualizare completă în aplicația YouTube.




























