Birouri de inchiriat in Conect 1
Birouri de inchiriat in Bucuresti, zona Dimitrie Pompeiu, Sector 2, in cadrul cladirii 1 din business park-ul Conect, la 5 minute de mers de statia de metrou Pipera
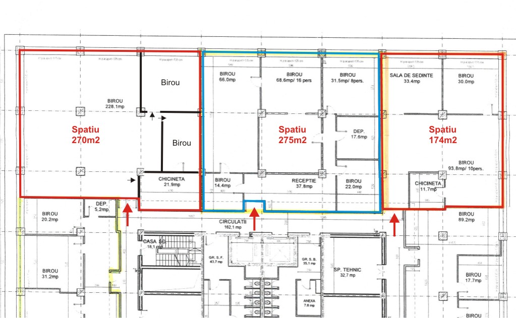
TABEL DETALIAT SUPRAFEȚE DISPONIBILE
| Etaj | Suprafață (m2) | Descriere | Disponibil | |||
| 1 | 808 | open space, 4 birouri | Imediat | Poze | ||
| 2 | 735 | 2 zone open space, 2 birouri, camera depozitare | Imediat | Poze | ||
| 4 | 182 | open space, birou, sala de sedinte, chicineta, camera server | Imediat | Plan | ||
| 4 | 270 | open space, 2 birouri, bucatarie | Imediat | Poze | Plan | |
| 4 | 275 | layout nou: open space, 3 birouri, bucatarie | Imediat | Plan | ||
| 5 | 192 | open space / compartimentat , bucatarie, camera server, anexe | Imediat | Plan |
Inchiriere birouri in Bucuresti, Sector 2
Inchiriere birouri Sector 2 pe Bulevardul Dimitrie Pompeiu, in cadrul cartierului de afaceri dezvoltat in jurul statiei de metrou Pipera.
Business park-ul Conect este amplasat intre statia de metrou Pipera (400 metri), intersectia cu Strada Petricani (200 m), magazinul Mobexpert Pipera si conexiunea cu autostrada A3 Bucuresti-Ploiesti (600 m).
Vecinatatile includ cea mai mare concentrare de birouri din Bucuresti, cu peste 500.000 m2 de spatii de birouri moderne, noi blocuri rezidentiale, spatii comerciale si functiuni comerciale complementare etc.
Accesul cu automobilul este realizat pe Bulevardul Dimitrie Pompeiu, desfasurat intre Bulevardul Barbu Vacarescu (zona Promenada Mall) si Strada Petricani, asigurand acces catre celelalte zone noi de birouri si rezidentiale din nordul capitalei, respectiv catre Aeroportul Internațional Henri Coanda.
Transportul public include statia de metrou Pipera la 5 minute de mers pe jos si statie de tramvai in fata business park-ului Conect.
Conect este un parc de afaceri modern, compus in prezent din doua cladiri cu specificatii diferite, insumand o suprafata utila de birouri de 22.300 m2.
Cladirea Conect 1 a fost renovata si modernizata in 2005, fiind desfasurata pe subsol, parter si 5 etaje. Cladirea are specificatii de clasa B si dispune de o suprafata utila de 9.860 m2 (1.750 m2 / etaj).
Cladirea Conect 3 este o cladire noua, finalizata in 2008, cu specificatii de clasa A precum podea inaltata si tavan suspendat, HVAC, inaltime utila pe etaj de peste 2,7 m, detectoare de fum/foc etc. Cladirea este desfasurata pe subsol, parter si 8 etaje, avand o suprafata utila totala de 12.455 m2 (1.440 m2 / etaj).
Parcul beneficiaza de un total de 500 locuri de parcare, amplasate in subteran (131 locuri) si exterior.
Status Cladire finalizata
Dată finalizare 2005 / 2008
Niveluri S+P+5 / 2S+P+8
Suprafață închiriabilă 22,300 m²
Suprafață etaj curent 1,750 m²
Locuri parcare 500
- Parcare proprie
- HVAC
- Tavan Suspendat
- Inaltime utila minim 2,7 metri
- Ferestre cu deschidere
- Receptie
- Paza 24/7
- Lift/Lifturi
- Generator de Back-up
- Furnizori multipli Date si Voce
- CCTV / Supraveghere Video
- Detectoare Fum/Foc
Alte oferte din Dimitrie Pompeiu
Oferte disponibile: 18
Dimitrie Pompeiu 9-9A , Dimitrie Pompeiu , București
Dimitrie Pompeiu 4-6 , Dimitrie Pompeiu , București
Str. George Constantinescu 3 , Dimitrie Pompeiu , București
Bdul. Dimitrie Pompeiu 9-9A , Dimitrie Pompeiu , București
Intrarea Chefalului 10A-10B , Dimitrie Pompeiu , București
Bdul. Dimitrie Pompeiu 10A , Dimitrie Pompeiu , București
Str. George Constantinescu 2-4 , Dimitrie Pompeiu , București
Bdul. Dimitrie Pompeiu 4-6 , Dimitrie Pompeiu , București
Bdul. Dimitrie Pompeiu 5-7 , Dimitrie Pompeiu , București
Bdul. Dimitrie Pompeiu 6E , Dimitrie Pompeiu , București
Str. Fabrica de Glucoza nr. 11 B , Dimitrie Pompeiu , București
Str. Fabrica de Glucoza 21 , Dimitrie Pompeiu , București
Dimitrie Pompeiu 5-7 , Dimitrie Pompeiu , București
Bdul. Dimitrie Pompeiu 6A , Dimitrie Pompeiu , București
Bdul. Dimitrie Pompeiu 4-6 , Dimitrie Pompeiu , București
Str. George Constantinescu 2C , Dimitrie Pompeiu , București
Bdul. Dimitrie Pompeiu 9-9A , Dimitrie Pompeiu , București
Bdul. Dimitrie Pompeiu 5-7 , Dimitrie Pompeiu , București
Ești chiriaș?
Contactează-ne și vei primi consultanță gratuită cu privire la:
- condițiile existente în piață
- renegociere termeni contractuali
- opțiuni de relocare
Ești proprietar?
Contactează-ne dacă vrei să fii prezent în cea mai avansată platformă online dedicată închirierii/vânzării de birouri
Contactează-ne




























