Inchiriere birouri in Iride Business Park - cladiri clasa B
Închiriere birouri în nordul Bucurestiului, intr-un parc modern de afaceri amplasat pe Bulevardul Dumitrie Pompeiu 9-9A, sector 2.
TABEL DETALIAT SUPRAFEȚE DISPONIBILE
| Etaj | Suprafață (m2) | Descriere | Disponibil | |||
| 1 | 772 | Cladire B1: 2 zone open space, sala de meeting, bucatarie; chirie 6€/m2/luna (pe primii 2 ani), din anul 3 - 12€/m2/luna | Imediat | |||
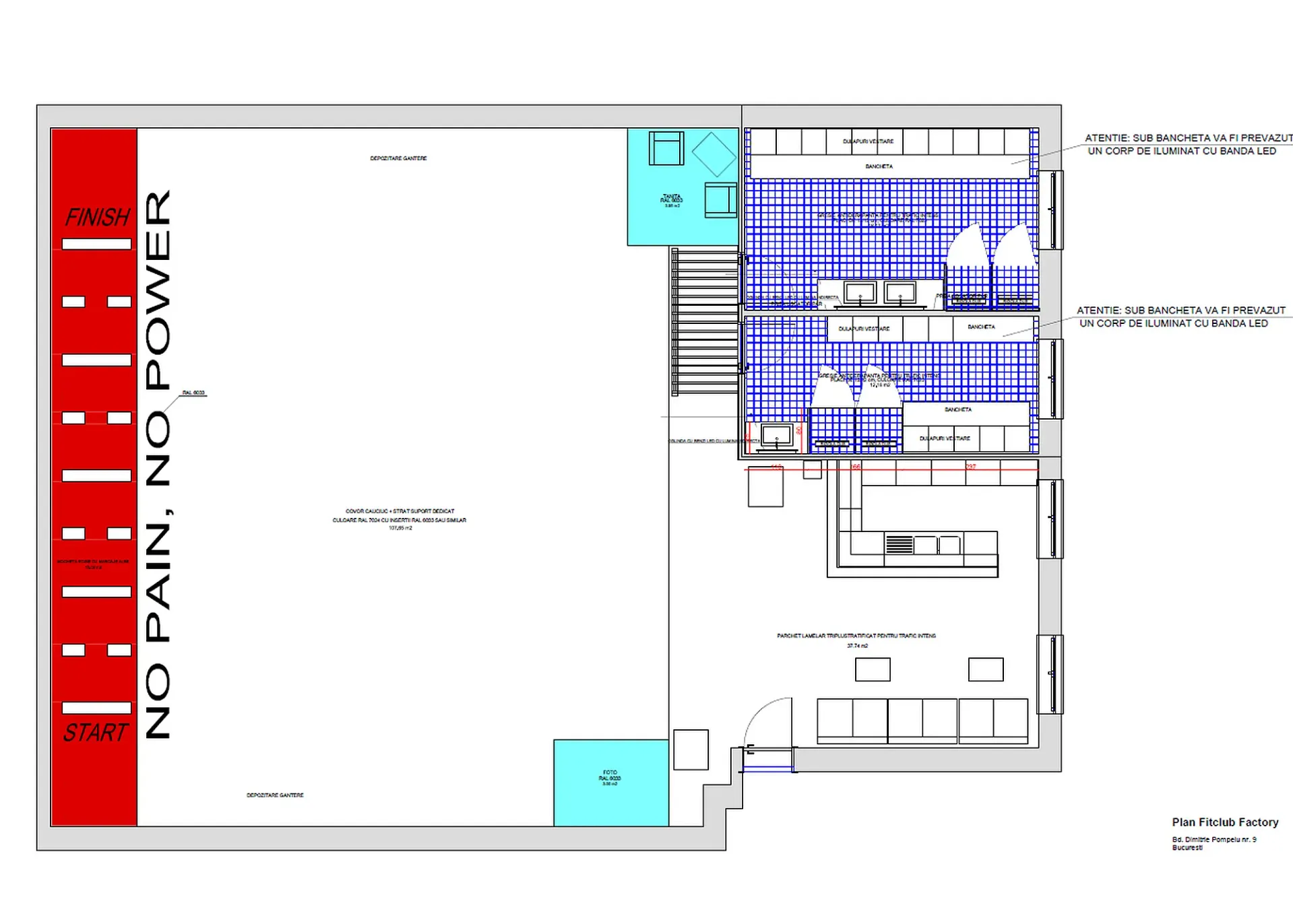
| 1 | 226 | Cladire 15A: amenajare sala fitness, zona lounge / receptie, zona open space, 2 vestiare cu dusuri, inaltime utila 4.5m | Imediat | Poze | Plan |
Birouri de inchiriat Dimitrie Pompeiu 9-9a
Birouri de inchiriat in sectorul 2, in Iride Business Park, un parc de birouri cu o suprafață inchiriabilă de peste 68.000 m2, amplasat în nordul Bucureștiului, pe Bulevardul Dimitrie Pompeiu.
Parcul este parte a celei mai extinse zone de birouri din capitală, dezvoltată în jurul stației de metrou Pipera, amplasată la 300 de metri distanță de Iride.
Accesibilitatea auto este bună iar transportul public include magistrala de metrou M1, linii de tramvai și autobuz cu stație amplasată chiar in fața intrării principale în Iride.
Parcul oferă spații de birouri de închiriat în mai multe clădiri având regimuri de inalțime diferite și caracteristici de clasa A sau B.
Status Cladire finalizata
Dată finalizare 2001-2007
Niveluri P + 2
Suprafață închiriabilă 68,000 m²
Locuri parcare 265
- Zona Comerciala
- Parcare proprie
- Tavan Suspendat
- Ferestre cu deschidere
- Paza 24/7
- Generator de Back-up
- CCTV / Supraveghere Video
- Detectoare Fum/Foc
- Inaltime utila minim 2,7 metri
- Furnizori multipli Date si Voce
- Ventiloconvectoare
Alte oferte din Dimitrie Pompeiu
Oferte disponibile: 18
Dimitrie Pompeiu 9-9A , Dimitrie Pompeiu , București
Dimitrie Pompeiu 4-6 , Dimitrie Pompeiu , București
Str. George Constantinescu 3 , Dimitrie Pompeiu , București
Intrarea Chefalului 10A-10B , Dimitrie Pompeiu , București
Bdul. Dimitrie Pompeiu 10A , Dimitrie Pompeiu , București
Bdul. Dimitrie Pompeiu 10A , Dimitrie Pompeiu , București
Str. George Constantinescu 2-4 , Dimitrie Pompeiu , București
Bdul. Dimitrie Pompeiu 4-6 , Dimitrie Pompeiu , București
Bdul. Dimitrie Pompeiu 5-7 , Dimitrie Pompeiu , București
Bdul. Dimitrie Pompeiu 6E , Dimitrie Pompeiu , București
Str. Fabrica de Glucoza nr. 11 B , Dimitrie Pompeiu , București
Str. Fabrica de Glucoza 21 , Dimitrie Pompeiu , București
Dimitrie Pompeiu 5-7 , Dimitrie Pompeiu , București
Bdul. Dimitrie Pompeiu 6A , Dimitrie Pompeiu , București
Bdul. Dimitrie Pompeiu 4-6 , Dimitrie Pompeiu , București
Str. George Constantinescu 2C , Dimitrie Pompeiu , București
Bdul. Dimitrie Pompeiu 9-9A , Dimitrie Pompeiu , București
Bdul. Dimitrie Pompeiu 5-7 , Dimitrie Pompeiu , București
Ești chiriaș?
Contactează-ne și vei primi consultanță gratuită cu privire la:
- condițiile existente în piață
- renegociere termeni contractuali
- opțiuni de relocare
Ești proprietar?
Contactează-ne dacă vrei să fii prezent în cea mai avansată platformă online dedicată închirierii/vânzării de birouri
Contactează-neVIDEO 360 de grade: puteți schimba unghiul de vizualizare prin click / rotire pe video.
Utilizatorii iPhone: faceți click pe titlul din VIDEO pentru o vizualizare completă în aplicația YouTube.























