Spații de birouri de închiriat în Globalworth Campus – Cladirea C
Spații de birouri de inchiriat in clădiri de birouri moderne cu standarde de clasa A situate in nordul capitalei, langa statia de metrou Pipera, pe Bd. Dimitrie Pompeiu 4-6, sector 2
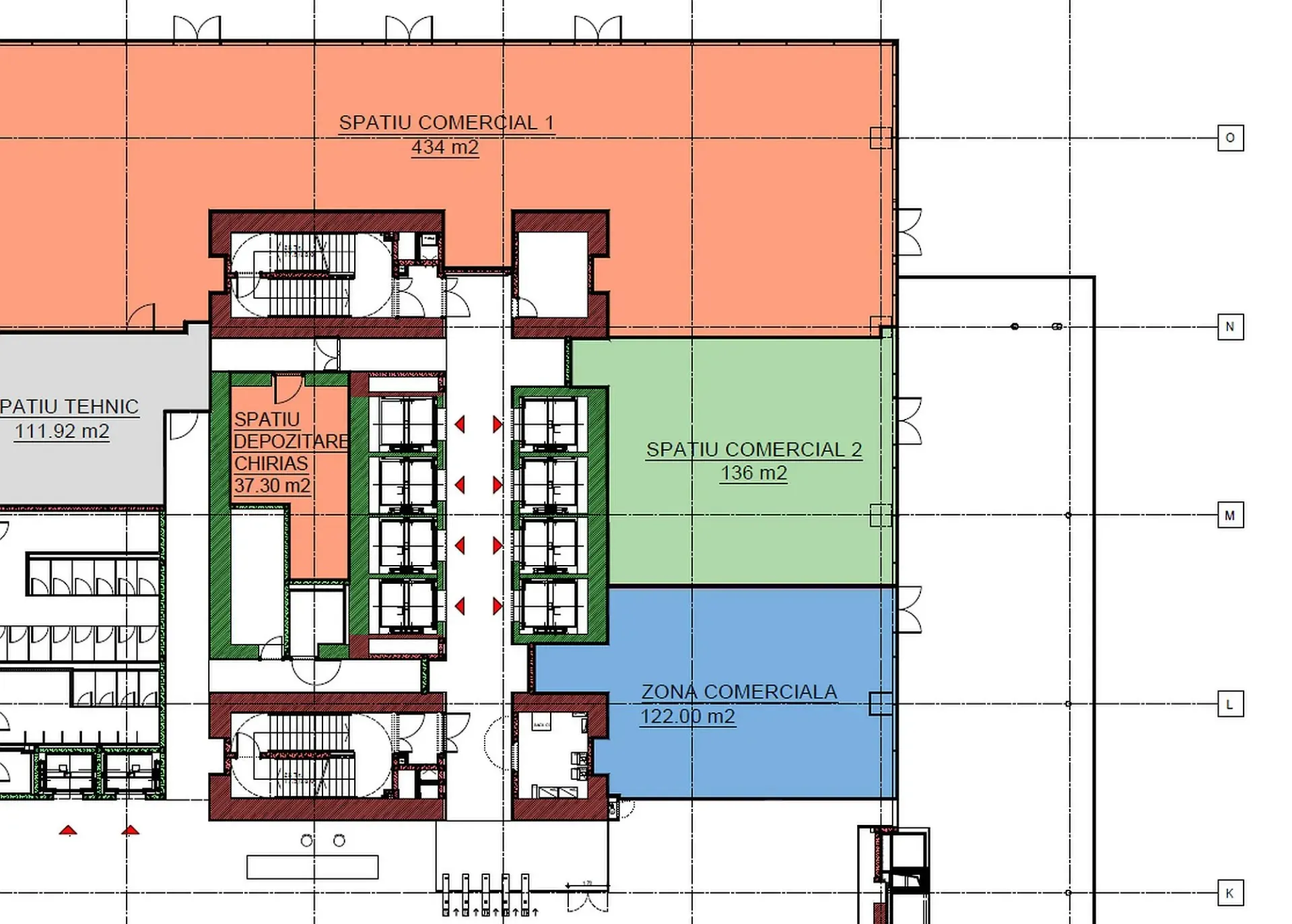
TABEL DETALIAT SUPRAFEȚE DISPONIBILE
| Etaj | Suprafață (m2) | Descriere | Disponibil | |||
| Parter | 136 | spatiu comercial neamenajat; intrare principala din exterior; intrare secundara dinspre lifturi; chirie 16 €/m2/luna; SC 4,5 €/m2/luna | Imediat | Plan |
Birouri De Închiriat Sector 2
Birouri de inchiriat in sectorul 2, in Globalworth Campus . Parc de afaceri amplasat in nordul Bucurestiului, in zona de birouri dezvoltata pe Bulevardul Dimitrie Pompeiu.
Parcul beneficiaza de cea mai buna locatie din zona, fiind amplasat chiar pe bulevardul principal, in spatele si lateralul statiei de metrou Pipera.
Accesibilitatea cu automobilul se realizeaza pe Bulevardul Dimitrie Pompeiu, cu legatura din Bulevardul Barbu Vacarescu, respectiv Soseaua Petricani. Transportul public include statia de metrou (Pipera) si statii de tramvai (2 linii), amplasate chiar in fata parcului de afaceri.
Globalworth Campus include 3 cladiri de birouri de clasa A, cu 13-25 de etaje, avand o suprafata inchiriabila totala de 88.000 m2 si 760 de locuri de parcare amplasate in subteran:
- Cladirea 1 (2S+P+13; suprafata inchiriabila 25.000 m2; livrata in 2017);
- Cladirea 2 (2S+P+13; suprafata inchiriabila 32.000 m2; livrata in 2018);
- Cladirea 3 (3S+P+25; suprafata inchiriabila 31.800m2; livrata in 2020).
Status Cladire finalizata
Dată finalizare 2017-2020
Niveluri 2S+P+13 / 25
Suprafață închiriabilă 88,000 m²
Suprafață etaj curent 1,785 m²
Locuri parcare 760
- Zona Comerciala
- Servicii receptie
- Parcare proprie
- Cafenea
- Cantina
- Restaurant
- Punct Presa
- Farmacie
- Sala de Fitness
- BMS - Building Management System
- HVAC
- Podea Inaltata
- Tavan Suspendat
- Acces Securizat
- Inaltime utila minim 2,7 metri
- Paza 24/7
- Generator de Back-up
- CCTV / Supraveghere Video
- Detectoare Fum/Foc
- Sprinkler System
Alte oferte din Dimitrie Pompeiu
Oferte disponibile: 18
Dimitrie Pompeiu 9-9A , Dimitrie Pompeiu , București
Dimitrie Pompeiu 4-6 , Dimitrie Pompeiu , București
Str. George Constantinescu 3 , Dimitrie Pompeiu , București
Bdul. Dimitrie Pompeiu 9-9A , Dimitrie Pompeiu , București
Intrarea Chefalului 10A-10B , Dimitrie Pompeiu , București
Bdul. Dimitrie Pompeiu 10A , Dimitrie Pompeiu , București
Bdul. Dimitrie Pompeiu 10A , Dimitrie Pompeiu , București
Str. George Constantinescu 2-4 , Dimitrie Pompeiu , București
Bdul. Dimitrie Pompeiu 5-7 , Dimitrie Pompeiu , București
Bdul. Dimitrie Pompeiu 6E , Dimitrie Pompeiu , București
Str. Fabrica de Glucoza nr. 11 B , Dimitrie Pompeiu , București
Str. Fabrica de Glucoza 21 , Dimitrie Pompeiu , București
Dimitrie Pompeiu 5-7 , Dimitrie Pompeiu , București
Bdul. Dimitrie Pompeiu 6A , Dimitrie Pompeiu , București
Bdul. Dimitrie Pompeiu 4-6 , Dimitrie Pompeiu , București
Str. George Constantinescu 2C , Dimitrie Pompeiu , București
Bdul. Dimitrie Pompeiu 9-9A , Dimitrie Pompeiu , București
Bdul. Dimitrie Pompeiu 5-7 , Dimitrie Pompeiu , București
Ești chiriaș?
Contactează-ne și vei primi consultanță gratuită cu privire la:
- condițiile existente în piață
- renegociere termeni contractuali
- opțiuni de relocare
Ești proprietar?
Contactează-ne dacă vrei să fii prezent în cea mai avansată platformă online dedicată închirierii/vânzării de birouri
Contactează-neVIDEO 360 de grade: puteți schimba unghiul de vizualizare prin click / rotire pe video.
Utilizatorii iPhone: faceți click pe titlul din VIDEO pentru o vizualizare completă în aplicația YouTube.































