Birouri de inchiriat in Gheorghe Titeica 142
Spatii birouri de inchiriat intr-o cladire de birouri de clasa A, amplasata in zona Barbu Vacarescu, Sector 2, Bucuresti
TABEL DETALIAT SUPRAFEȚE DISPONIBILE
| Etaj | Suprafață (m2) | Descriere | Disponibil | |||
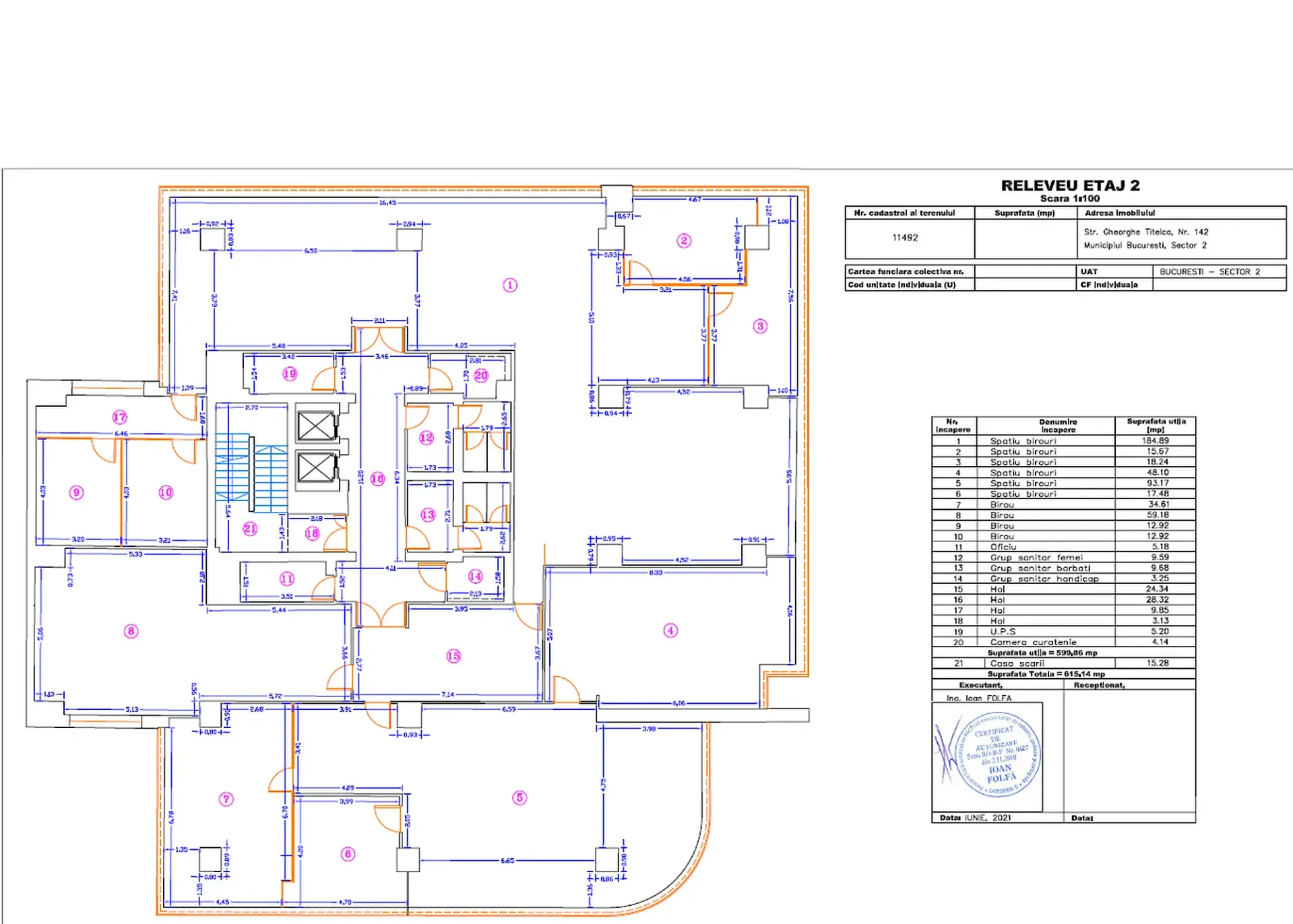
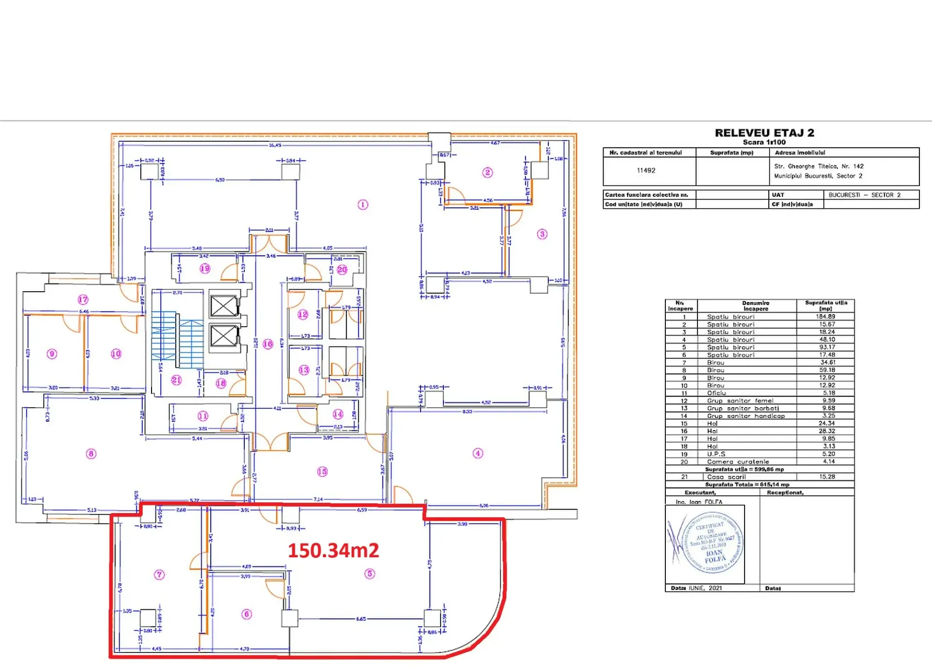
| 2 | 336 | open space, 4 birouri, sala de meeting | Imediat | Plan | ||
| 2 | 199 | open space, 3 birouri | 08.01.2025 | Plan | ||
| 2 | 600 | etaj complet, 2 zone open space, 7 birouri, sala de meeting | 08.01.2026 | Plan | ||
| 3 | 145 | zona open space, 2 birouri, phone-booth, chicineta | Imediat | Poze | Plan | |
| 3 | 172 | open space / compartimentat; posibilitate impartire in 2 spatii (101 m2 si 71 m2) | Imediat | Poze | Plan | |
| 4 | 134 | open space, 3 birouri cu partitii de sticla; posibilitate extindere cu inca 50m2 | Imediat | Poze | Plan | 
Birouri de închiriat zona extinsă Barbu Văcărescu
Ţiteica 142 este o clădire de birouri amplasată în zona de nord a Bucureștiului, pe Strada Gheorghe Ţiteica, la 250 de metri distanţă de intersecţia cu Bulevardul Barbu Văcărescu şi 1 km de zona de birouri Barbu Văcărescu.
Clădirea beneficiază de acces auto facil în Bulevardul Barbu Văcărescu, de unde se face legătura cu zonele de birouri din nord, respectiv inelul median Şoseaua Ştefan cel Mare (2 km distanţă). Transportul public este disponibil la 250 de metri distanţă, cu staţie de tramvai la intersecţia cu Bulevardul Barbu Văcărescu.
Țiteica 142 este o clădire de birouri cu o suprafaţă închiriabilă de 3.215 m2, desfașurată pe parter şi 5 etaje.
Parcarea este amplasata pe 2 niveluri subterane, accesul facandu-se cu un lift auto.
Status Cladire finalizata
Dată finalizare 2009
Niveluri 2S+P+4+5R
Suprafață închiriabilă 3,215 m²
Suprafață etaj curent 600 m²
Locuri parcare 36
- Servicii receptie
- Parcare proprie
- Podea Inaltata
- HVAC
- Tavan Suspendat
- Acces Securizat
- Inaltime utila minim 2,7 metri
- Ferestre cu deschidere
- Receptie
- Paza 24/7
- Lift/Lifturi
- Generator de Back-up
- Furnizori multipli Date si Voce
- CCTV / Supraveghere Video
- Detectoare Fum/Foc
- Mocheta
Alte oferte din Floreasca-Dorobanți
Oferte disponibile: 28
Str. Bruxelles 2A , Floreasca-Dorobanți , București
Strada Gheorghe Titeica 184B , Floreasca-Dorobanți , București
Calea Dorobantilor 103-105 , Floreasca-Dorobanți , București
Calea Floreasca 141-143 , Floreasca-Dorobanți , București
Str. Aghires 1B , Floreasca-Dorobanți , București
Bdul. Barbu Vacarescu 42A , Floreasca-Dorobanți , București
Str. Gheorghe Titeica 121C , Floreasca-Dorobanți , București
Str. Johann Strauss 2A , Floreasca-Dorobanți , București
Bdul. Mircea Eliade 18 , Floreasca-Dorobanți , București
Calea Floreasca 60 , Floreasca-Dorobanți , București
Str. Hristache Pitaru 13-15 , Floreasca-Dorobanți , București
Str. Matac 33-35 , Floreasca-Dorobanți , București
Str. Albac 11 , Floreasca-Dorobanți , București
Str. Banu Antonache 51 , Floreasca-Dorobanți , București
Calea Floreasca 240B , Floreasca-Dorobanți , București
Str. Putul lui Zamfir 32-34 , Floreasca-Dorobanți , București
Calea Floreasca 55 , Floreasca-Dorobanți , București
Str. Banu Antonache 40-44 , Floreasca-Dorobanți , București
Calea Floreasca 151 , Floreasca-Dorobanți , București
Intrarea Glucozei 37-39 , Floreasca-Dorobanți , București
Str. Johann Strauss 4B , Floreasca-Dorobanți , București
Str. Gheorghe Titeica 144-146 , Floreasca-Dorobanți , București
Str. Tunari 60 , Floreasca-Dorobanți , București
Str. Tudor Vianu 3 , Floreasca-Dorobanți , București
Calea Floreasca 131-137 , Floreasca-Dorobanți , București
Calea Dorobanti 155 , Floreasca-Dorobanți , București
Putul lui Zamfir 5 , Floreasca-Dorobanți , București
Bdul. Barbu Văcărescu 241A , Floreasca-Dorobanți , București
Ești chiriaș?
Contactează-ne și vei primi consultanță gratuită cu privire la:
- condițiile existente în piață
- renegociere termeni contractuali
- opțiuni de relocare
Ești proprietar?
Contactează-ne dacă vrei să fii prezent în cea mai avansată platformă online dedicată închirierii/vânzării de birouri
Contactează-neVIDEO 360 de grade: puteți schimba unghiul de vizualizare prin click / rotire pe video.
Utilizatorii iPhone: faceți click pe titlul din VIDEO pentru o vizualizare completă în aplicația YouTube.










 
               
               
               
               
               
               
               
               
               
               
               
               
               
               
               
               
              

























