Birouri de inchiriat in vila Roma 54
Birouri de inchiriat intr-o vila interbelica restaurata complet, amplasata in zona Dorobanti - Capitale, sector 1, Bucuresti.
TABEL DETALIAT SUPRAFEȚE DISPONIBILE
| Etaj | Suprafață (m2) | Descriere | Disponibil | |||
| D+P+1+M | 390 | Vila disponibila integral, dispusa pe demisol, parter, etaj 1 si mansarda, spatii compartimentate, bucatarie si grupuri sanitare pe fiecare etaj, curte proprie 160m2 | Imediat | Poze | Plan |
Spatii de birouri in vila istorica Roma 54
Spatii de birouri de inchiriat intr-o vila interbelica construita in 1932 si restaurata complet in 2020, clasificata monument istoric categoria B, situata la limita dintre zona centrala si cea de nord a Bucurestiului, in zona Dorobanti–Capitale, sector 1, Bucuresti.
Cladirea este amplasata la doar 300 m de Calea Dorobanti si Piata Dorobanti, una dintre cele mai prestigioase zone de business si rezidentiale din Bucuresti, oferind acces rapid catre principalele artere din zona de nord a orasului, precum si catre centrul acestuia. In acelasi timp, proprietatea se afla la doar 700 de metri de Guvernul Romaniei si la aproximativ 10 minute de mers pe jos de statia de metrou Piata Victoriei.
Locatia are o accesibilitate excelenta, fiind pozitionata in apropierea Pietei Victoriei - punctul de intersectie a 8 bulevarde majore, inclusiv inelul median de circulatie.
Transportul public este de asemenea excelent reprezentat, incluzand 2 magistrale de metrou, linii de autobuz si tramvai, amplasate la aproximativ 5-10 minute de mers pe jos de cladire.
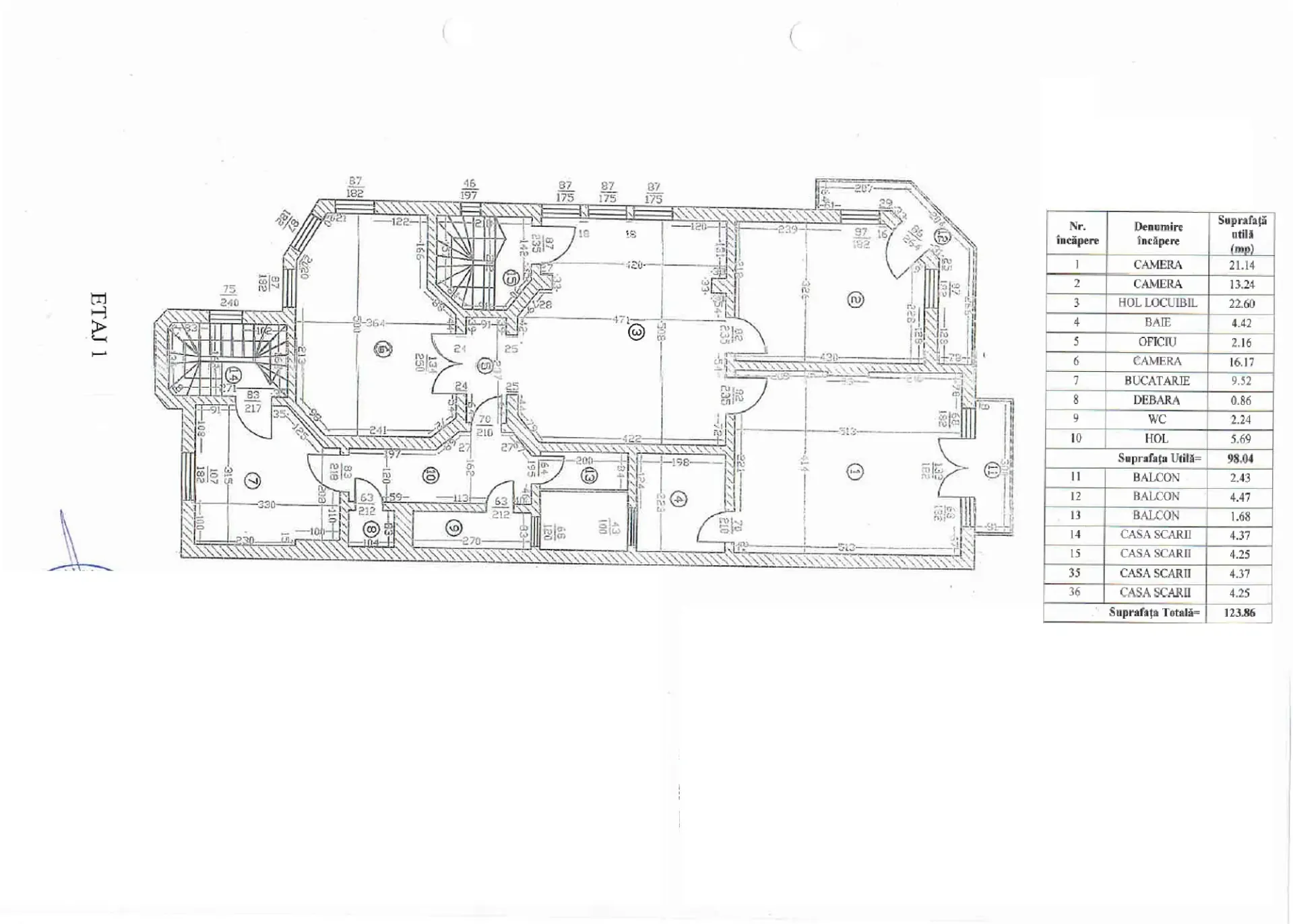
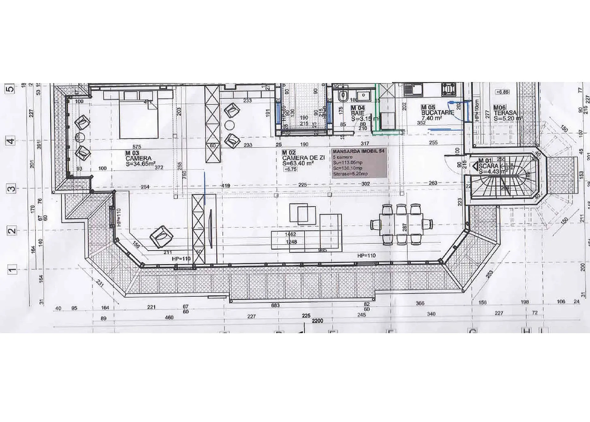
Proprietatea este organizata pe demisol, parter, etaj si mansarda si dispune de o suprafata utila de aproximativ 350 mp si o suprafata construita desfasurata de aproximativ 400 mp, amplasata pe un teren de 306 mp, cu o curte libera de aproximativ 160 mp. Cladirea beneficiaza de o compartimentare eficienta si dispune de 3 cai de acces: acces dedicat pentru parter, acces separat pentru etaj si acces suplimentar din curtea din spate, cu legatura catre toate nivelurile.
Vila ofera facilitati moderne, unitati de aer conditionat, centrala termica proprie, inaltime utila de peste 2.70 m si sistem de supraveghere video (CCTV).
Cladirea nu beneficiaza de locuri de parcare dedicate, insa exista posibilitatea de a parca pe locurile publice disponibile in zona, oferite de primarie.
Status Cladire finalizata
Dată finalizare 1932 (modernizata 2020)
Niveluri D+P+1+M
Suprafață închiriabilă 390 m²
Suprafață etaj curent 123 m²
- Aer Conditionat
- Incalzire Centralizata
- Centrala Termica Individuala
- Inaltime utila minim 2,7 metri
- Ferestre cu deschidere
- CCTV / Supraveghere Video
Alte oferte din Floreasca-Dorobanți
Oferte disponibile: 28
Calea Floreasca 151 , Floreasca-Dorobanți , București
Str. Banu Antonache 40-44 , Floreasca-Dorobanți , București
Str. Bruxelles 2A , Floreasca-Dorobanți , București
Strada Gheorghe Titeica 184B , Floreasca-Dorobanți , București
Calea Dorobantilor 103-105 , Floreasca-Dorobanți , București
Calea Floreasca 141-143 , Floreasca-Dorobanți , București
Str. Aghires 1B , Floreasca-Dorobanți , București
Bdul. Barbu Vacarescu 42A , Floreasca-Dorobanți , București
Str. Johann Strauss 2A , Floreasca-Dorobanți , București
Bdul. Mircea Eliade 18 , Floreasca-Dorobanți , București
Calea Floreasca 60 , Floreasca-Dorobanți , București
Str. Hristache Pitaru 13-15 , Floreasca-Dorobanți , București
Str. Albac 11 , Floreasca-Dorobanți , București
Str. Banu Antonache 51 , Floreasca-Dorobanți , București
Calea Floreasca 240B , Floreasca-Dorobanți , București
Calea Floreasca 55 , Floreasca-Dorobanți , București
Str. Banu Antonache 40-44 , Floreasca-Dorobanți , București
Calea Floreasca 151 , Floreasca-Dorobanți , București
Intrarea Glucozei 37-39 , Floreasca-Dorobanți , București
Str. Gheorghe Titeica 142 , Floreasca-Dorobanți , București
Str. Johann Strauss 4B , Floreasca-Dorobanți , București
Str. Gheorghe Titeica 144-146 , Floreasca-Dorobanți , București
Str. Tunari 60 , Floreasca-Dorobanți , București
Str. Tudor Vianu 3 , Floreasca-Dorobanți , București
Calea Floreasca 131-137 , Floreasca-Dorobanți , București
Calea Dorobanti 155 , Floreasca-Dorobanți , București
Putul lui Zamfir 5 , Floreasca-Dorobanți , București
Bdul. Barbu Văcărescu 241A , Floreasca-Dorobanți , București
Ești chiriaș?
Contactează-ne și vei primi consultanță gratuită cu privire la:
- condițiile existente în piață
- renegociere termeni contractuali
- opțiuni de relocare
Ești proprietar?
Contactează-ne dacă vrei să fii prezent în cea mai avansată platformă online dedicată închirierii/vânzării de birouri
Contactează-ne










































