Birouri de inchiriat in Albac 11
Birouri de inchiriat intr-o cladire boutique amplasata in zona Floreasca - Dorobanti, sector 1, Bucuresti.
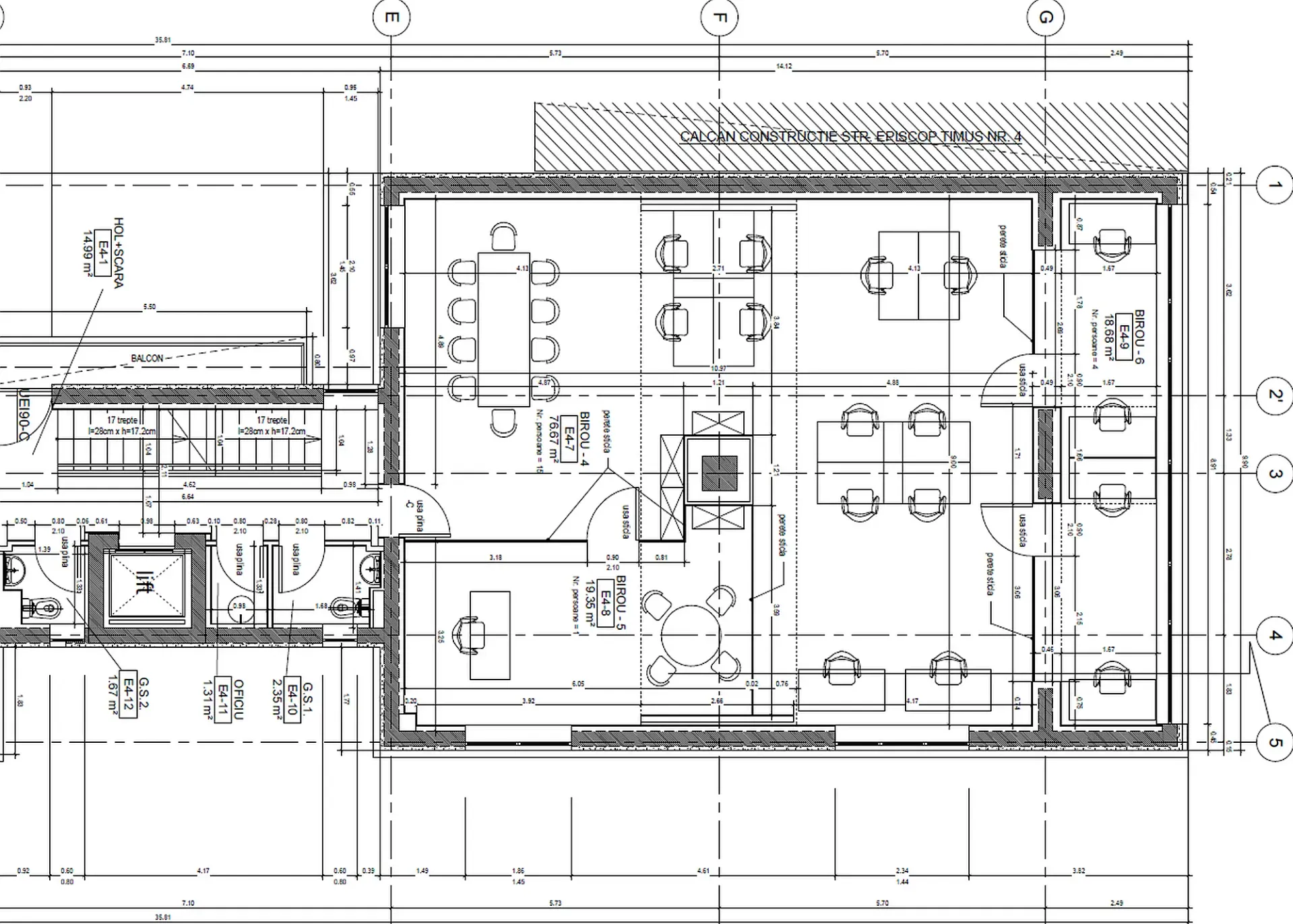
TABEL DETALIAT SUPRAFEȚE DISPONIBILE
| Etaj | Suprafață (m2) | Descriere | Disponibil | |||
| 4 | 132 | open space, meeting room, birou, grup sanitar dedicat, posibilitate amenajare chicineta dedicata; 1 loc de parcare exterior inclus in pret | Imediat | Poze | Plan |
Birouri de inchiriat zona Dorobanti - Floreasca
Cladirea Albac 11 este amplasata in partea de centru-nord a Bucurestiului, zona Dorobanti - Floreasca, pe Strada Albac.
Cladirea este situata intre Calea Floreasca (125 metri) si Calea Dorobantilor (200 metri), respectiv la doar 350 de metri de inelul median Soseaua Stefan cel Mare), in proximitatea Stadionului Dinamo si a unitatilor medicale din zona (Spitalul de Urgenta, Spitalul Euroclinic, Regina Maria).
Accesul cu automobilul in zona se realizeaza pe artere majore (inelul median, Calea Floreasca, Calea Dorobantilor), de unde se ajunge facil la cladire.
Transportul public este foarte bine reprezentat, incluzand statia de metrou Stefan cel Mare, statii de autobuz si tramvai la maxim 5-10 minute de mers de cladire. De asemenea toate mijloacele de transport din Piata Romana (metrou, autobuze, troleibuze) sunt accesibile in 10-12 minute de mers pe jos.
Albac 11 este o cladire moderna de birouri finalizata in 2014, desfasurata pe subsol (parcare), parter si 5 etaje. Cladirea dispune de o suprafata inchiriabila pe etaj de aproximativ 230 m2, impartita in doua spatii de 100-132 m2.
Cladirea beneficiaza de o varietate semnificativa de restaurante, cafenele si servicii in imediata proximitate.
Status Cladire finalizata
Dată finalizare 2014
Niveluri S+P+5
Suprafață închiriabilă 1,200 m²
Suprafață etaj curent 231 m²
Locuri parcare 4-6
- Zona Comerciala
- Parcare proprie
- Ventiloconvectoare
- Ferestre cu deschidere
- Lift/Lifturi
- Detectoare Fum/Foc
- Acces Securizat
- CCTV / Supraveghere Video
Alte oferte din Floreasca-Dorobanți
Oferte disponibile: 28
Calea Floreasca 151 , Floreasca-Dorobanți , București
Str. Banu Antonache 40-44 , Floreasca-Dorobanți , București
Str. Bruxelles 2A , Floreasca-Dorobanți , București
Strada Gheorghe Titeica 184B , Floreasca-Dorobanți , București
Calea Dorobantilor 103-105 , Floreasca-Dorobanți , București
Calea Floreasca 141-143 , Floreasca-Dorobanți , București
Str. Aghires 1B , Floreasca-Dorobanți , București
Bdul. Barbu Vacarescu 42A , Floreasca-Dorobanți , București
Str. Johann Strauss 2A , Floreasca-Dorobanți , București
Bdul. Mircea Eliade 18 , Floreasca-Dorobanți , București
Calea Floreasca 60 , Floreasca-Dorobanți , București
Str. Hristache Pitaru 13-15 , Floreasca-Dorobanți , București
Str. Banu Antonache 51 , Floreasca-Dorobanți , București
Calea Floreasca 240B , Floreasca-Dorobanți , București
Str. Putul lui Zamfir 32-34 , Floreasca-Dorobanți , București
Calea Floreasca 55 , Floreasca-Dorobanți , București
Str. Banu Antonache 40-44 , Floreasca-Dorobanți , București
Calea Floreasca 151 , Floreasca-Dorobanți , București
Intrarea Glucozei 37-39 , Floreasca-Dorobanți , București
Str. Gheorghe Titeica 142 , Floreasca-Dorobanți , București
Str. Johann Strauss 4B , Floreasca-Dorobanți , București
Str. Gheorghe Titeica 144-146 , Floreasca-Dorobanți , București
Str. Tunari 60 , Floreasca-Dorobanți , București
Str. Tudor Vianu 3 , Floreasca-Dorobanți , București
Calea Floreasca 131-137 , Floreasca-Dorobanți , București
Calea Dorobanti 155 , Floreasca-Dorobanți , București
Putul lui Zamfir 5 , Floreasca-Dorobanți , București
Bdul. Barbu Văcărescu 241A , Floreasca-Dorobanți , București
Ești chiriaș?
Contactează-ne și vei primi consultanță gratuită cu privire la:
- condițiile existente în piață
- renegociere termeni contractuali
- opțiuni de relocare
Ești proprietar?
Contactează-ne dacă vrei să fii prezent în cea mai avansată platformă online dedicată închirierii/vânzării de birouri
Contactează-ne
































