Spatii birouri de inchiriat in Opera Center
Spatii birouri de inchiriat intr-o cladire de clasa A amplasata in Piata Operei, la 2 minute de mers de statia de metrou Eroilor, sector 5, Bucuresti.
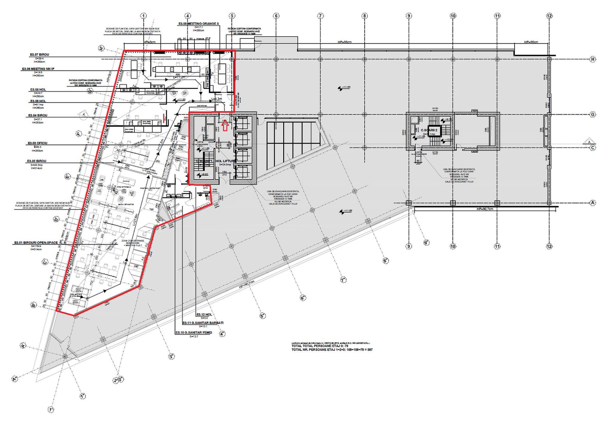
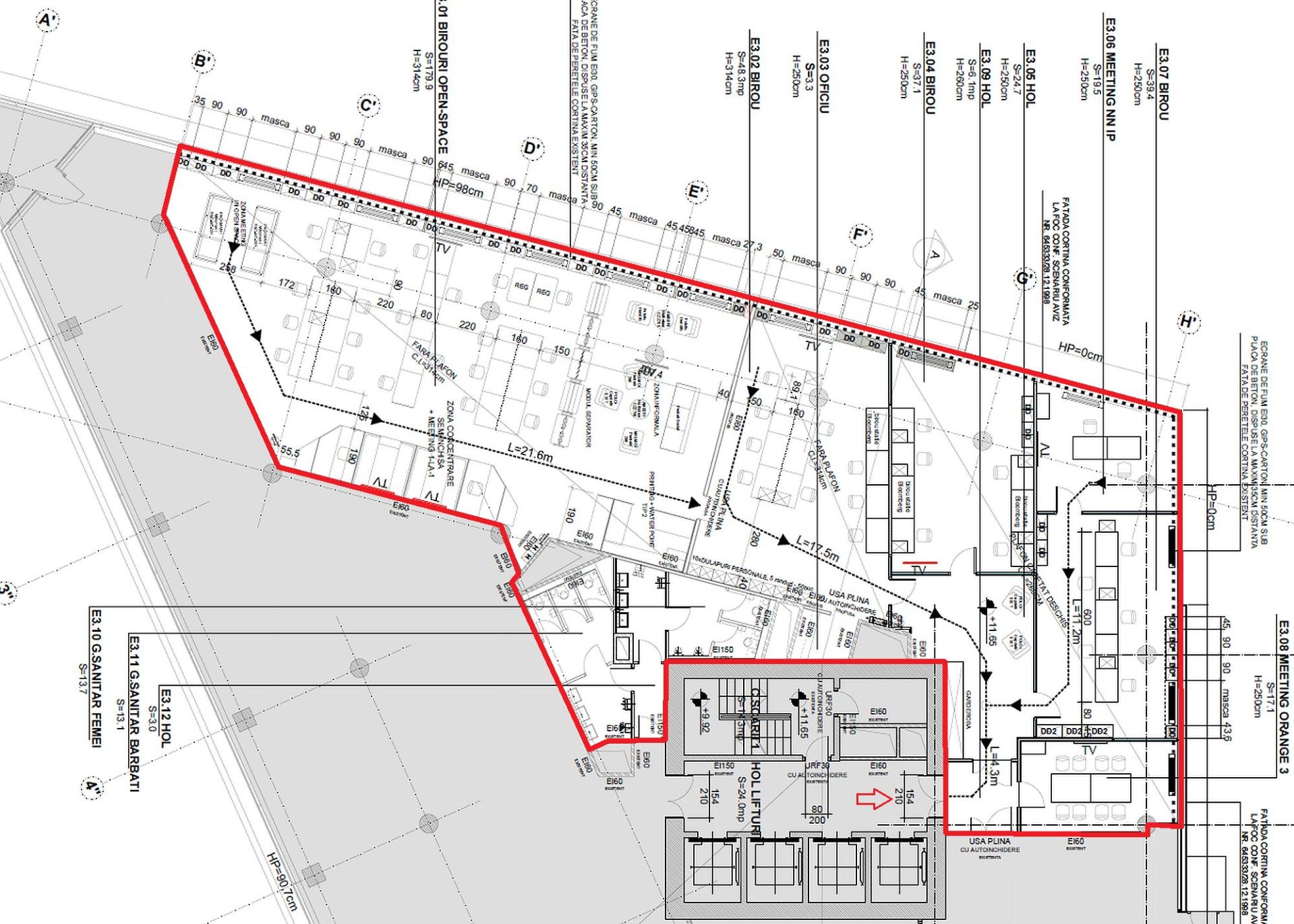
TABEL DETALIAT SUPRAFEȚE DISPONIBILE
| Etaj | Suprafață (m2) | Descriere | Disponibil | |||
| Parter | 412 | spatiu comercial / birouri cu intrari direct din exterior | Aprilie 2026 | |||
| 1 | 1657 | open space / compartimentat | Mai 2026 | Plan | ||
| 3 | 437 | zona open space, birouri, sala de meeting, zona de lounge, chicineta, GS | Mai 2026 | Plan |
Inchiriere spatiu birouri pe strada Nicolae Staicovici 2
Inchiriere spatiu birouri in sector 5, zona centrala Cotroceni, intr-o cladire amplasata in Piata Operei, in aria strazilor Costache Negri, Niculae D. Staicovici si Splaiul Independentei, vis-a-vis de Opera Nationala si Parcul Operei, respectiv 4 minute de Facultatea de Drept.
Vecinatatile cladirii includ: cladiri de birouri, proprietati rezidentiale (cartierul Cotroceni), Opera Nationala, Facultatea de Medicina Carol Davila si Facultatea de Drept, Spitalul Municipal, zone de promenada (Parcul Operei, Parcul Izvor, Parcul Eroilor), restaurante si cafenele etc.
Accesibilitatea auto este excelenta, cladirea fiind amplasata la intersectia unor artere majore precum Splaiul Independentei, Bulevardul Mihail Kogalniceanu si Bulevardul Eroilor, ce faciliteaza legaturi rapide cu toate partile orasului.
Transportul public include 3 magistrale de metrou cu statia Eroilor amplasata la 2 minute de mers de cladire, statii de autobuz si troilebuz in 2-5 minute de mers.
Opera Center include 2 cladiri de birouri finalizate in 2001-2002, avand o suprafata inchiriabila totala de 15,425 m2 (1,600 m2 / nivel). Cladirile sunt desfasurate pe 2 subsoluri, parter si 7 etaje, avand specificatii de clasa A.
Cladirile dispun de locuri de parcare in subsol si acces la parcarea publica din Piata Operei si de-a lungul strazilor cartierului Cotroceni.
Status Cladire finalizata
Dată finalizare 2002
Niveluri 2S+P+7
Suprafață închiriabilă 14,800 m²
Suprafață etaj curent 1,600 m²
Locuri parcare 148
- Servicii receptie
- Parcare proprie
- Parcare biciclete
- Cafenea
- Restaurant
- Punct bancar
- ATM
- Punct Presa
- Punct Medical
- Farmacie
- BMS - Building Management System
- Tavan Suspendat
- Acces Securizat
- Paza 24/7
- Lift/Lifturi
- Generator de Back-up
- CCTV / Supraveghere Video
- Detectoare Fum/Foc
- Sprinkler System
- Mocheta
- LEED
- HVAC
- Receptie
Alte oferte din Eroilor-Cotroceni
Oferte disponibile: 20
Str. Sergent Nutu Ion 44 , Eroilor-Cotroceni , București
Str. Progresului 1 , Eroilor-Cotroceni , București
Str. Zarii 12 , Eroilor-Cotroceni , București
Str. Zarii 12 , Eroilor-Cotroceni , București
Str. Nutu Ion 44 , Eroilor-Cotroceni , București
Str. Nutu Ion 44 , Eroilor-Cotroceni , București
Str. Zarii 9 , Eroilor-Cotroceni , București
Bulevardul Mihail Kogalniceanu nr. 12 , Eroilor-Cotroceni , București
Str. Doctor Carol Davila 34 , Eroilor-Cotroceni , București
Str. Ana Davila 37 , Eroilor-Cotroceni , București
Bdul. Eroii Sanitari 1-3 , Eroilor-Cotroceni , București
Bdul. M. Kogalniceanu 53 , Eroilor-Cotroceni , București
Str. Progresului 1 , Eroilor-Cotroceni , București
Str. Constantin Noica 159 , Eroilor-Cotroceni , București
Str. Costache Negri 2 , Eroilor-Cotroceni , București
Str. Carol Davila 85 , Eroilor-Cotroceni , București
Str. Carol Davila 40 , Eroilor-Cotroceni , București
Str. Elefterie 18 , Eroilor-Cotroceni , București
Izvor 80 , Eroilor-Cotroceni , București
Str. Izvor 92-96 , Eroilor-Cotroceni , București
Ești chiriaș?
Contactează-ne și vei primi consultanță gratuită cu privire la:
- condițiile existente în piață
- renegociere termeni contractuali
- opțiuni de relocare
Ești proprietar?
Contactează-ne dacă vrei să fii prezent în cea mai avansată platformă online dedicată închirierii/vânzării de birouri
Contactează-neVIDEO 360 de grade: puteți schimba unghiul de vizualizare prin click / rotire pe video.
Utilizatorii iPhone: faceți click pe titlul din VIDEO pentru o vizualizare completă în aplicația YouTube.




























