Spații birouri de închiriat în clădirea Forum III
Spații de birouri de închiriat in zona centrală a capitalei in imediata apropiere a Palatului Parlamentului, pe strada Izvor nr 92-96, sector 5
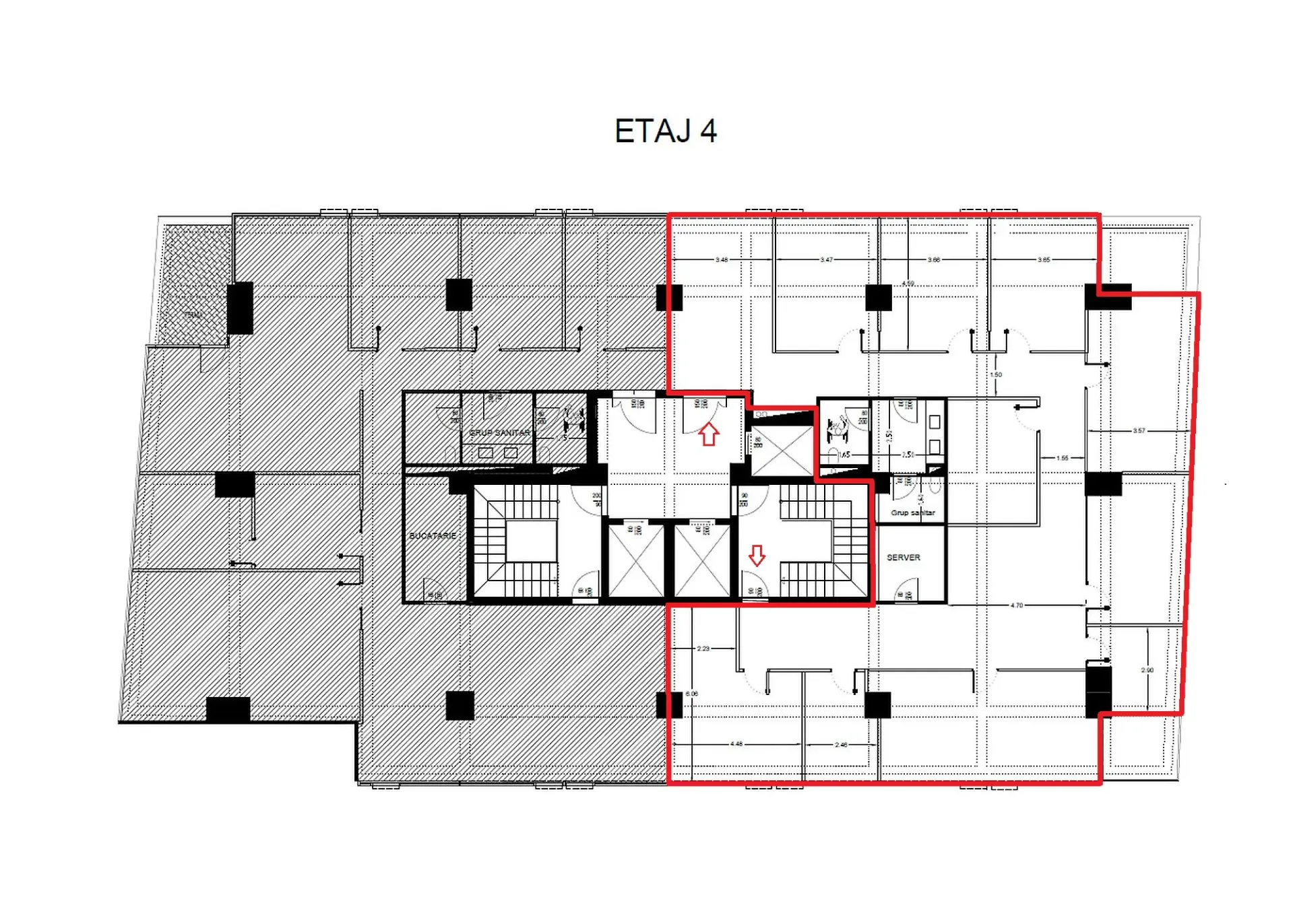
TABEL DETALIAT SUPRAFEȚE DISPONIBILE
| Etaj | Suprafață (m2) | Descriere | Disponibil | |||
| 4 | 312 | 9 birouri, sala de sedinte, bucatarie, server room; 3 locuri de parcare disponibile | 01.11.2026 | Plan |
Birouri clasa A de închiriat vis a vis de Parlament
Inchiriere spatiu birouri in sector 5, zona centrala Cotroceni, intr-o cladire de birouri amplasata pe strada Izvor, in aria Strazii Niculae Staicovici si a Bulevardului Natiunilor Unite.
Cladirea se afla in spatele Palatului Parlamentului, la 550 metri de Hotel JW Marriott si la 850 metri de Piata Operei.
Vecinatatile cladirii includ cladiri de birouri si proprietati rezidentiale, zone de promenada (Parcul izvor, Parcul Eroilor), Opera Nationala Bucuresti, restaurante si cafenele.
Accesibilitatea auto este excelenta, cladirea fiind amplasata in proximitatea Bulevardului Natiunilor Unite, Caii 13 Septembrie si a Splaiului Independentei, artere ce faciliteaza legaturi cu vestul, sudul si centrul orasului.
Transportul public include linii de autobuz in fata cladirii, precum si statiile de metrou Izvor si Eroilor, ambele fiind la 12 minute distanta de mers.
Forum 3 este o cladire de birouri finalizata in 2006, avand o suprafata inchiriabila totala de 5.000 m2 (624 m² / nivel). Cladirea este desfasurata pe subsol, parter si 8 etaje, avand specificatii precum HVAC, tavan suspendat, detectoare fum/foc, generator de back-up, lifturi, supraveghere video si receptive.
Cladirea dispune de 58 locuri de parcare.
Status Cladire finalizata
Dată finalizare 2006
Niveluri S+P+8
Suprafață închiriabilă 5,000 m²
Suprafață etaj curent 624 m²
Locuri parcare 58
- Parcare proprie
- HVAC
- Tavan Suspendat
- Ferestre cu deschidere
- Receptie
- Lift/Lifturi
- Generator de Back-up
- CCTV / Supraveghere Video
- Detectoare Fum/Foc
Alte oferte din Eroilor-Cotroceni
Oferte disponibile: 20
Str. Sergent Nutu Ion 44 , Eroilor-Cotroceni , București
Str. Progresului 1 , Eroilor-Cotroceni , București
Str. Zarii 12 , Eroilor-Cotroceni , București
Str. Zarii 12 , Eroilor-Cotroceni , București
Str. Nutu Ion 44 , Eroilor-Cotroceni , București
Str. Nutu Ion 44 , Eroilor-Cotroceni , București
Str. Zarii 9 , Eroilor-Cotroceni , București
Bulevardul Mihail Kogalniceanu nr. 12 , Eroilor-Cotroceni , București
Str. Doctor Carol Davila 34 , Eroilor-Cotroceni , București
Str. Ana Davila 37 , Eroilor-Cotroceni , București
Bdul. Eroii Sanitari 1-3 , Eroilor-Cotroceni , București
Bdul. M. Kogalniceanu 53 , Eroilor-Cotroceni , București
Str. Progresului 1 , Eroilor-Cotroceni , București
Str. Constantin Noica 159 , Eroilor-Cotroceni , București
Str. Costache Negri 2 , Eroilor-Cotroceni , București
Str. Carol Davila 85 , Eroilor-Cotroceni , București
Str. Carol Davila 40 , Eroilor-Cotroceni , București
Str. Elefterie 18 , Eroilor-Cotroceni , București
Izvor 80 , Eroilor-Cotroceni , București
Dr. N.Staicovici 2 , Eroilor-Cotroceni , București
Ești chiriaș?
Contactează-ne și vei primi consultanță gratuită cu privire la:
- condițiile existente în piață
- renegociere termeni contractuali
- opțiuni de relocare
Ești proprietar?
Contactează-ne dacă vrei să fii prezent în cea mai avansată platformă online dedicată închirierii/vânzării de birouri
Contactează-neVIDEO 360 de grade: puteți schimba unghiul de vizualizare prin click / rotire pe video.
Utilizatorii iPhone: faceți click pe titlul din VIDEO pentru o vizualizare completă în aplicația YouTube.


























