Birouri de inchiriat in Casa Cesianu – Dacia One
Birouri de inchiriat intr-o casa monument istoric de exceptie, amplasata ultracental la intersectia Calea Victoriei cu Bulevardul Dacia, sector 1, Bucuresti.
Inchiriere birouri in Calea Victoriei 176
Inchiriere birouri in zona ultracentrala a sectorului 1, intr-un amplasament de colt cu vizibilitate excelenta, la intersectia dintre Calea Victoriei si Bulevardul Dacia.
Cladirea este situata la 10 minute de mers de Piata Victoriei, 5 minute de Piata Romana si 10 minute de Ateneul Roman.
Zona are un caracter premium, incluzand in imediata proximitate cladiri de birouri si institutii, hoteluri, muzee, scoli, restaurante si cafenele desfasurate de-a lungul Caii Victoriei si a celorlalte strazi secundare, Parcul Nicolae Iorga si I.C. Bratianu etc.
Accesul cu automobilul beneficiaza de proximitatea cu bulevardele majore ale zonei ultracentrale care asigura conexiuni catre toate zonele orasului.
Transportul public include statie de autobuz in fata cladirii si acces pietonal in 5-10 minute la hub-urile de metrou si transport de suprafata de la Piata Romana si Piata Victoriei.
Casa Cesianu este o cladire monument istoric emblematica, devenita piesa centrala a Dacia One, proiectul de clasa A finalizat in 2021. Intregul proiect are o suprafata inchiriabila de 16.300 m2 si include Casa Cesianu si o cladire noua de birouri.
Casa Cesianu a fost construita in 1893 si beneficiaza de o arhitectura de exceptie de secol XIX, decorațiuni interioare speciale, picturi murale pe tavan, uși și coloane împodobite cu stucaturi, elemente din lemn sculptat pentru ferestre, panouri pereti și rame pentru oglinzi.
Cladirea a fost complet renovata si adusa la standardele actuale prin pastrarea caracterului istoric, avand o imbinare de finisaje premium clasice (piatra naturala, parchet de stejar) si moderne (sistem BMS, podea flotanta, climatizare HVAC, senzori detectie fum/foc, iluminat LED etc.).
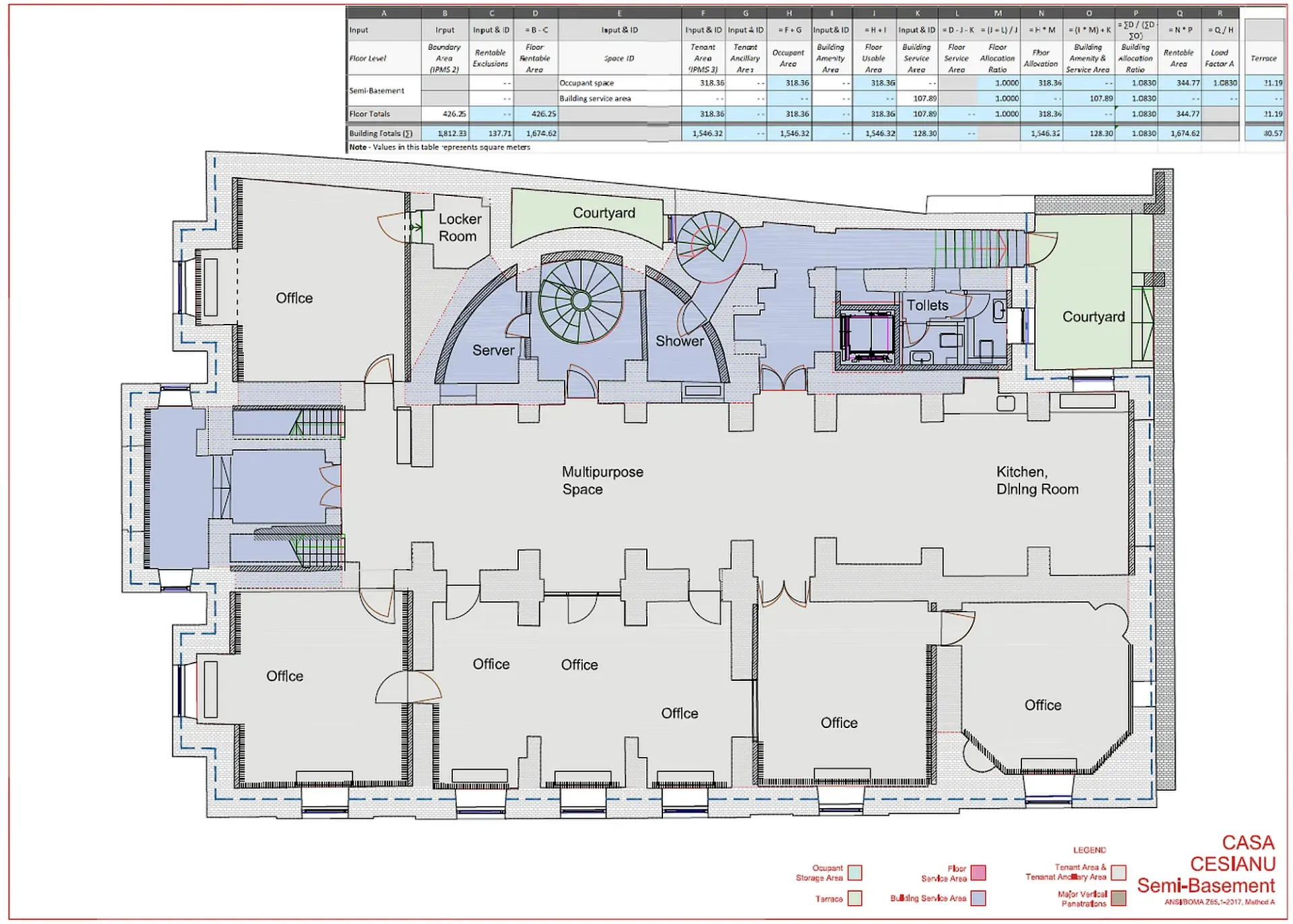
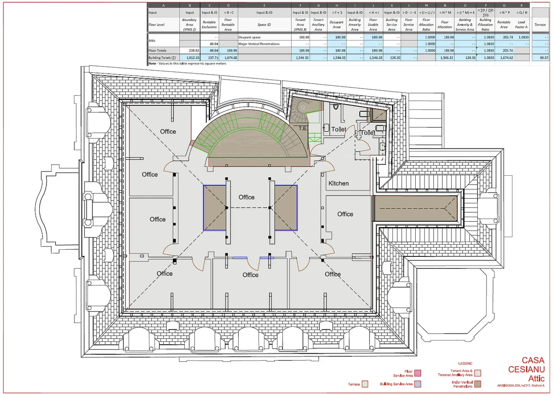
Casa Cesianu are o suprafata inchiriabila de 1.675 m2, desfasurata pe demisol, parter, 2 etaje si mansarda. Etajele au suprafete cuprinse intre 205 – 434 m2 si inaltimi generoase de 3,2-4,7 metri.
Cladirea dispunde de 20 de locuri de parcare, amplasate in subteran.
Status Cladire finalizata
Dată finalizare 2021
Niveluri D+P+2+M
Suprafață închiriabilă 1,675 m²
Suprafață etaj curent 380 m²
Locuri parcare 20
- Parcare proprie
- BREEAM
- BMS - Building Management System
- HVAC
- Podea Inaltata
- Acces Securizat
- Inaltime utila minim 2,7 metri
- Ferestre cu deschidere
- Receptie
- Paza 24/7
- Lift/Lifturi
- Generator de Back-up
- Furnizori multipli Date si Voce
- CCTV / Supraveghere Video
- Detectoare Fum/Foc
Alte oferte din Romană
Oferte disponibile: 30
Calea Dorobanti 32 , Romană , București
Calea Victoriei 118 , Romană , București
Str. Ernest Brosteanu 31 , Romană , București
Str. Povernei 1-3 , Romană , București
Str. General Budisteanu 28C , Romană , București
Str. Polona 45 , Romană , București
Calea Dorobantilor 32 , Romană , București
Calea Victoriei 109 , Romană , București
Str. Ernest Brosteanu 31 , Romană , București
Str. Polona 43 , Romană , București
Str. Mendeleev 5 , Romană , București
Str. Caderea Bastiliei 64 , Romană , București
Str. I.C. Visarion 12 , Romană , București
Str. Povernei 15-17 , Romană , București
Str. Polona 45 , Romană , București
Str. Pitar Mos 6 , Romană , București
Str.Stirbei Voda 36 , Romană , București
Bdul. Dacia 30 , Romană , București
Str. Vasile Alecsandri 8 , Romană , București
Str. Sfintii Voievozi 65 , Romană , București
Bd. Dacia 20 , Romană , București
Polona 68 , Romană , București
Bd. Magheru 1-3 , Romană , București
Str. Stirbei Voda 26-28 , Romană , București
George Enescu 11-11 A , Romană , București
Str. Dionisie Lupu 70-72 , Romană , București
Calea Dorobanți 33A , Romană , București
Str. Polona 95-99 , Romană , București
Str. C.A.Rosetti 17 , Romană , București
Str. Dionisie Lupu 64 , Romană , București
Ești chiriaș?
Contactează-ne și vei primi consultanță gratuită cu privire la:
- condițiile existente în piață
- renegociere termeni contractuali
- opțiuni de relocare
Ești proprietar?
Contactează-ne dacă vrei să fii prezent în cea mai avansată platformă online dedicată închirierii/vânzării de birouri
Contactează-ne


















































