Spatii birouri de inchiriat in Bucharest Business Park
Spatii birouri de inchiriat intr-o cladire de clasa A amplasata in zona Piata Presei Libere, sector 1, Bucuresti.
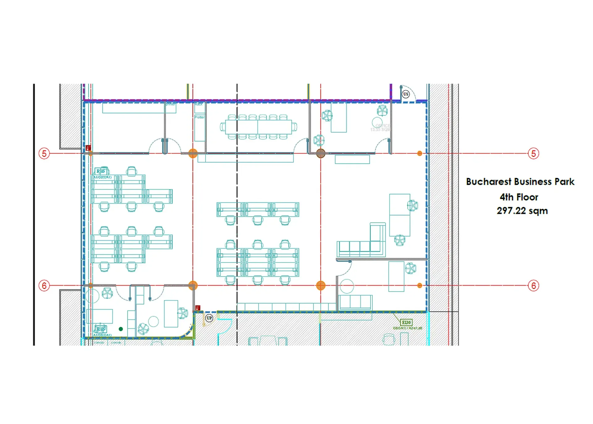
TABEL DETALIAT SUPRAFEȚE DISPONIBILE
| Etaj | Suprafață (m2) | Descriere | Disponibil | |||
| 2 | 341 | Cladirea A; open space, birou individual | Imediat | Poze | Plan | |
| 3 | 141 | Cladirea D: open space | Imediat | Plan | ||
| 3 | 327 | Cladirea D: open space | Imediat | Plan | ||
| 4 | 297 | Cladirea A: spatiu amenajat si mobilat; layout: open space, 4 birouri, bucatarie; chirie 18 €/m2/luna | Imediat | Poze | Plan | |
| 4 | 300 | Cladirea D; open space / compartimentat | Imediat |
Inchiriere spatiu birouri pe Soseaua Bucuresti-Ploiesti 1A
Inchiriere spatiu birouri in sector 1, zona de nord Piata Presei Libere, intr-o cladire de clasa A, situata in aria Bulevardului Poligrafiei, strada Tipografilor si Soseaua Bucuresti-Ploiesti.
Cladirea este amplasata la 100 metri de Casa Presei, 200 metri de Parcul Herastrau, 650 metri de Romexpo si 2 km de Arcul de Triumf.
Vecinatatile cladirii include cladiri de birouri si proprietati rezidentiale, zone de promenada (Parcul Herastrau), Casa Presei, Romexpo, restaurante si cafenele.
Accesibilitatea auto este excelenta, cladirea fiind amplasata in apropiere de Soseaua Bucuresti-Ploiesti, artera cu 4 benzi de mers pe sens, ce faciliteaza legaturi rapide cu centrul si nordul orasului.
Transportul public include linii de autobuz și linii express la 6 minute de mers de cladire, respectiv linia de tramvai (41) la 14 minute de mers.
Bucharest Business Park include un ansamblu de cladiri de birouri de clasa A finalizate in 2005, avand o suprafata inchiriabila totala de 25.392 m2 (3.830 m² / nivel). Cladirile sunt desfasurate pe parter si 5 etaje, avand specificatii precum HVAC, tavan suspendat, detectoare fum/foc, generator de back-up, lift si mocheta.
Cladirile dispun de locuri de parcare in subteran si in curtea cladirii.
Status Cladire finalizata
Dată finalizare 2005
Niveluri P+5
Suprafață închiriabilă 25,392 m²
Suprafață etaj curent 3,830 m²
Locuri parcare 350
- Cantina
- Punct Medical
- BMS - Building Management System
- HVAC
- Tavan Suspendat
- Lift/Lifturi
- Generator de Back-up
- CCTV / Supraveghere Video
- Detectoare Fum/Foc
- Mocheta
- Podea Inaltata
Alte oferte din Presei Libere-Expozitiei
Oferte disponibile: 17
Str. Aviator Popisteanu 54A , Presei Libere-Expozitiei , București
Bdul. Expozitiei 1C , Presei Libere-Expozitiei , București
Bdul. Expozitiei 2 , Presei Libere-Expozitiei , București
Piata Presei Libere 3-5 , Presei Libere-Expozitiei , București
Str. Tipografilor 11-15 , Presei Libere-Expozitiei , București
Str. Aviator Popisteanu 54A , Presei Libere-Expozitiei , București
Bulevardul Poligrafiei 1C , Presei Libere-Expozitiei , București
Bdul. Poligrafiei 75 , Presei Libere-Expozitiei , București
Str. Menuetului 2 , Presei Libere-Expozitiei , București
Bdul. Expozitiei, Nr. 1C , Presei Libere-Expozitiei , București
Piata Montreal 10 , Presei Libere-Expozitiei , București
Bdul. Poligrafiei 1A , Presei Libere-Expozitiei , București
Str. Av. Popisteanu 16 , Presei Libere-Expozitiei , București
Bdul. Expozitiei 101 , Presei Libere-Expozitiei , București
Str. Aviator Popisteanu 54A , Presei Libere-Expozitiei , București
Piata Presei Libere 3-5 , Presei Libere-Expozitiei , București
Str. Tipografilor 11-15 , Presei Libere-Expozitiei , București
Ești chiriaș?
Contactează-ne și vei primi consultanță gratuită cu privire la:
- condițiile existente în piață
- renegociere termeni contractuali
- opțiuni de relocare
Ești proprietar?
Contactează-ne dacă vrei să fii prezent în cea mai avansată platformă online dedicată închirierii/vânzării de birouri
Contactează-neVIDEO 360 de grade: puteți schimba unghiul de vizualizare prin click / rotire pe video.
Utilizatorii iPhone: faceți click pe titlul din VIDEO pentru o vizualizare completă în aplicația YouTube.





































