Spatii de birouri de inchiriat in S-Park
Spatii birouri de inchiriat intr-un parc de afaceri amplasat in zona Piata Presei Libere, zona de Nord, Bucuresti
TABEL DETALIAT SUPRAFEȚE DISPONIBILE
| Etaj | Suprafață (m2) | Descriere | Disponibil | |||
| Parter | 320 | Cladire A1, spatiu comercial / birouri | Imediat | |||
| Parter | 718 | 2 zone open space, 10 birouri, chicineta | Imediat | Plan | ||
| 3 | 451 | open space; terasa 5m2 | Imediat | Poze | Plan | |
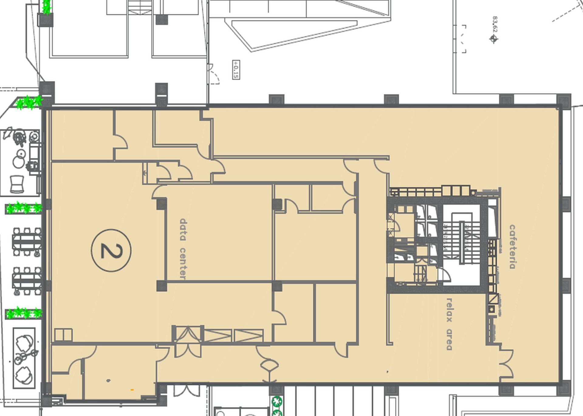
| 2 | 1094 | open space / compartimentat; posibilitate impartire in 179m2, 204 m2 si 712 m2 (plan) | Imediat | Poze | Plan |
Birouri de închiriat în apropierea Casei Presei Libere
S-Park este un parc de afaceri cu o suprafață închiriabilă de 34.200 m2, alcătuit din 4 clădiri interconectate. Clădirile au fost finalizate în anul 2007, includ 2 niveluri subterane, parter și 5 etaje, având o suprafață închiriabilă pe nivel de 6.400 m2.
Parcul este situat pe Șoseaua București-Ploiești (DN1), în imediata apropiere a Casei Presei Libere și a Centrului Expozițional Romexpo. Piața Presei Libere s-a dezvoltat ca unul dintre principalele poluri de birouri ale nordului Capitalei, incluzând clădiri reprezentative precum S-Park, Bucharest Business Park, City Gate și World Trade Center.
Parcul beneficiază de o accesibilitate auto excelentă către Piata Victoriei, aeroportul internațional Henri Coandă și alte obiective din zona de nord. Transportul public include linii de autobuz care conectează locația de principalele destinații din nord și zona centrală.
Clădirile au dotări de clasa A, incluzând BMS, HVAC, podea înălțată și tavan suspendat, mocheta, acces securizat etc. Parcarea are o capacitate de 427 locuri și este situată pe 2 niveluri în subteran.
S-Park este considerat unul dintre cele mai bune parcuri de afaceri existente în București, atât din punct de vedere al locației, accesibilității și standardelor spațiilor. Retragerea de la drumul principal asigură liniște și condiții de relaxare pentru angajații companiilor localizate aici.
Status Cladire finalizata
Dată finalizare 2007
Niveluri 2S+P+5
Suprafață închiriabilă 34,200 m²
Suprafață etaj curent 6,400 m²
Locuri parcare 427
- Cantina
- Servicii receptie
- Parcare proprie
- Parcare biciclete
- Cafenea
- Punct bancar
- ATM
- Punct Presa
- Farmacie
- Salon de infrumusetare
- BMS - Building Management System
- HVAC
- Podea Inaltata
- Tavan Suspendat
- Acces Securizat
- Inaltime utila minim 2,7 metri
- Paza 24/7
- Lift/Lifturi
- Generator de Back-up
- Furnizori multipli Date si Voce
- CCTV / Supraveghere Video
- Detectoare Fum/Foc
- Mocheta
Alte oferte din Presei Libere-Expozitiei
Oferte disponibile: 16
Bdul. Expozitiei 1C , Presei Libere-Expozitiei , București
Bdul. Expozitiei 2 , Presei Libere-Expozitiei , București
Piata Presei Libere 3-5 , Presei Libere-Expozitiei , București
Str. Tipografilor 11-15 , Presei Libere-Expozitiei , București
Str. Aviator Popisteanu 54A , Presei Libere-Expozitiei , București
Bulevardul Poligrafiei 1C , Presei Libere-Expozitiei , București
Bdul. Poligrafiei 75 , Presei Libere-Expozitiei , București
Str. Menuetului 2 , Presei Libere-Expozitiei , București
Bdul. Expozitiei, Nr. 1C , Presei Libere-Expozitiei , București
Piata Montreal 10 , Presei Libere-Expozitiei , București
Bdul. Poligrafiei 1A , Presei Libere-Expozitiei , București
Str. Av. Popisteanu 16 , Presei Libere-Expozitiei , București
Bdul. Expozitiei 101 , Presei Libere-Expozitiei , București
Str. Aviator Popisteanu 54A , Presei Libere-Expozitiei , București
Piata Presei Libere 3-5 , Presei Libere-Expozitiei , București
Sos. Bucuresti-Ploiesti 1A , Presei Libere-Expozitiei , București
Ești chiriaș?
Contactează-ne și vei primi consultanță gratuită cu privire la:
- condițiile existente în piață
- renegociere termeni contractuali
- opțiuni de relocare
Ești proprietar?
Contactează-ne dacă vrei să fii prezent în cea mai avansată platformă online dedicată închirierii/vânzării de birouri
Contactează-neVIDEO 360 de grade: puteți schimba unghiul de vizualizare prin click / rotire pe video.
Utilizatorii iPhone: faceți click pe titlul din VIDEO pentru o vizualizare completă în aplicația YouTube.





































