Spații Birouri De Închiriat În IPA
Spații Birouri De Închiriat intr-o cladire de birouri modernizata, situata in zona Metrou Aurel Vlaicu, pe Calea Floreasca 169, sector 1 Bucuresti
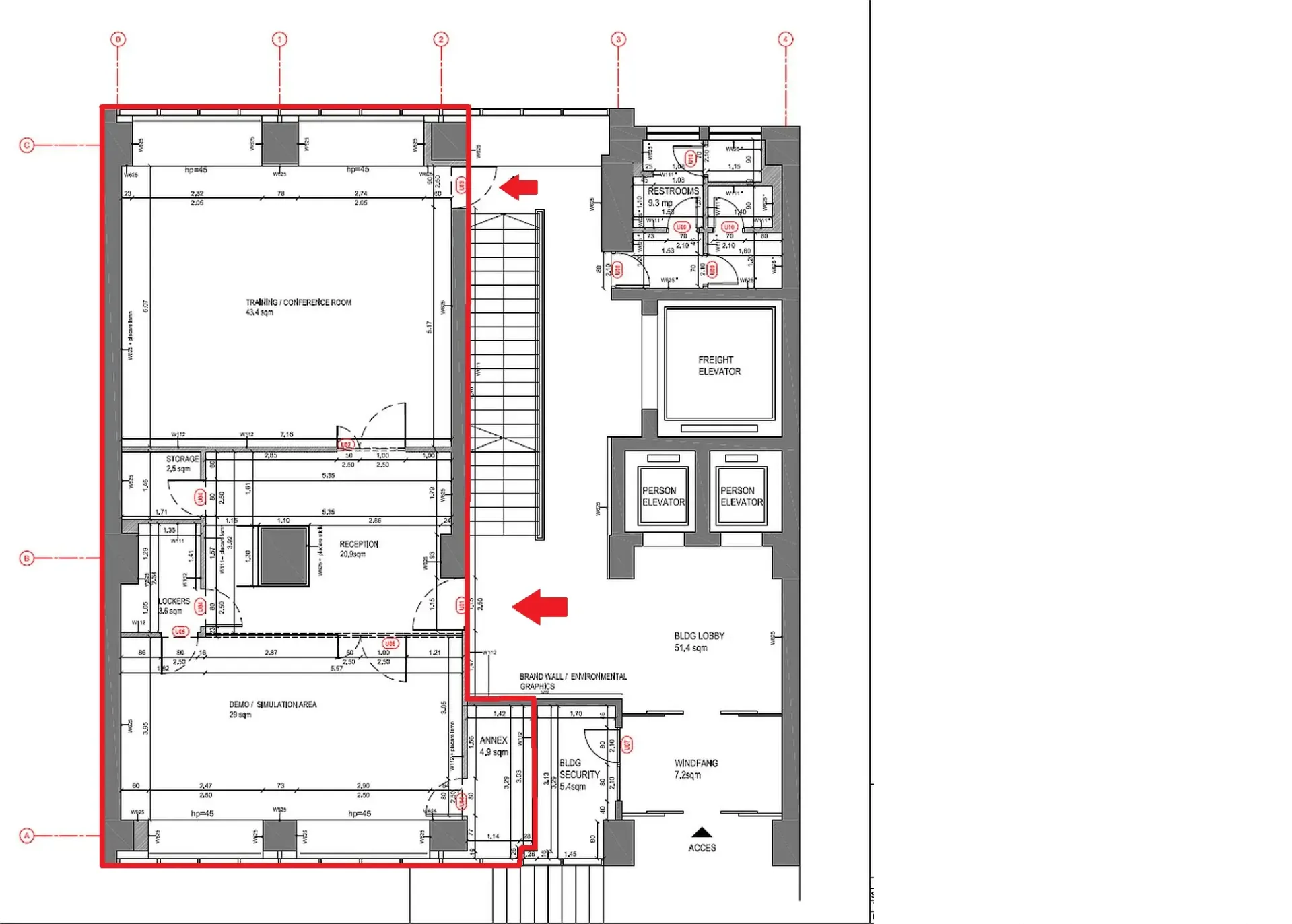
TABEL DETALIAT SUPRAFEȚE DISPONIBILE
| Etaj | Suprafață (m2) | Descriere | Disponibil | |||
| Parter | 125 | receptie, open space, birou, 2 spatii depozitare, GS propriu; chirie 20€/m2/luna | Imediat | Poze | Plan | |
| 1 | 112 | open space, birou, chicineta | 01.05.2026 | |||
| 5 | 196 | open space, birou de sticla | Imediat | Plan |
Birouri de închiriat Calea Floreasca 169
Birouri de închiriat in Bucuresti, sector 1 in Cladirea IPA. Aceasta este amplasata in zona de nord a Bucurestiului, in cartierul de birouri Barbu Vacarescu, dezvoltat in ultimii ani in jurul stației de metrou Aurel Vlaicu (250 metri).
Cartierul Barbu Vacarescu a devenit in ultimii ani cea mai efervescenta locatie imobiliara din Romania, dezvoltandu-se drept noul cartier de afaceri al Bucureștiului.
Cladirea este situata pe Calea Floreasca, vis-à-vis de Promenada Mall, la 150 de metri de intersecția cu Bulevardul Barbu Vacarescu și Șoseaua Pipera.
Locația beneficiaza de o accesibilitate foarte buna cu automobilul, avand legaturi directe cu Piața Charles de Gaulle (2.5 km) - Piața Victoriei (4 km) și Aeroportul Internațional Henri Coanda. Accesul se face direct din Calea Floreasca, artera cu 2 benzi de circulatie pe sens, care face legatura cu zona centrala a capitalei.
Transportul public include stația de metrou Aurel Vlaicu la 3 minute de mers de cladire, respectiv autobuze și tramvai cu statii amplasate la 1-5 minute de mers pe jos.
IPA este o cladire de birouri modernizata, desfasurata pe subsol, parter si 6 etaje, avand o suprafata totala inchiriabila de 8.700 m2. Cladirea are o suprafata a etajului curent de 1.100 m2 si beneficiaza de 80 de locuri de parcare exterioare.
Status Cladire finalizata
Niveluri S+P+6
Suprafață închiriabilă 8,700 m²
Suprafață etaj curent 1,100 m²
Locuri parcare 80
- Zona Comerciala
- Parcare proprie
- Cafenea
- Cantina
- Restaurant
- Punct bancar
- ATM
- Punct Presa
- Farmacie
- Punct Medical
- Agentie de Turism
- Salon de infrumusetare
- Sala de Fitness
- Aer Conditionat
- Incalzire Centralizata
- Tavan Suspendat
- Acces Securizat
- Inaltime utila minim 2,7 metri
- Ferestre cu deschidere
- Lift/Lifturi
- Furnizori multipli Date si Voce
- CCTV / Supraveghere Video
- Detectoare Fum/Foc
Alte oferte din Metrou Aurel Vlaicu
Oferte disponibile: 26
Sos. Pipera 61 , Metrou Aurel Vlaicu , București
Str. Gara Herastrau 4 , Metrou Aurel Vlaicu , București
Calea Floreasca 246B , Metrou Aurel Vlaicu , București
Sos. Pipera 46B , Metrou Aurel Vlaicu , București
Bdul. Barbu Vacarescu 301-311 , Metrou Aurel Vlaicu , București
Str. Gara Herastrau 2 , Metrou Aurel Vlaicu , București
Calea Floreasca 175 , Metrou Aurel Vlaicu , București
Str. Siriului 22-26 , Metrou Aurel Vlaicu , București
Str. Telescopului 29-31 , Metrou Aurel Vlaicu , București
Str. Gara Herastrau , Metrou Aurel Vlaicu , București
Str. Gara Herastrau 2 , Metrou Aurel Vlaicu , București
Str. Siriului 42-46 , Metrou Aurel Vlaicu , București
Bdul. Barbu Vacarescu 313-315 , Metrou Aurel Vlaicu , București
Str. Siriului 6-8 , Metrou Aurel Vlaicu , București
Șos. Pipera 4 , Metrou Aurel Vlaicu , București
Str. Gara Herastrau 2 , Metrou Aurel Vlaicu , București
Sos. Pipera 46 , Metrou Aurel Vlaicu , București
Gara Herastrau 2-4 , Metrou Aurel Vlaicu , București
Sos. Pipera 43 , Metrou Aurel Vlaicu , București
Gara Herastrau 4 , Metrou Aurel Vlaicu , București
Sos. Pipera 42 , Metrou Aurel Vlaicu , București
Barbu Vacarescu 201 , Metrou Aurel Vlaicu , București
Str. Gara Herastrau 4 , Metrou Aurel Vlaicu , București
Calea Floreasca 169 A , Metrou Aurel Vlaicu , București
Barbu Vacarescu 301-311 , Metrou Aurel Vlaicu , București
Calea Floreasca 246B , Metrou Aurel Vlaicu , București
Ești chiriaș?
Contactează-ne și vei primi consultanță gratuită cu privire la:
- condițiile existente în piață
- renegociere termeni contractuali
- opțiuni de relocare
Ești proprietar?
Contactează-ne dacă vrei să fii prezent în cea mai avansată platformă online dedicată închirierii/vânzării de birouri
Contactează-ne

































