Spații Birouri De Închiriat În AFI Park Floreasca
Spații Birouri De Închiriat intr-o cladire moderna de clasa A, cu certificare verde LEED, situata in zona Aurel Vlaicu, pe Calea Floreasca 169 A, sector 1, Bucuresti
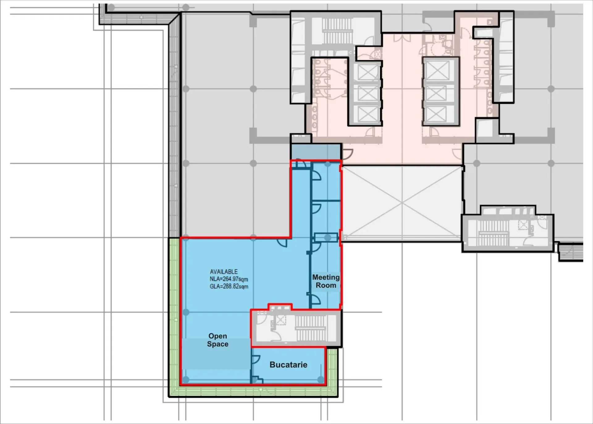
TABEL DETALIAT SUPRAFEȚE DISPONIBILE
| Etaj | Suprafață (m2) | Descriere | Disponibil | |||
| 3 | 391 | zona open space, 5 birouri, sala de sedinte, bucatarie | Imediat | Plan | ||
| 8 | 288 | open space, 2 birouri, meeting room, bucatarie, depozitare, terasa perimetrala | 01.07.2026 | Plan |
Birouri de închiriat Calea Floreasca 169 A
Birouri de închiriat in Bucuresti, sector 1, in cladirea AFI Park Floreasca. Aceasta este amplasata in nordul capitalei, la intersecția Bulevardului Barbu Văcărescu cu Calea Floreasca și Șoseaua Pipera, langa statia de metrou Aurel Vlaicu si vis-a-vis de Promenada Mall.
AFI Park Floreasca este una dintre cele mai reprezentative cladiri de birouri din noul centru de afaceri al Bucurestiului, dezvoltat în ultimii ani în jurul stației de metrou Aurel Vlaicu.
Locația beneficiază de o accesibilitate foarte bună cu automobilul, având legături directe cu zona centrala prin intermediul Caii Floreasca (2,8 km distanta), Piața Charles de Gaulle (2.5 km) - Piața Victoriei (4 km) și Aeroportul Internațional Henri Coandă etc.
Transportul public include statia de metrou Aurel Vlaicu in imediata proximitate a cladirii (150 metri), respectiv statii de autobuz și tramvai în vecinatate.
AFI Park Floreasca este o cladire de clasa A livrata in anul 2009, desfasurata pe 3 niveluri subterane (parcare), parter si 9 etaje. Cladirea are o suprafata inchiriabila totala de 36.000 m2, oferind posibilitatea de a inchiria pana la 2.000 m2 pe etaj.
Amplasamentul beneficiaza de functiuni variate de comert si servicii in zona, concentrate in special in centrul comercial Promenada Mall.
Status Cladire finalizata
Dată finalizare 2009
Niveluri 3S+P+8
Suprafață închiriabilă 36,000 m²
Suprafață etaj curent 2,000 m²
Locuri parcare 763
- Zona Comerciala
- Servicii receptie
- Parcare proprie
- Parcare biciclete
- Cafenea
- Cantina
- Restaurant
- Punct bancar
- ATM
- Punct Presa
- Farmacie
- Punct Medical
- Agentie de Turism
- Salon de infrumusetare
- Sala de Fitness
- BMS - Building Management System
- HVAC
- Podea Inaltata
- Tavan Suspendat
- Acces Securizat
- Paza 24/7
- Lift/Lifturi
- Generator de Back-up
- CCTV / Supraveghere Video
- Detectoare Fum/Foc
- Mocheta
- LEED
Alte oferte din Metrou Aurel Vlaicu
Oferte disponibile: 26
Sos. Pipera 61 , Metrou Aurel Vlaicu , București
Str. Gara Herastrau 4 , Metrou Aurel Vlaicu , București
Calea Floreasca 246B , Metrou Aurel Vlaicu , București
Sos. Pipera 46B , Metrou Aurel Vlaicu , București
Bdul. Barbu Vacarescu 301-311 , Metrou Aurel Vlaicu , București
Str. Gara Herastrau 2 , Metrou Aurel Vlaicu , București
Calea Floreasca 175 , Metrou Aurel Vlaicu , București
Str. Siriului 22-26 , Metrou Aurel Vlaicu , București
Str. Telescopului 29-31 , Metrou Aurel Vlaicu , București
Str. Gara Herastrau , Metrou Aurel Vlaicu , București
Calea Floreasca 169 , Metrou Aurel Vlaicu , București
Str. Gara Herastrau 2 , Metrou Aurel Vlaicu , București
Str. Siriului 42-46 , Metrou Aurel Vlaicu , București
Bdul. Barbu Vacarescu 313-315 , Metrou Aurel Vlaicu , București
Str. Siriului 6-8 , Metrou Aurel Vlaicu , București
Șos. Pipera 4 , Metrou Aurel Vlaicu , București
Str. Gara Herastrau 2 , Metrou Aurel Vlaicu , București
Sos. Pipera 46 , Metrou Aurel Vlaicu , București
Gara Herastrau 2-4 , Metrou Aurel Vlaicu , București
Sos. Pipera 43 , Metrou Aurel Vlaicu , București
Gara Herastrau 4 , Metrou Aurel Vlaicu , București
Sos. Pipera 42 , Metrou Aurel Vlaicu , București
Barbu Vacarescu 201 , Metrou Aurel Vlaicu , București
Str. Gara Herastrau 4 , Metrou Aurel Vlaicu , București
Barbu Vacarescu 301-311 , Metrou Aurel Vlaicu , București
Calea Floreasca 246B , Metrou Aurel Vlaicu , București
Ești chiriaș?
Contactează-ne și vei primi consultanță gratuită cu privire la:
- condițiile existente în piață
- renegociere termeni contractuali
- opțiuni de relocare
Ești proprietar?
Contactează-ne dacă vrei să fii prezent în cea mai avansată platformă online dedicată închirierii/vânzării de birouri
Contactează-neVIDEO 360 de grade: puteți schimba unghiul de vizualizare prin click / rotire pe video.
Utilizatorii iPhone: faceți click pe titlul din VIDEO pentru o vizualizare completă în aplicația YouTube.



































