Spații Birouri De Închiriat În Tati Center 2
Spații Birouri De Închiriat într-o clădire renovată modern foarte aproape de zona Unirii, cu acces la mijloace de transport în comun, la adresa Bdul. Tudor Vladimirescu, nr.45, sector 5
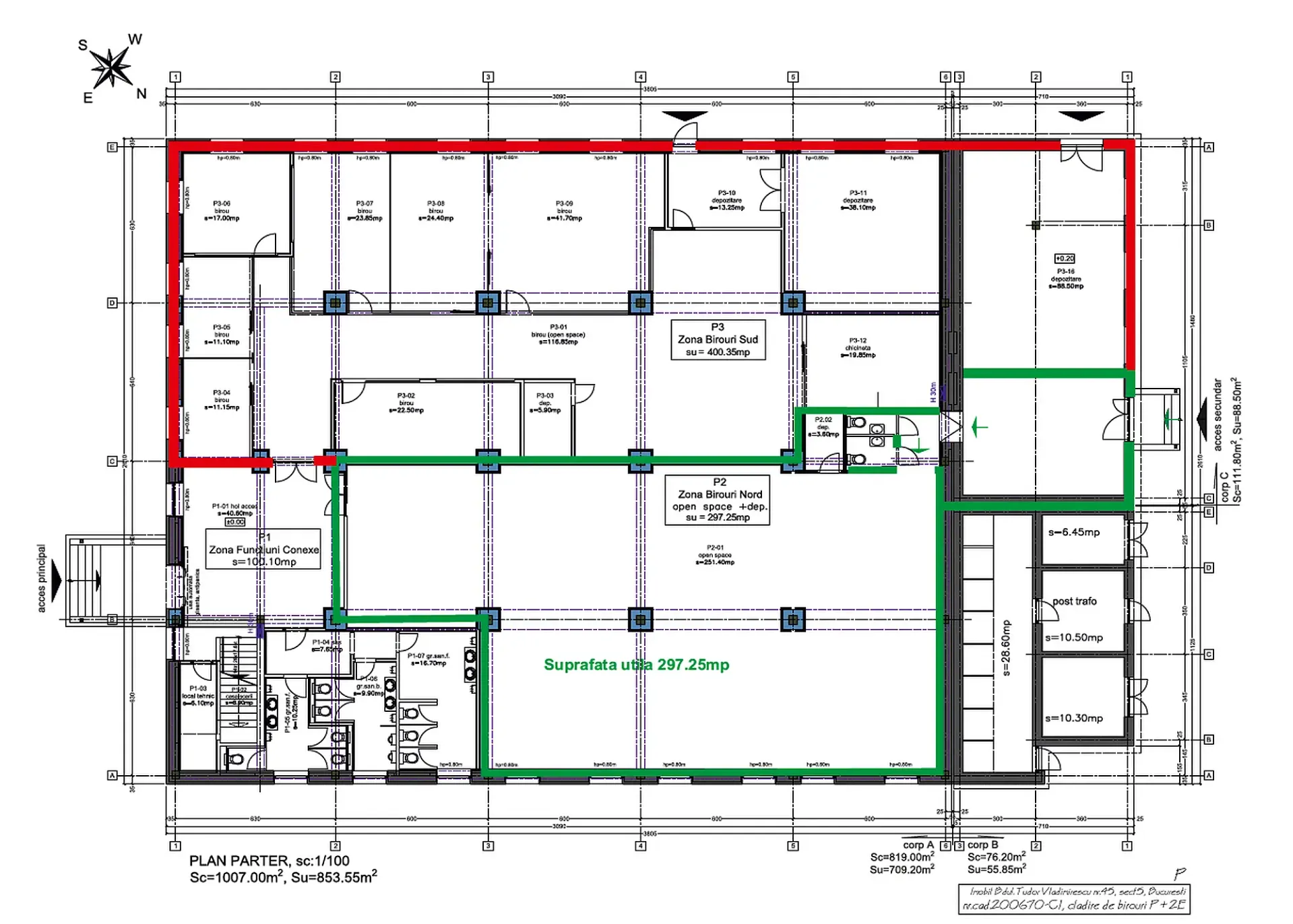
TABEL DETALIAT SUPRAFEȚE DISPONIBILE
| Etaj | Suprafață (m2) | Descriere | Disponibil | |||
| Parter | 297 | 2 intrari separate (cea secundata direct din exterior), open space, 2 grupuri sanitare dedicate + la comun; 4 locuri de parcare | Imediat | Plan |
Cladire de birouri in zona JW Marriot
TATI Center 2 este amplasat la limita de vest a zonei centrale a Bucurestiului, in imediata proximitate a intersectiei Bulevardului Tudor Vladimirescu cu Calea 13 Septembrie si Soseaua Panduri.
Clădirea este situată pe Bulevardul Tudor Vladimirescu, la 400 de metri de complexul JW Marriott, 1 km de Palatul Parlamentului si 2,5 km de Piata Unirii.
Accesul se face pe Bulevardul Tudor Vladimirescu, bulevard largit la 2 benzi pe sens,cu trafic fluent, care face legatura intre Calea 13 Septembrie / Soseaua Panduri si Bulevardul Regina Maria / Calea Rahovei. Transportul public include linii de autobuz si tramvai in distanta pietonala (200-400 metri), suplimentate in 10 minute de mers pe jos, cu legaturi directe catre km 0 al capitalei.
TATI Center 2 este o cladire complet renovata in 2010, cu o suprafata inchiriabila totala de 1.500 m2. Cladirea se desfasoara pe parter, etaj 1 si etajul 2 retras, cu o suprafata a etajului curent de aproximativ 650 m2. Cladirea beneficiaza de 15 locuri de parcare in curtea interioara.
Status Cladire finalizata
Dată finalizare 2010
Niveluri P+2
Suprafață închiriabilă 1,500 m²
Suprafață etaj curent 650 m²
Locuri parcare 15
- Zona Comerciala
- Parcare proprie
- Cafenea
- Restaurant
- Punct bancar
- Punct Presa
- Farmacie
- Punct Medical
- Aer Conditionat
- Incalzire Centralizata
- Tavan Suspendat
- Acces Securizat
- Inaltime utila minim 2,7 metri
- Ferestre cu deschidere
- Paza 24/7
- Generator de Back-up
- Internet Cablu
- Furnizori multipli Date si Voce
- CCTV / Supraveghere Video
- Mocheta
- Rampa scaun cu rotile
Alte oferte din Tudor Vladimirescu
Oferte disponibile: 12
Bdul.Tudor Vladimirescu 45 , Tudor Vladimirescu , București
Calea 13 Septembrie 69-71 , Tudor Vladimirescu , București
Sos. Viilor 14 , Tudor Vladimirescu , București
Str. Sirenelor 5 , Tudor Vladimirescu , București
Str. Gara Dealul Spirii 2 , Tudor Vladimirescu , București
Strada Uranus 150 , Tudor Vladimirescu , București
Str. Sirenelor 91 , Tudor Vladimirescu , București
Bdul.Tudor Vladimirescu 45 , Tudor Vladimirescu , București
Bdul. Tudor Vladimirescu 22 , Tudor Vladimirescu , București
Bdul. Tudor Vladimirescu 29 , Tudor Vladimirescu , București
Calea 13 Septembrie 90 , Tudor Vladimirescu , București
Bd.Tudor Vladimirescu 22 , Tudor Vladimirescu , București
Ești chiriaș?
Contactează-ne și vei primi consultanță gratuită cu privire la:
- condițiile existente în piață
- renegociere termeni contractuali
- opțiuni de relocare
Ești proprietar?
Contactează-ne dacă vrei să fii prezent în cea mai avansată platformă online dedicată închirierii/vânzării de birouri
Contactează-ne






















