Spații Birouri De Închiriat În Tati Center 1
Spații Birouri De Închiriat într-o clădire nouă modernă foarte aproape de zona Unirii, cu acces la mijloace de transport în comun, la adresa Bdul. Tudor Vladimirescu, nr.45, sector 5
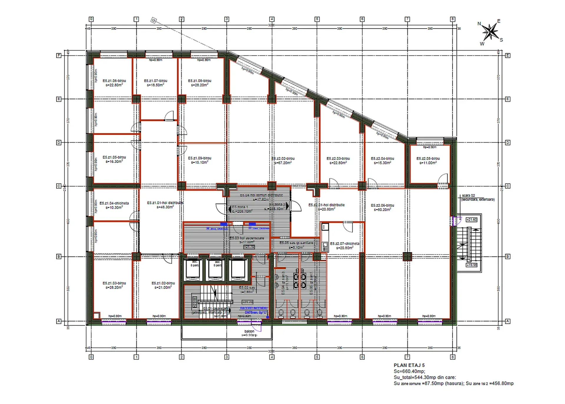
TABEL DETALIAT SUPRAFEȚE DISPONIBILE
| Etaj | Suprafață (m2) | Descriere | Disponibil | |||
| 4 | 536 | compartimentat, 13 birouri, sala de sedinte, 2 chicinete, GS | Imediat | Poze | Plan | |
| 5 | 208 | compartimentat, 7 birouri, chicineta | Imediat | Poze | Plan | |
| 5 | 238 | 2 zone open space, 3 birouri, chicineta | Imediat | Poze | Plan | |
| 5 | 544 | etaj integral, 2 zone open space, 10 birouri individuale, 2 chicinete; posibilitate impartire in 208-238m2 | Imediat | Poze | Plan |
Cladire de birouri in zona JW Marriott
TATI Center este amplasata la limita de vest a zonei centrale a Bucurestiului, in imediata proximitate a intersectiei Bulevardului Tudor Vladimirescu cu Calea 13 Septembrie si Soseaua Panduri.
Clădirea este situată pe Bulevardul Tudor Vladimirescu, la 400 de metri de complexul JW Marriott, 1 km de Palatul Parlamentului si 2,5 km de Piata Unirii.
Accesul se face pe Bulevardul Tudor Vladimirescu, bulevard largit la 2 benzi pe sens, cu trafic fluent, care face legatura intre Calea 13 Septembrie / Soseaua Panduri si Bulevardul Regina Maria / Calea Rahovei. Transportul public include linii de autobuz si tramvai in distanta pietonala (200-400 metri), suplimentate in 10 minute de mers pe jos, cu legaturi directe catre km 0 al capitalei si statia de metrou Academia Militara la 17 minute de mers pe jos.
TATI Center este o cladire moderna de birouri, finalizata in 2006, cu o suprafata inchiriabila totala de 7.081 m2. Suprafata etajului curent este de 530 m2.
Status Cladire finalizata
Dată finalizare 2006
Niveluri 2S+P+M+10
Suprafață închiriabilă 8,706 m²
Suprafață etaj curent 530 m²
Locuri parcare 58
- Zona Comerciala
- Servicii receptie
- Parcare proprie
- Aer Conditionat
- Incalzire Centralizata
- Podea Inaltata
- Tavan Suspendat
- Acces Securizat
- Ferestre cu deschidere
- Receptie
- Paza 24/7
- Lift/Lifturi
- Generator de Back-up
- CCTV / Supraveghere Video
- Detectoare Fum/Foc
- Mocheta
Alte oferte din Tudor Vladimirescu
Oferte disponibile: 12
Bdul.Tudor Vladimirescu 45 , Tudor Vladimirescu , București
Calea 13 Septembrie 69-71 , Tudor Vladimirescu , București
Sos. Viilor 14 , Tudor Vladimirescu , București
Str. Sirenelor 5 , Tudor Vladimirescu , București
Str. Gara Dealul Spirii 2 , Tudor Vladimirescu , București
Bdul. Tudor Vladimirescu 45 , Tudor Vladimirescu , București
Strada Uranus 150 , Tudor Vladimirescu , București
Str. Sirenelor 91 , Tudor Vladimirescu , București
Bdul. Tudor Vladimirescu 22 , Tudor Vladimirescu , București
Bdul. Tudor Vladimirescu 29 , Tudor Vladimirescu , București
Calea 13 Septembrie 90 , Tudor Vladimirescu , București
Bd.Tudor Vladimirescu 22 , Tudor Vladimirescu , București
Ești chiriaș?
Contactează-ne și vei primi consultanță gratuită cu privire la:
- condițiile existente în piață
- renegociere termeni contractuali
- opțiuni de relocare
Ești proprietar?
Contactează-ne dacă vrei să fii prezent în cea mai avansată platformă online dedicată închirierii/vânzării de birouri
Contactează-neVIDEO 360 de grade: puteți schimba unghiul de vizualizare prin click / rotire pe video.
Utilizatorii iPhone: faceți click pe titlul din VIDEO pentru o vizualizare completă în aplicația YouTube.





















