Birouri de inchiriat in Alexandru Constantinescu 6
Birouri de inchiriat intr-o cladire moderna amplasata in zona Domenii, pe Strada Alexandru Constantinescu, sector 1, Bucuresti.
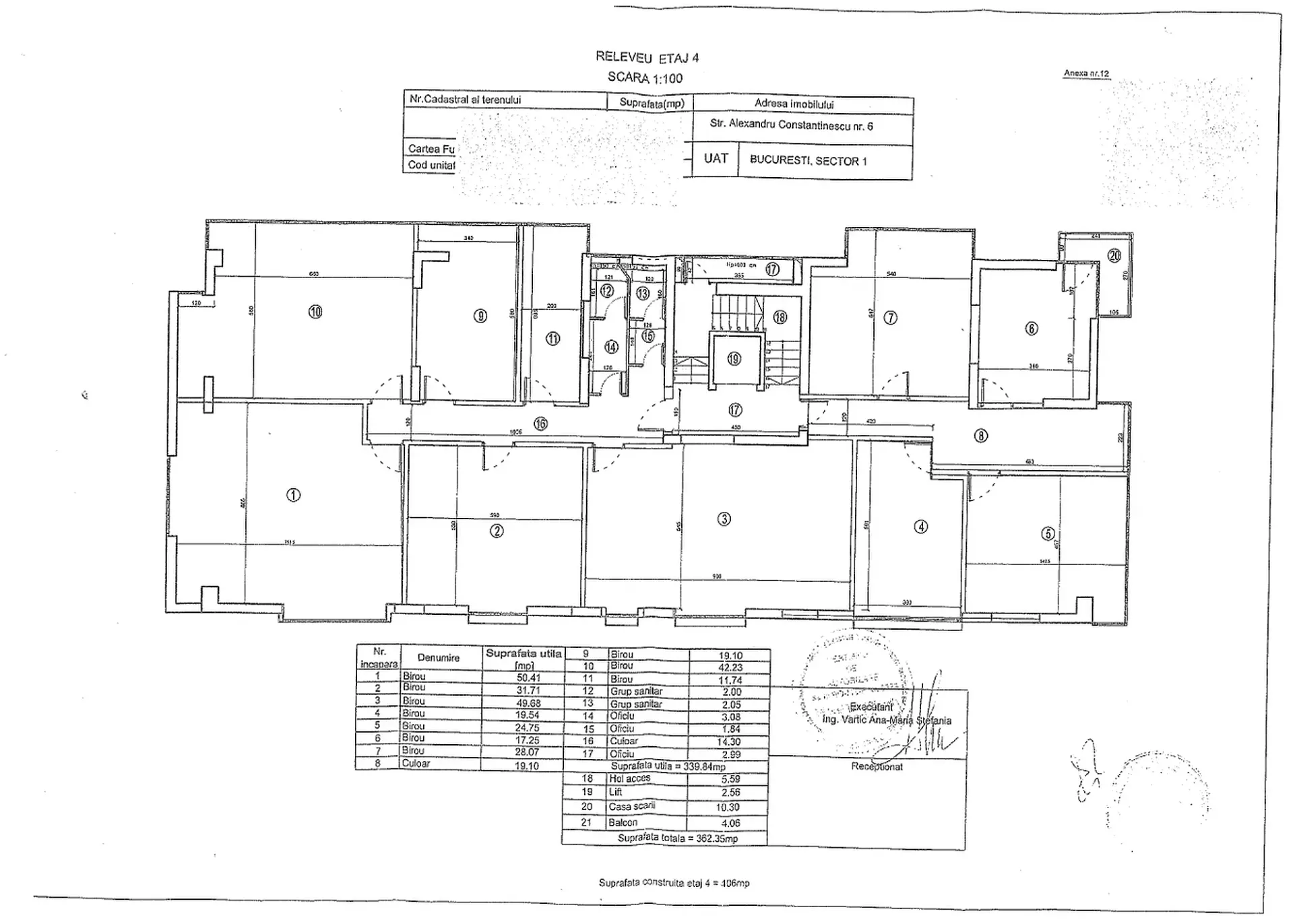
TABEL DETALIAT SUPRAFEȚE DISPONIBILE
| Etaj | Suprafață (m2) | Descriere | Disponibil | |||
| 4 | 362 | 10 birouri, 3 oficii, 2 GS, balcon; 2 locuri de parcare incluse | Imediat | Poze | Plan |
Spatii de birouri pe Strada Alexandru Constantinescu 6
Spatii de birouri de inchiriat in sectorul 1, langa Piata Domenii, intre Bulevardul Ion Mihalache (150 metri) si Bulevardul Marasti / Manastirea Casin (500 metri).
Cladirea este situata la 10 minute de mers de Arcul de Triumf si sediul Comitetului Olimpic Roman, intr-o zona cu functiuni mixte: cladiri rezidentiale istorice si noi, cladiri de birouri, spatii comerciale, Stadionul Arcul de Triumf si terenuri sportive, Universitatea de Stiinte Agronomice, spitale etc.
Accesul cu automobilul se realizeaza din Strada Alexandru Constantinescu, avand conexiuni directe cu bulevardele majore ale zonei, catre zonele de nord si centrale.
Transportul public include statii de tramvai si autobuz la 2-10 minute de mers de cladire, amplasate langa Piata Domenii, la Manastirea Casin si Arcul de Triumf.
Alexandru Constantinescu 6 este o cladire de birouri finalizata in anul 2006, desfasurata pe subsol, parter si 5 etaje (ultimul retras). Cladirea are o suprafata inchiriabila de 2.060 m2, cu un etaj curent de 350 m2 utili. La subsol exista locuri de parcare si spatii de depozitare.
Status Cladire finalizata
Dată finalizare 2006
Niveluri S+P+4+5r
Suprafață închiriabilă 2,060 m²
Suprafață etaj curent 350 m²
Locuri parcare 6
- Ventiloconvectoare
- Aer Conditionat
- Tavan Suspendat
- Acces Securizat
- Ferestre cu deschidere
- Receptie
- Lift/Lifturi
- Furnizori multipli Date si Voce
- CCTV / Supraveghere Video
- Detectoare Fum/Foc
- Mocheta
Alte oferte din Domenii
Oferte disponibile: 11
Str. Trotusului 60 , Domenii , București
Bdul. Marasti 33 , Domenii , București
Str. Aviator Mircea Zorileanu 23 , Domenii , București
Bdul. Maresal Averescu 15 , Domenii , București
Str. Siret 95 , Domenii , București
Str. Iordache Golescu 17 , Domenii , București
Bd. Maresal Averescu 15B/C , Domenii , București
Bdul. Maresal Averescu 15 , Domenii , București
Str. Clucerului 78-80 , Domenii , București
Str. Stefan Sanatescu 53 , Domenii , București
Str. Copilului 16-18 , Domenii , București
Ești chiriaș?
Contactează-ne și vei primi consultanță gratuită cu privire la:
- condițiile existente în piață
- renegociere termeni contractuali
- opțiuni de relocare
Ești proprietar?
Contactează-ne dacă vrei să fii prezent în cea mai avansată platformă online dedicată închirierii/vânzării de birouri
Contactează-ne

















