Birouri De Închiriat În Olympia Tower
Birouri de inchiriat în Bucuresti, cladire moderna clasa A, situata in zona Muncii, la adresa Bd. Decebal 25-29, sector 2
TABEL DETALIAT SUPRAFEȚE DISPONIBILE
| Etaj | Suprafață (m2) | Descriere | Disponibil | |||
| 4 | 305 | 2 zone open space, zona receptie | Imediat | Poze | Plan | |
| 7 | 190 | tenant 4; spatiu open space, phone-booth | Imediat | Poze | Plan | |
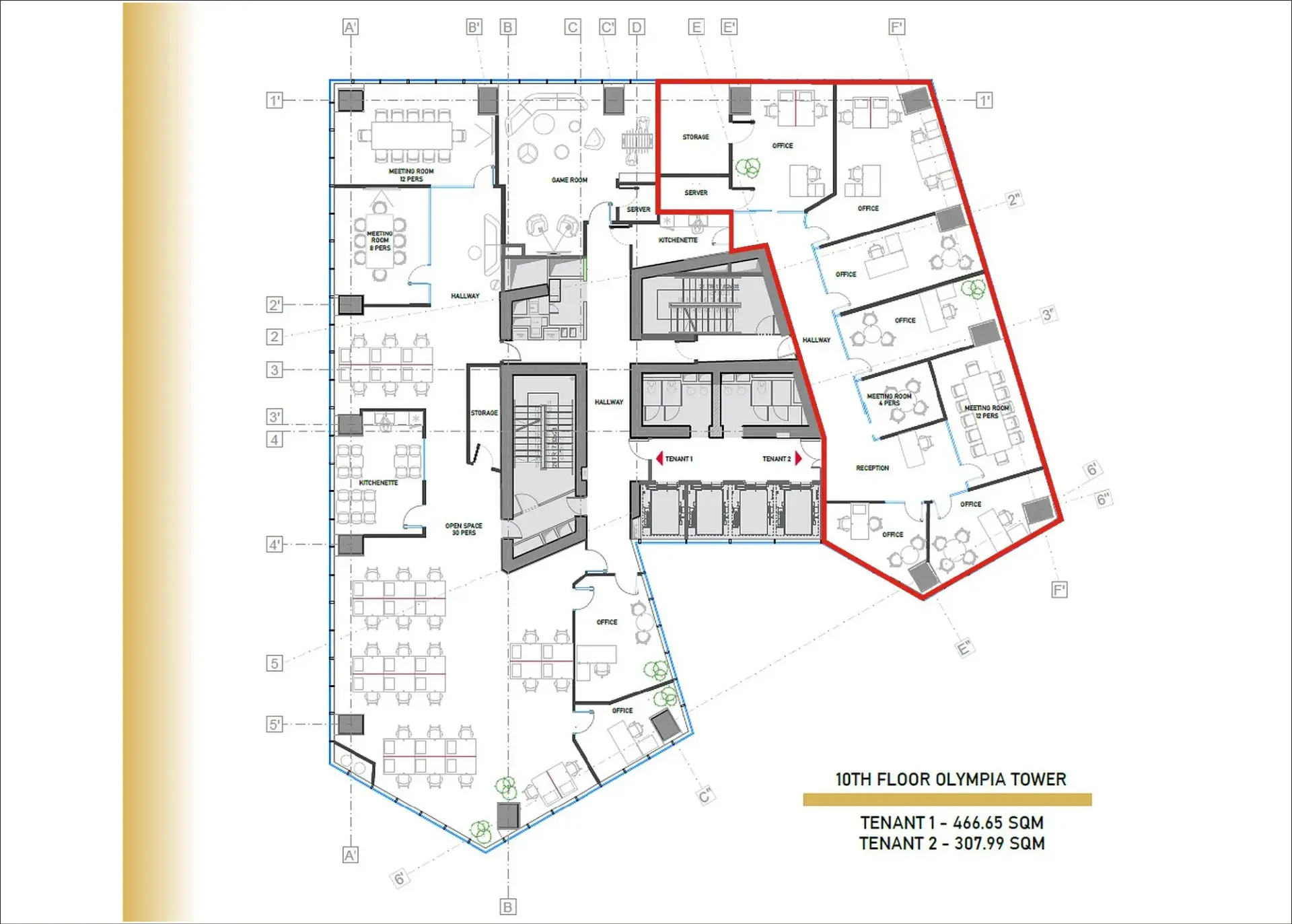
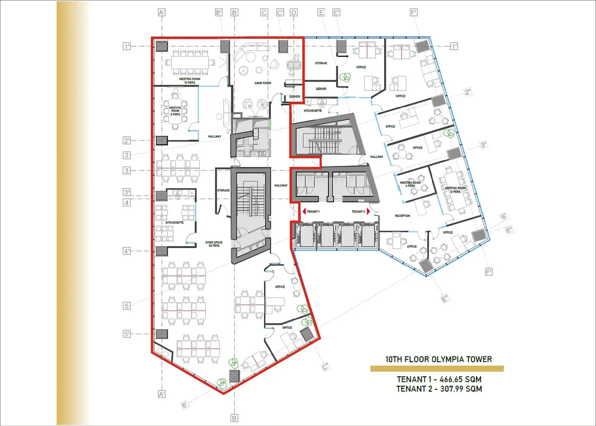
| 10 | 308 | 6 birouri, 2 sali de sedinta, spatiu depozitare, server room, chicineta la comun; posibilitate inchiriere etaj complet 775m2 | La cerere | Plan | ||
| 10 | 467 | zona open space, 2 birouri, 2 sali de sedinta, chicineta, camera de relaxare; posibilitate inchiriere etaj complet 775m2 | La cerere | Plan |
Închiriere birouri in Bucuresti, Bd. Decebal 25-29
Închiriere birouri in Bucuresti, sector 2 in cladirea Olympia Tower. Aceasta este amplasată în Piața Muncii, la intersecția a 3 bulevarde majore, respectiv Bulevardul Mihai Bravu (inelul median), Bdul. Decebal și Calea Călărașilor. Clădirea este situată la granița dintre zona centrală și cea semi-centrală (inelul median), la o distanță de 3 km de Piața Unirii.
Clădirea beneficiază de o accesibilitate excelentă, datorată amplasării pe inelul median de transport (Mihai Bravu) și accesului direct din / către zona ultracentrală (Unirii). Transportul public include metrou (Muncii), stații de tramvai și autobuz, amplasate în imediata vecinătate a clădirii.
Olympia Tower este o clădire de birouri de clasa A cu o suprafață închiriabilă totală de 9.500 m2. Clădirea este dezvoltată pe 3 niveluri subterane (parcare), parter (Mega Image) și 12 etaje. Suprafața medie închiriabilă pe nivel este de 730 m2. Parcarea include 96 locuri în subteran.
Clădirea a fost livrată în 2010 și detine specificații de clasa A: BMS, HVAC, podea înălțată și tavan suspendat, ferestre cu deschidere, access securizat, generator de back-up, detectoare de fum etc. Clădirea beneficiază de zonă comercială (spații de stradă) în vecinătate.
Status Cladire finalizata
Dată finalizare 2010
Niveluri 3S+P+12
Suprafață închiriabilă 9,500 m²
Suprafață etaj curent 730 m²
Locuri parcare 96
- Zona Comerciala
- Servicii receptie
- Parcare proprie
- Punct bancar
- ATM
- BREEAM
- HVAC
- Podea Inaltata
- Tavan Suspendat
- Acces Securizat
- Inaltime utila minim 2,7 metri
- Ferestre cu deschidere
- Receptie
- Paza 24/7
- Lift/Lifturi
- Generator de Back-up
- CCTV / Supraveghere Video
- Detectoare Fum/Foc
Alte oferte din Muncii
Oferte disponibile: 13
Str. Frunzei 26 , Muncii , București
Str. Tepes Voda 89 , Muncii , București
Intrarea Patrulei 6 , Muncii , București
Str. Invingatorilor 24 , Muncii , București
Str. Delea Noua 3 , Muncii , București
Str. Dumitru Ganovici 9 , Muncii , București
Str. Alexandru Savulescu 8 , Muncii , București
Str. Invingatorilor 24 , Muncii , București
Sos. Mihai Bravu 255 , Muncii , București
Sos. Mihai Bravu 171-173 , Muncii , București
Str. Popa Nan 183-187 , Muncii , București
Sos. Mihai Bravu 215 , Muncii , București
Str. Delea Veche 24 , Muncii , București
Ești chiriaș?
Contactează-ne și vei primi consultanță gratuită cu privire la:
- condițiile existente în piață
- renegociere termeni contractuali
- opțiuni de relocare
Ești proprietar?
Contactează-ne dacă vrei să fii prezent în cea mai avansată platformă online dedicată închirierii/vânzării de birouri
Contactează-neVIDEO 360 de grade: puteți schimba unghiul de vizualizare prin click / rotire pe video.
Utilizatorii iPhone: faceți click pe titlul din VIDEO pentru o vizualizare completă în aplicația YouTube.


























