Birouri de inchiriat in Frunzei 26
Birouri de inchiriat intr-o cladire moderna de clasa A amplasata in centrul Bucurestiului, in zona dintre Piata Muncii si Piata Iancului, sector 2.
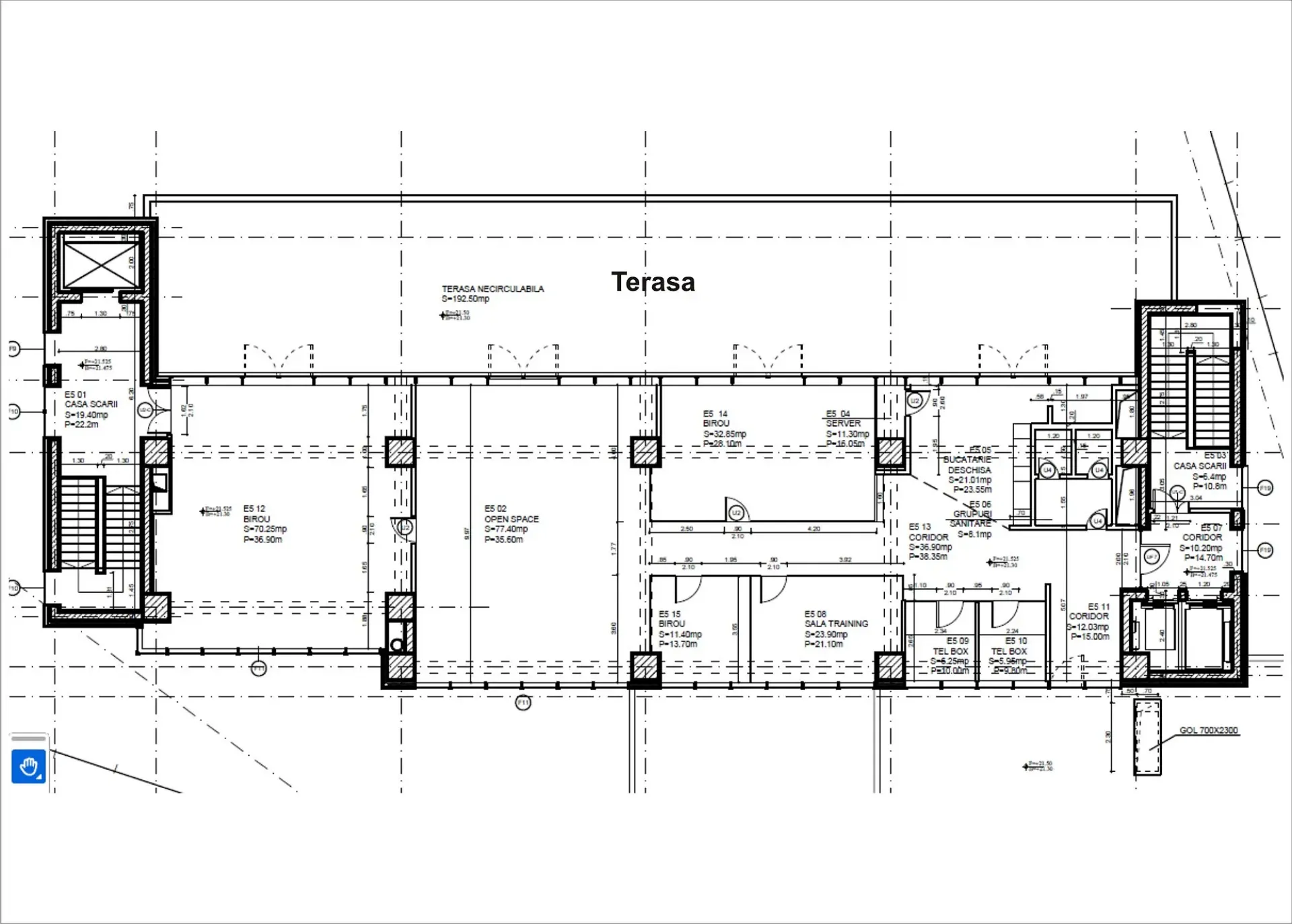
TABEL DETALIAT SUPRAFEȚE DISPONIBILE
| Etaj | Suprafață (m2) | Descriere | Disponibil | |||
| 5 | 360 | open space, 3 birouri, 2 sali tip phone booth, bucatarie, GS, terasa generoasa | Imediat | Poze | Plan |
Inchiriere birouri in Strada Frunzei 26
Inchiriere birouri in Sector 2, la limita de est a zonei centrale, in zona cuprinsa intre Piata Muncii (650 metri), Piata Iancului (1,1 km), Calea Calarasilor (400 metri) si Pache Protopopescu (800 metri).
Cladirea este amplasata la interctia Strazii Frunzei cu Strada Agricultori, intr-un cluster nou construit, langa un bloc rezidential nou si Spitalul Nord Agricultori.
Zona are un caracter mixt, dominata de proprietati rezidentiale, cu functiuni de birouri, educationale si medicale si spatii comerciale pe marile bulevarde.
Accesul cu automobilul beneficiaza de proximitatea cu inelul median Soseaua Mihai Bravu, respectiv celelalte bulevarde majore care ajung la Piata Muncii si Piata Iancului, asigurand acces facil catre majoritatea zonelor orasului.
Transportul public include statia de metrou Muncii la 9-10 minute de mers de cladire, respectiv statii de tramvai si autobuz la 7-10 minute de mers.
Frunzei 26 este o cladire de birouri finalizata in 2017, incluzand 2 corpuri de cladire desfasurate pe 2 niveluri subterane, parter si 5 etaje (ultimul retras). Cladirea are specificatii de clasa A (podea inaltata, tavan suspendat, sistem HVAC cu 4 tevi, generator de back-up etc.) si pune la dispozitie spatii cu suprafata medie de 300-600 m2.
Cladirea beneficiaza de receptie generoasa, rampa de acces pentru persoanele cu dizabilitati, 2 lifturi de persoane si unul de marfa. Parcarea este amplasata in subteran, pe 2 niveluri, dar si in exterior.
Status Cladire finalizata
Dată finalizare 2017
Niveluri 2S+P+4+5r
Locuri parcare 45
- Servicii receptie
- Parcare proprie
- Parcare biciclete
- BMS - Building Management System
- HVAC
- Podea Inaltata
- Tavan Suspendat
- Acces Securizat
- Ferestre cu deschidere
- Receptie
- Paza 24/7
- Lift/Lifturi
- Generator de Back-up
- Furnizori multipli Date si Voce
- CCTV / Supraveghere Video
- Detectoare Fum/Foc
- Mocheta
- Rampa scaun cu rotile
Alte oferte din Muncii
Oferte disponibile: 13
Str. Tepes Voda 89 , Muncii , București
Intrarea Patrulei 6 , Muncii , București
Str. Invingatorilor 24 , Muncii , București
Str. Delea Noua 3 , Muncii , București
Str. Dumitru Ganovici 9 , Muncii , București
Str. Alexandru Savulescu 8 , Muncii , București
Str. Invingatorilor 24 , Muncii , București
Sos. Mihai Bravu 255 , Muncii , București
Sos. Mihai Bravu 171-173 , Muncii , București
Str. Popa Nan 183-187 , Muncii , București
Sos. Mihai Bravu 215 , Muncii , București
Str. Delea Veche 24 , Muncii , București
Bdul. Decebal 25-29 , Muncii , București
Ești chiriaș?
Contactează-ne și vei primi consultanță gratuită cu privire la:
- condițiile existente în piață
- renegociere termeni contractuali
- opțiuni de relocare
Ești proprietar?
Contactează-ne dacă vrei să fii prezent în cea mai avansată platformă online dedicată închirierii/vânzării de birouri
Contactează-ne























