Birouri de inchiriat in Airport Plaza
Birouri de inchiriat pe DN1, in proximitatea Aeroportului International Henri Coanda, Otopeni.
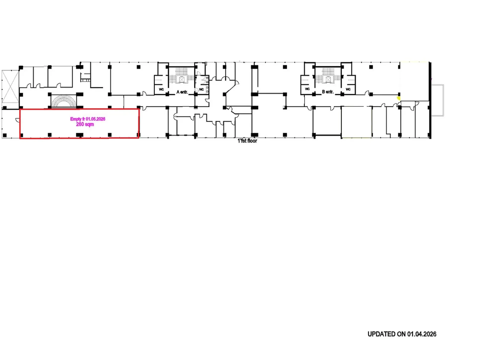
TABEL DETALIAT SUPRAFEȚE DISPONIBILE
| Etaj | Suprafață (m2) | Descriere | Disponibil | |||
| 2 | 124 | Corp B: open space / compartimentat | 01.10.2025 | |||
| 2 | 97 | Corp A: spatiu open space; posibilitate extindere spatiu la 150m2 | Imediat | Poze | Plan | |
| 3 | 110 | Corp A: spatiu open space | Imediat | 
Inchiriere birouri pe Drumul Garii Odai 1A
Inchiriere birouri in Otopeni, intr-o cladire de birouri moderna, amplasata intr-o zona strategica, in proximitatea Aeroportului International Henri Coanda, langa noua linie de cale ferata Bucuresti-Aeroport.
Cladirea este amplasata pe DN1, avand vizibilitate excelenta la drumul national, la o distanta de 1,8 km de noua centura A0 si 3,6 km de vechea soseaua de centura.
Vecinatatile cladirii includ functiuni mixte: hoteluri (Vienna House Easy by Wyndham, Hilton Garden Inn), sedii de firma, Tiriac Collection, Patinoarul Tiriac, Water Park Otopeni, proprietati rezidentiale, servicii aeroportuare etc.
Accesul cu automobilul se face pe DN1, principala sosea din nordul Bucurestiului, care leaga zona Otopeni de nordul Capitalei, asigurand trafic auto pe 3 benzi pe fiecare sens.
Transportul public include statie de autobuz pe DN1, la 100 de metri de cladire, respectiv noua linie de cale ferata Gara de Nord – Aeroport, cu statie amplasata la limita cladirii.
Airport Plaza este o cladire de birouri finalizata in anul 2011, desfasurata pe parter și trei etaje, avand o suprafata generoasa de 2.000 m² pe nivel.
Cladirea beneficiază de locuri de parcare exterioare, amplasate perimetral langa cladire, dar si pe platforma care deserveste ansamblul Airport Residence.
Imobilul dispune de servicii de receptie, 4 lifturi, etaje cu inaltime utila de peste 2,7 metri, podea inaltata si tavan suspendat, climatizare cu ventiloconvectoare de pardoseala, iluminat LED, ferestre care se pot deschide, generator de back-up.
Status Cladire finalizata
Dată finalizare 2011
Niveluri P+3
Suprafață închiriabilă 8,067 m²
Suprafață etaj curent 2,000 m²
Locuri parcare 200
- Servicii receptie
 - Parcare proprie
 
- Ventiloconvectoare
 - Podea Inaltata
 - Tavan Suspendat
 - Inaltime utila minim 2,7 metri
 - Ferestre cu deschidere
 - Receptie
 - Paza 24/7
 - Lift/Lifturi
 - Generator de Back-up
 - Furnizori multipli Date si Voce
 - CCTV / Supraveghere Video
 - Detectoare Fum/Foc
 - Mocheta
 
Alte oferte din Otopeni
Oferte disponibile: 1
Bdul. Aeroportului 11 , Otopeni , București
Ești chiriaș?
Contactează-ne și vei primi consultanță gratuită cu privire la:
- condițiile existente în piață
 - renegociere termeni contractuali
 - opțiuni de relocare
 
Ești proprietar?
Contactează-ne dacă vrei să fii prezent în cea mai avansată platformă online dedicată închirierii/vânzării de birouri
Contactează-ne









              
              