Birouri de inchiriat in Roka Residence
Birouri de inchiriat intr-o cladire mixta din zona centrala Timpuri Noi, in proximitatea intersectiei Nerva Traian cu Splaiul Unirii, Sector 3, Bucuresti.
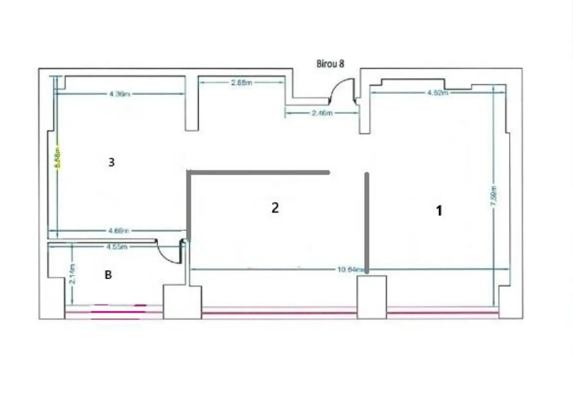
TABEL DETALIAT SUPRAFEȚE DISPONIBILE
| Etaj | Suprafață (m2) | Descriere | Disponibil | |||
| 1 | 112 | 2 zone open space, spatiu depozitare, chicineta | Imediat | Poze | Plan |
Inchiriere birouri pe Strada Nerva Traian 27-33
Inchiriere birouri in sectorul 3, pe strada Nerva Traian, la doar 300 metri de intersectia cu Splaiul Unirii / raul Dambovita si statia de metrou Timpuri Noi, in imediata vecinatate a noului ansamblu Timpuri Noi Square.
Cladirea beneficiaza de o pozitionare excelenta, intre Piata Unirii si Parcul Tineretului, cu acces facil la puncte de interes importante.
Zona ofera multiple avantaje si functiuni: stoc rezidential, cladiri de birouri, spatii comerciale si restaurante, hoteluri, acces la 3 universitati (Universitatea „Nicolae Titulescu”, Universitatea Creștină „Dimitrie Cantemir”, Universitatea „Titu Maiorescu”), Parcul Tineretului la 1 km, Parcul Carol I la 1,6 km etc.
Accesul cu automobilul se face din Strada Nerva Traian, sosea cu 2 benzi de circulatie pe sens si linie de tramvai pe mijloc, care leaga Splaiul Unirii de Bulevardul Unirii, asigurand acces rapid catre diverse zone ale orasului.
Transportul public include statia de metrou Timpuri Noi si statii de autobuz la 4 minute de mers pe jos, respectiv linia de tramvai 19 cu statie in fata cladirii.
Roka Residence este un imobil cu functiune mixta (locuinte, comercial si birouri), finalizat in martie 2021. Ansamblul include 223 apartamente si 16 penthouse-uri, alaturi de 2.867m2 de spatii comerciale si birouri.
Cladirea dispune de receptie, sistem de control acces 24/7, video-interfon, 4 lifturi, aer conditionat, incalzire in pardoseala, detectoare de fum/foc, supraveghere video, ferestre cu deschidere.
Mezaninul cladirii este dedicat spatiilor de birouri, incluzand atat unitati disponibile pentru inchiriere pe termen mediu-lung, cat si o zona de coworking pentru termene flexibile.
Cladirea beneficiaza de 372 locuri de parcare in subteran si de facilitati comercial si servicii precum mini-market, cabinet stomatologic, Intesa San-Paolo Bank, cafenea si patiserie, spatii de coworking etc.
Status Cladire finalizata
Dată finalizare 2021
Niveluri 3S+P+10+2R
Suprafață închiriabilă 2,867 m²
Suprafață etaj curent 1,500 m²
Locuri parcare 283
- Zona Comerciala
- Servicii receptie
- Parcare proprie
- Cafenea
- Restaurant
- ATM
- Aer Conditionat
- Acces Securizat
- Ferestre cu deschidere
- Receptie
- Lift/Lifturi
- Furnizori multipli Date si Voce
- CCTV / Supraveghere Video
- Detectoare Fum/Foc
Alte oferte din Timpuri Noi
Oferte disponibile: 7
Str. Foisorului 58 , Timpuri Noi , București
Str. Foisorului 58 , Timpuri Noi , București
Splaiul Unirii 165 , Timpuri Noi , București
Str. Dumitru Papazoglu 96 , Timpuri Noi , București
Splaiul Unirii 76 , Timpuri Noi , București
Str. Anastasie Panu 50 , Timpuri Noi , București
Splaiul Unirii 165 , Timpuri Noi , București
Ești chiriaș?
Contactează-ne și vei primi consultanță gratuită cu privire la:
- condițiile existente în piață
- renegociere termeni contractuali
- opțiuni de relocare
Ești proprietar?
Contactează-ne dacă vrei să fii prezent în cea mai avansată platformă online dedicată închirierii/vânzării de birouri
Contactează-ne


















