Birouri De Închiriat În Rams Center
Birouri de inchiriat în Bucuresti, cladire de birouri moderna, situata in zona Pantelimon, la adresa Dudești-Pantelimon 42, sector 3
TABEL DETALIAT SUPRAFEȚE DISPONIBILE
| Etaj | Suprafață (m2) | Descriere | Disponibil | |||
| Parter | 589 | 359m2 hala productie / depozitare + 230m2 birouri / ateliere, GS - putere instalata 220V/380V; chirie 7.5€/m2/luna | Imediat | Plan | ||
| Parter | 239 | 188m2 hala productie / depozitare + 36m2 birouri / ateliere, GS; chirie 7.5€/m2/luna | Ianuarie 2026 | Plan | ||
| Parter | 262 | spatiu comercial / birouri; open space / compartimentat; 14€/m2/luna+TVA (chirie + SC 2,5) | Imediat | Plan | ||
| Parter | 686 | spatiu comercial / birouri; open space / compartimentat; 14€/m2/luna+TVA (chirie + SC 2,5) | Imediat | Poze | Plan | |
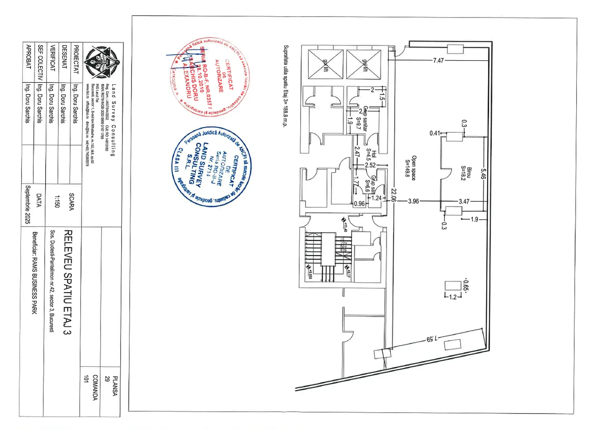
| 3 | 189 | open space, birou de sticla, mochetat; chirie 12.5€/m2/luna | Imediat | Poze | Plan | |
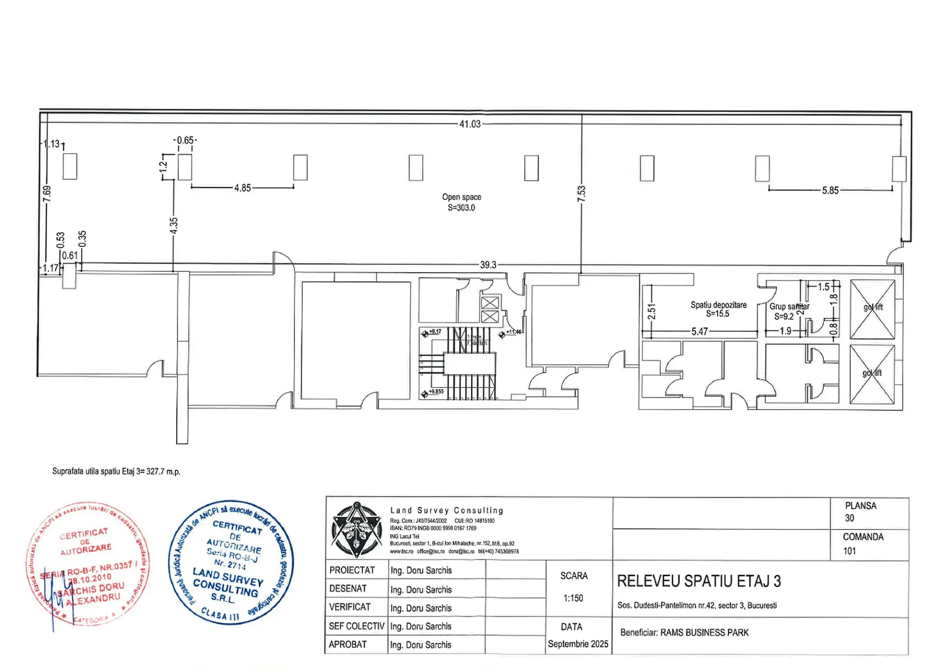
| 3 | 328 | Open space, spatiu depozitare, GS | Imediat | Poze | Plan | |
| 6 | 550 | open space, oficii, GS; chirie 12.5€/m2/luna | T4 2025 | Plan |
Închiriere birouri in Bucuresti, Șos. Dudești-Pantelimon 42
Închiriere birouri in Bucuresti, sector 3 in cladirea Rams Business Park. Aceasta este amplasata în partea de est a Bucureștiului, la intersecția Șoselei Dudești-Pantelimon cu Strada Roșu Nicolae, la 400 de metri distanță de stațiile de metrou Pantelimon și Republica.
Clădirea este situată adiacent platformei comerciale Cora Pantelimon–Mobexpert-BricoDepot, respectiv lângă viitorul magazin Dedeman.
Accesibilitatea auto se realizează de pe Șoseaua Dudesti-Pantelimon, strada cu trafic fluent care leaga principalele două bulevarde ale zonei, Bulevardul Basarabiei de Șoseaua Pantelimon. Amplasamentul beneficiază de numeroase linii de transport în comun situate la 5-10 minute de mers pe jos, incluzând stațiile de metrou Pantelimon și Republica, autobuze și tramvaie.
Rams Business Park este o clădire de birouri de clasă B, finalizată în 2008, cu o suprafață închiriabilă totală de 11.800 m2, desfasurată pe 8 niveluri.
Status Cladire finalizata
Dată finalizare 2008
Niveluri S+P+7
Suprafață închiriabilă 11,800 m²
Locuri parcare 60
- Servicii receptie
- Parcare proprie
- Zona Comerciala
- Parcare biciclete
- Podea Inaltata
- Paza 24/7
- Lift/Lifturi
- Generator de Back-up
- CCTV / Supraveghere Video
- Detectoare Fum/Foc
- Ventiloconvectoare
- Tavan Suspendat
- Ferestre cu deschidere
- Receptie
- Sprinkler System
Alte oferte din Pantelimon
Oferte disponibile: 3
Strada Baicului 82 , Pantelimon , București
Bdul. Pierre de Coubertain 3-5 , Pantelimon , București
Bdul. Pierre de Coubertain 3-5 , Pantelimon , București
Ești chiriaș?
Contactează-ne și vei primi consultanță gratuită cu privire la:
- condițiile existente în piață
- renegociere termeni contractuali
- opțiuni de relocare
Ești proprietar?
Contactează-ne dacă vrei să fii prezent în cea mai avansată platformă online dedicată închirierii/vânzării de birouri
Contactează-neVIDEO 360 de grade: puteți schimba unghiul de vizualizare prin click / rotire pe video.
Utilizatorii iPhone: faceți click pe titlul din VIDEO pentru o vizualizare completă în aplicația YouTube.










