Spatii birouri de inchiriat in North Gate
Spații Birouri De Închiriat în Bucuresti, intr-o cladire de birouri de clasa A, situata in zona Pipera, pe Bdul. Pipera 2
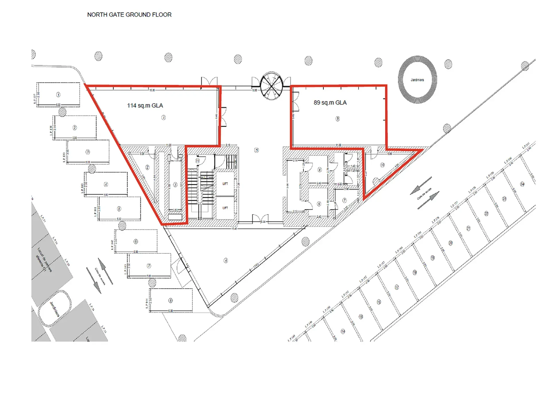
TABEL DETALIAT SUPRAFEȚE DISPONIBILE
| Etaj | Suprafață (m2) | Descriere | Disponibil | |||
| Parter | 89 | spatiu comercial; intrare din zona de receptie; open space + depozitare; chirie 17,5€/m2/luna; SC 4 €/m2/luna (open book) | La cerere | Plan | ||
| Parter | 114 | spatiu comercial (fost showroom auto); intrare din exterior + intrare din zona receptie; open space + 2 zone depozitare; chirie 15,5€/m2/luna; SC 4 €/m2/luna (open book) | Noiembrie 2025 | Plan |
Birouri de închiriat in Bucuresti, zona Pipera
Birouri de închiriat in Bucuresti in cladirea North Gate, amplasata in partea de nord a Bucurestiului, in cadrul zonei de birouri Pipera.
Cladirea este situata la intersectia Bulevardului Pipera cu Soseaua Bucuresti Nord, vis-a-vis de Porsche Nord (Audi) si la 500 de metri de Pasajul Pipera.
Zona Pipera este una din principalele zone de business ale capitalei, dezvoltandu-se in ultimii 10 ani cu un mix variat de cladiri noi, cu spatii de birouri de inchiriat, showroom-uri auto, restaurante, zona comerciala etc.
Accesul cu automobilul s-a imbunatatit in ultimii ani prin realizarea Pasajului Pipera si a pasajului peste Barbu Vacarescu, respectiv prin largirea Soselei / Bulevardului Pipera la doua benzi pe sens. Zona beneficiaza de access direct si rapid la noul business district de la statia de metrou Aurel Vlaicu, la intersectia Soselei Pipera cu Barbu Vacarescu si Calea Floreasca. Transportul public se realizeaza prin curse speciale (shuttle-bus).
North Gate este un complex mixt, livrat in 2006, format dintr-o cladire de birouri de clasa A si o cladire in curs de reconvertire in rezidential, sub numele One North Lofts.
Cladirea de birouri are certificare verde BREEAM si este desfasurata pe subsol, parter si 4 etaje, cu o suprafata pe nivel de 1.060 m2. Parcarea care deserveste ambele cladiri include 504 spatii, din care 260 in subteran.
Status Cladire finalizata
Dată finalizare 2006
Niveluri S+P+4
Suprafață închiriabilă 4,100 m²
Suprafață etaj curent 1,058 m²
Locuri parcare 504
- Zona Comerciala
- Servicii receptie
- Parcare proprie
- Cantina
- Restaurant
- Punct bancar
- Farmacie
- BREEAM
- BMS - Building Management System
- HVAC
- Podea Inaltata
- Tavan Suspendat
- Inaltime utila minim 2,7 metri
- Ferestre cu deschidere
- Receptie
- Paza 24/7
- Lift/Lifturi
- CCTV / Supraveghere Video
- Detectoare Fum/Foc
Alte oferte din Pipera
Oferte disponibile: 10
Str. George Constantinescu 3 , Pipera , București
Bdul. Pipera 5 , Pipera , București
Bdul. Pipera 1-1A , Pipera , București
Bdul. Pipera 1/VI , Pipera , București
Str. Erou Iancu Nicolae 29 , Pipera , București
Str. Erou Iancu Nicolae 29 , Pipera , București
Sos. Bucuresti Nord 15-23 , Pipera , București
Pipera Tunari 2/II , Pipera , București
Șos. București Nord 10 , Pipera , București
Bd. Pipera 1B , Pipera , București
Ești chiriaș?
Contactează-ne și vei primi consultanță gratuită cu privire la:
- condițiile existente în piață
- renegociere termeni contractuali
- opțiuni de relocare
Ești proprietar?
Contactează-ne dacă vrei să fii prezent în cea mai avansată platformă online dedicată închirierii/vânzării de birouri
Contactează-ne















