Birouri de inchiriat in Monolit Square
Birouri de inchiriat intr-o cladire premium de clasa A, amplasata in Piata Charles de Gaulle, sector 1, Bucuresti.
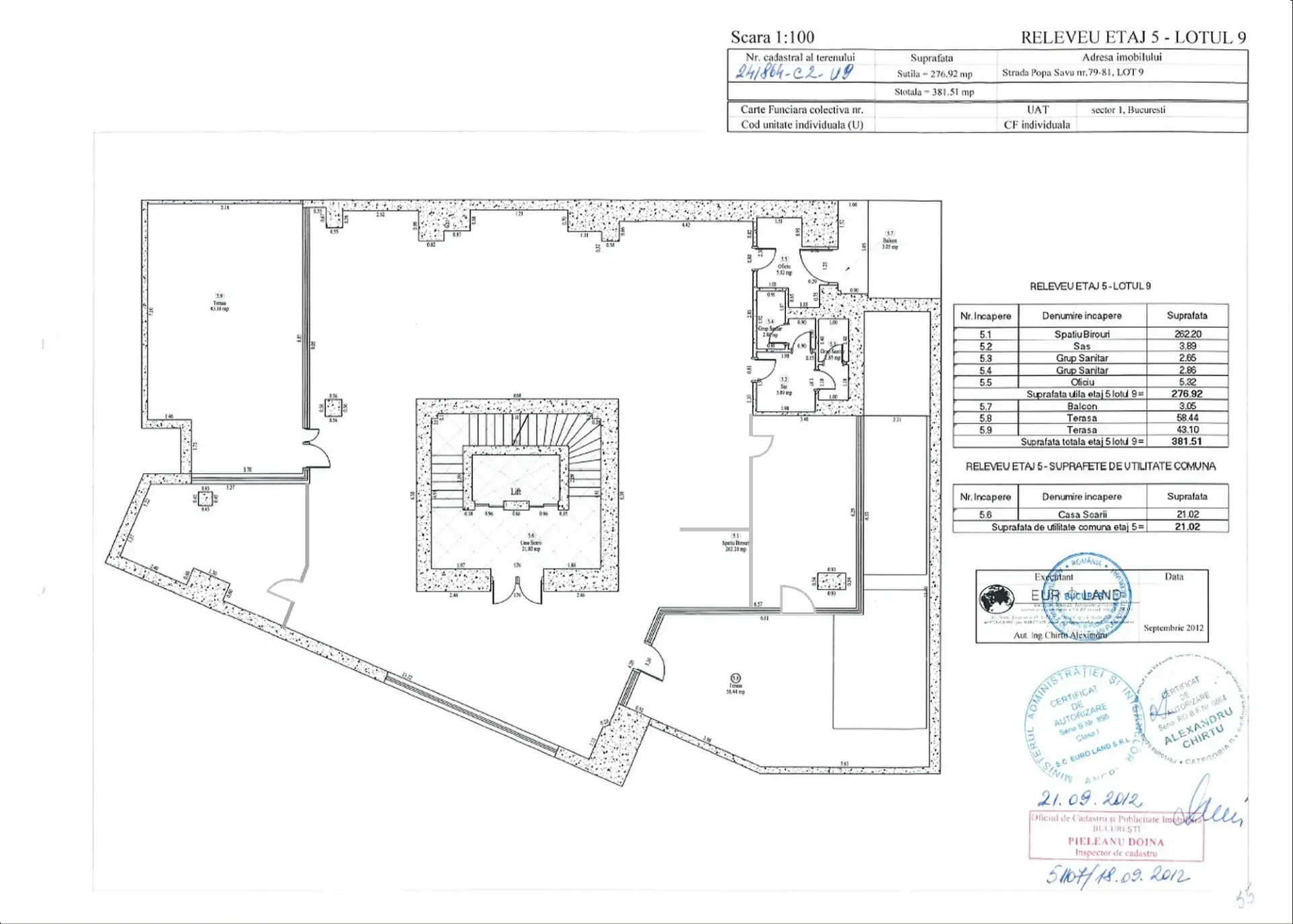
TABEL DETALIAT SUPRAFEȚE DISPONIBILE
| Etaj | Suprafață (m2) | Descriere | Disponibil | |||
| 5 | 301 | open space, birou manager, sala de sedinte, chicineta + balcon 3m2, grup sanitar + 2 terase de 58m2 si 43m2 | Imediat | Poze | Plan |
Spatii de birouri de inchiriat pe Strada Popa Savu 79-81
Spatii de birouri de inchiriat in sectorul 1, la intersectia Bulevardului Maresal Constantin Prezan cu Strada Popa Savu, zona Aviatorilor-Charles de Gaulle.
Cladirea este amplasata pe bulevardul care leaga Piata Charles de Gaulle de Arcul de Triumf (450 metri distanta), vis-a-vis de Parcul Herastrau, respectiv la 550 metri de Televiziunea Romana.
Vecinatatile cladirii au functiuni mixte: cladiri de birouri, cladiri rezidentiale interbelice si nou construite, zone de promenda (Parcul Herastrau, Parcul Kiseleff), restaurante si cafenele, servicii etc.
Accesul cu automobilul este facil, fiind realizat din bulevardele majore ale zonei (Aviatorilor, Soseaua Pavel D. Kiseleff, Maresal Constantin Prezan), cu conexiuni excelente din zona centrala si de nord.
Transportul public include statia de metrou Aviatorilor si statii de autobuz in perimetrul Pietei Charles de Gaulle.
Monolit Square este o cladire de birouri finalizata in 2012, desfasurata pe subsol, parter si 5 etaje (ultimul etaj retras), cu o suprafata a etajului curent de aproximativ 408 m2.
Cladirea dispune de specificatii de clasa A, precum: podea inaltata, tavan suspendat, acces securizat si generator de back-up.
Monolit Square dispune de 20 locuri de parcare, dispuse pe 2 niveluri subterane.
Status Cladire finalizata
Dată finalizare 2012
Niveluri 2S+P+4+5r
Suprafață închiriabilă 2,170 m²
Suprafață etaj curent 408 m²
Locuri parcare 20
- BMS - Building Management System
- HVAC
- Podea Inaltata
- Tavan Suspendat
- Acces Securizat
- Receptie
- Paza 24/7
- Generator de Back-up
- Furnizori multipli Date si Voce
- CCTV / Supraveghere Video
- Detectoare Fum/Foc
- Mocheta
Alte oferte din Charles De Gaulle-Aviatorilor
Oferte disponibile: 27
Bdul. Maresal Averescu 26-28 , Charles De Gaulle-Aviatorilor , București
Str. Maior Gheorghe Sontu 8-10 , Charles De Gaulle-Aviatorilor , București
Str. Andrei Muresanu 11-13 , Charles De Gaulle-Aviatorilor , București
Bdul. Aviatorilor 47 , Charles De Gaulle-Aviatorilor , București
Str. Alexandrina 19 , Charles De Gaulle-Aviatorilor , București
Strada Col. Constantin Blaremberg 4-6 , Charles De Gaulle-Aviatorilor , București
Bulevardul Aviatorilor 41 , Charles De Gaulle-Aviatorilor , București
Str. Puskin 22A , Charles De Gaulle-Aviatorilor , București
Str. Puskin 22A , Charles De Gaulle-Aviatorilor , București
Str. Anton Cehov 2 , Charles De Gaulle-Aviatorilor , București
Str. Pictor Daniel Rosenthal 14 , Charles De Gaulle-Aviatorilor , București
Str. Maior Gheorghe Sontu 6 , Charles De Gaulle-Aviatorilor , București
Str. Alexandrina 19 , Charles De Gaulle-Aviatorilor , București
Bdul. Primaverii 4 , Charles De Gaulle-Aviatorilor , București
Bdul. Aviatorilor 49 , Charles De Gaulle-Aviatorilor , București
Str. Grigore Mora 11 , Charles De Gaulle-Aviatorilor , București
Bd. Aviatorilor 27 , Charles De Gaulle-Aviatorilor , București
Str. Jean Texier 3 , Charles De Gaulle-Aviatorilor , București
Str. Emanoil Porumbaru 93-95 , Charles De Gaulle-Aviatorilor , București
Str. Puskin 10-12 , Charles De Gaulle-Aviatorilor , București
Bdul. Primaverii 19-21 , Charles De Gaulle-Aviatorilor , București
Str. Emanoil Porumbaru 25A , Charles De Gaulle-Aviatorilor , București
Grigore Mora 37 , Charles De Gaulle-Aviatorilor , București
Piata Charles de Gaulle 15 , Charles De Gaulle-Aviatorilor , București
Calea Dorobantilor 239 , Charles De Gaulle-Aviatorilor , București
Ermil Pangratti 30 A , Charles De Gaulle-Aviatorilor , București
Str. Ermil Pangratti 2 , Charles De Gaulle-Aviatorilor , București
Ești chiriaș?
Contactează-ne și vei primi consultanță gratuită cu privire la:
- condițiile existente în piață
- renegociere termeni contractuali
- opțiuni de relocare
Ești proprietar?
Contactează-ne dacă vrei să fii prezent în cea mai avansată platformă online dedicată închirierii/vânzării de birouri
Contactează-ne




































