Spații de închiriat în Herastrau Office Building
Spații de închiriat într-o clădire de birouri modernă amplasată in imeidata vecinatate a parcului Herastrau, pe str. Ghețarilor nr. 15, sector 1
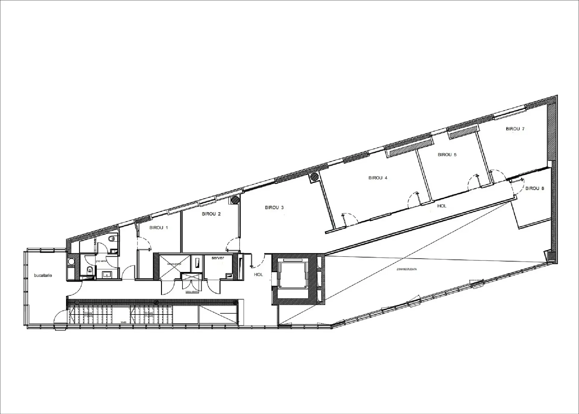
TABEL DETALIAT SUPRAFEȚE DISPONIBILE
| Etaj | Suprafață (m2) | Descriere | Disponibil | |||
| 2 | 363 | open space, 5 birouri, sala de sedinte, GS, spatii de depozitare | Imediat | Poze | Plan | |
| 5 | 209 | compartimentat, 6 birouri,zona receptie, bucatarie, GS; chirie 21€/m2/luna | Imediat | Poze | Plan |
Birouri De Închiriat Sector 1, Zona Herăstrău
Birouri de inchiriat in sectorul 1, in Herastrau Office Building. Cladirea de birouri este amplasata in partea de nord a capitalei, zona Herastrau, la intersectia Strazii Ghetarilor cu Aleea Priporului.
Cladirea este situata vis-a-vis de Ambasada Chinei, intre Strada Nicolae Caramfil (40 metri) si Soseaua Nordului – Parcul Herastrau (150 metri), respectiv la 10 minute de mers de statia de metrou Aurel Vlaicu (cartierul de birouri Barbu Vacarescu).
Accesul auto se poate realiza atat din Strada Ghetarilor, cat si din Aleea Priporului, cu acces din artere majore ale zonei (Str. Nicolae Caramfil, Sos. Nordului, Bulevardul Aviatorilor - Bulevardul Beijing). Datorita locației sale, cladirea de birouri beneficiaza de acces rapid catre principalele zone de birouri ultracentrale si din nord (Charles de Gaulle – Victoriei, Barbu Vacarescu – Dimitrie Pompeiu – Pipera).
Transportul public include statii de autobuz la 5 minute de mers pe jos de cladire, respectiv statia de metrou Aurel Vlaicu si statie de tramvai la 10 minute de mers pe jos.
Herastrau Office Building este o cladire moderna de birouri, livrata in anul 2011, cu o suprafata totala inchiriabila de 1.845 m2. Cladirea se desfasoara pe subsol, parter si 5 etaje si are o suprafata inchiriabila a etajului curent de 350 m2.
Cladirea beneficiaza de 12 locuri de parcare in subteran.
Status Cladire finalizata
Dată finalizare 2011
Niveluri S+P+5
Suprafață închiriabilă 1,845 m²
Suprafață etaj curent 350 m²
Locuri parcare 12
- Parcare proprie
- Cafenea
- Restaurant
- Punct bancar
- ATM
- BMS - Building Management System
- HVAC
- Tavan Suspendat
- Acces Securizat
- Ferestre cu deschidere
- Receptie
- Lift/Lifturi
- Internet Cablu
- CCTV / Supraveghere Video
- Detectoare Fum/Foc
Alte oferte din Caramfil-Nordului
Oferte disponibile: 20
Str. Nicolae Caramfil 79 , Caramfil-Nordului , București
Str. Ghetarilor 23-25 , Caramfil-Nordului , București
Str. Cretei 14 , Caramfil-Nordului , București
Str. Cretei 14 , Caramfil-Nordului , București
Str. Nicolae Caramfil 79 , Caramfil-Nordului , București
Str. Nicolae Caramfil 69 , Caramfil-Nordului , București
Str. Nicolae Caramfil 25 , Caramfil-Nordului , București
Intrarea Murmurului 2-4 , Caramfil-Nordului , București
Sos. Nordului 24-26 , Caramfil-Nordului , București
Str. Ceasornicului 3-7 , Caramfil-Nordului , București
Str. Nicolae Caramfil 75B , Caramfil-Nordului , București
Strada Daniel Danielopolu 4-6 , Caramfil-Nordului , București
Str. Nicolae Caramfil 61C , Caramfil-Nordului , București
Str. Nicolae Caramfil 61C , Caramfil-Nordului , București
Str. Nicolae Caramfil 77 , Caramfil-Nordului , București
Sos. Nordului 102G , Caramfil-Nordului , București
Str. Daniel Danielopolu 30-32 , Caramfil-Nordului , București
Str. Navodari 42 , Caramfil-Nordului , București
Str. Ceasornicului 17 , Caramfil-Nordului , București
Str. Nicolae Caramfil 71-73 , Caramfil-Nordului , București
Ești chiriaș?
Contactează-ne și vei primi consultanță gratuită cu privire la:
- condițiile existente în piață
- renegociere termeni contractuali
- opțiuni de relocare
Ești proprietar?
Contactează-ne dacă vrei să fii prezent în cea mai avansată platformă online dedicată închirierii/vânzării de birouri
Contactează-ne

























