Birouri de inchiriat in Emanoil Porumbaru 25A
Birouri de inchiriat intr-o cladire moderna, amplasata la 7 minute de mers de Piata Charles de Gaulle, sector 1, Bucuresti.
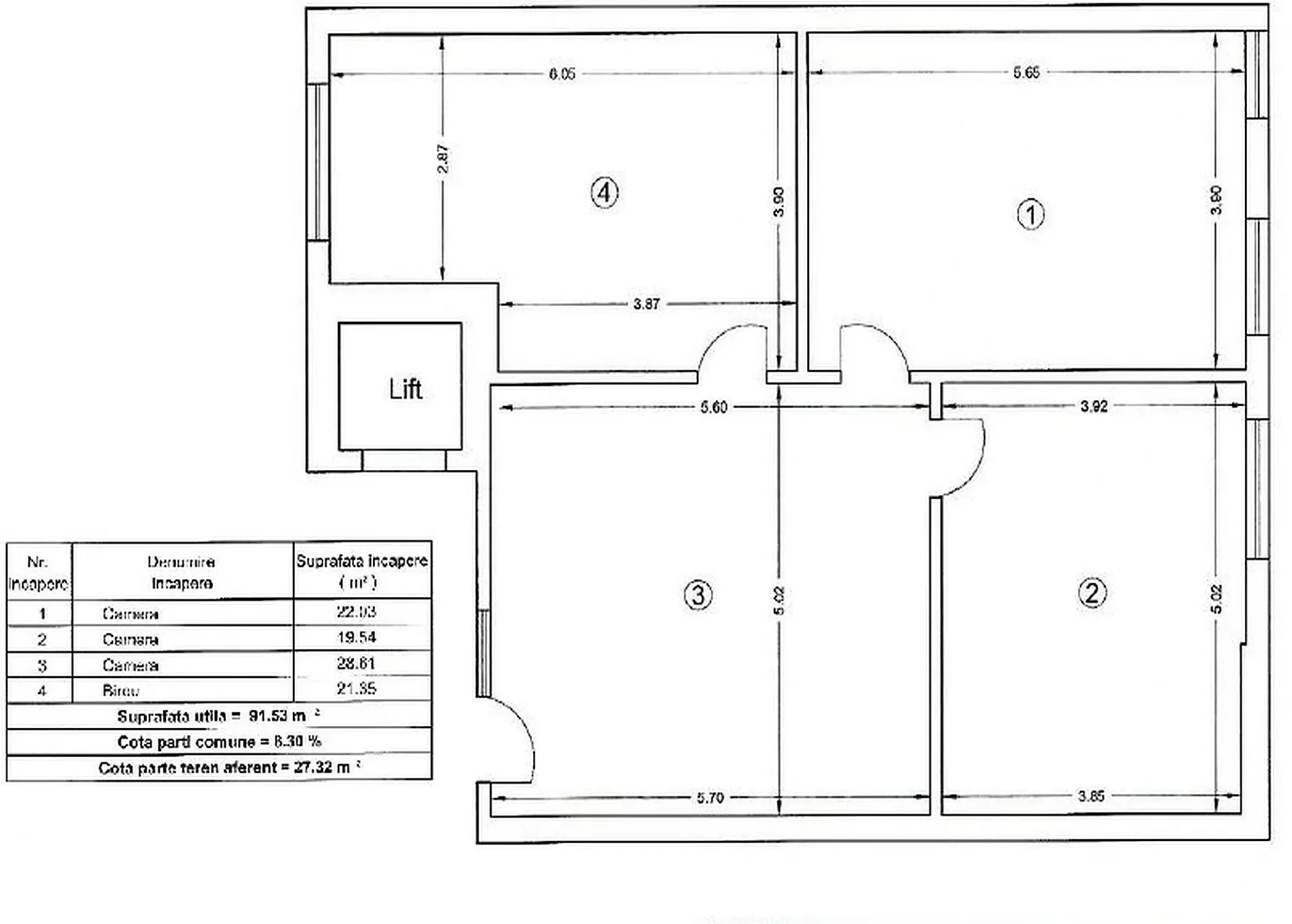
TABEL DETALIAT SUPRAFEȚE DISPONIBILE
| Etaj | Suprafață (m2) | Descriere | Disponibil | |||
| 3 | 100 | suprafata utila 92m2; layout: open space, 3 birouri, chicineta | 01.09.2026 | Poze | Plan |
Spatii de birouri de inchiriat pe Strada Emanoil Porumbaru 25A
Spatii de birouri de inchiriat in sectorul 1, pe strada Emanoil Porumbaru, zona Aviatorilor-Charles de Gaulle, in aria cuprinsa intre Bulevardul Aviatorilor (200 metri) si Soseaua Pavel D. Kiseleff (350 metri).
Cladirea este amplasata la 600 de metri de Piata Charles de Gaulle si 1 km de Piata Victoriei, respectiv la 600 metri de Televiziunea Romana.
Vecinatatile cladirii au functiuni mixte: cladiri de birouri, cladiri rezidentiale interbelice si nou construite, zone de promenda (Parcul Herastrau, Parcul Kiseleff), restaurante si cafenele, servicii etc.
Accesul cu automobilul este facil, fiind realizat din bulevardele majore ale zonei (Aviatorilor, Soseaua Pavel D. Kiseleff, Arhitect Ion Mincu), cu conexiuni excelente din zona centrala si de nord.
Transportul public include statia de metrou Aviatorilor si linii de autobuz la Piata Charles de Gaulle (7 minute de mers de cladire), respectiv tramvai si autobuze la Piata Ion Mihalache (8 minute).
Emanoil Porumbaru 25A este o cladire de birouri finalizata in 2003, desfasurata pe subsol, parter si 5 etaje, cu o suprafata a etajului curent de aproximativ 200 m2.
Cladirea dispune de numeroase facilitati, precum: acces securizat, receptie, lift, tavan suspendat, centrala termica in fiecare spatiu, unitati split de A/C, balcoane, spatii depozitare la subsol etc.
Parcarea se realizeaza pe ambele laturi ale strazilor din zona, precum si de-a lungul Bulevardului Aviatorilor (parcare cu plata).
Status Cladire finalizata
Dată finalizare 2003
Niveluri S+P+5
Suprafață închiriabilă 1,000 m²
Suprafață etaj curent 200 m²
- Aer Conditionat
- Incalzire Centralizata
- Tavan Suspendat
- Acces Securizat
- Ferestre cu deschidere
- Receptie
- Lift/Lifturi
Alte oferte din Charles De Gaulle-Aviatorilor
Oferte disponibile: 28
Bulevardul Aviatorilor 33 , Charles De Gaulle-Aviatorilor , București
Bdul. Maresal Averescu 26-28 , Charles De Gaulle-Aviatorilor , București
Str. Maior Gheorghe Sontu 8-10 , Charles De Gaulle-Aviatorilor , București
Str. Andrei Muresanu 11-13 , Charles De Gaulle-Aviatorilor , București
Bdul. Aviatorilor 47 , Charles De Gaulle-Aviatorilor , București
Str. Alexandrina 19 , Charles De Gaulle-Aviatorilor , București
Strada Col. Constantin Blaremberg 4-6 , Charles De Gaulle-Aviatorilor , București
Bulevardul Aviatorilor 41 , Charles De Gaulle-Aviatorilor , București
Strada Popa Savu 79-81 , Charles De Gaulle-Aviatorilor , București
Str. Puskin 22A , Charles De Gaulle-Aviatorilor , București
Str. Puskin 22A , Charles De Gaulle-Aviatorilor , București
Str. Anton Cehov 2 , Charles De Gaulle-Aviatorilor , București
Str. Pictor Daniel Rosenthal 14 , Charles De Gaulle-Aviatorilor , București
Str. Maior Gheorghe Sontu 6 , Charles De Gaulle-Aviatorilor , București
Str. Alexandrina 19 , Charles De Gaulle-Aviatorilor , București
Bdul. Primaverii 4 , Charles De Gaulle-Aviatorilor , București
Bdul. Aviatorilor 49 , Charles De Gaulle-Aviatorilor , București
Str. Grigore Mora 11 , Charles De Gaulle-Aviatorilor , București
Bd. Aviatorilor 27 , Charles De Gaulle-Aviatorilor , București
Str. Jean Texier 3 , Charles De Gaulle-Aviatorilor , București
Str. Emanoil Porumbaru 93-95 , Charles De Gaulle-Aviatorilor , București
Str. Puskin 10-12 , Charles De Gaulle-Aviatorilor , București
Bdul. Primaverii 19-21 , Charles De Gaulle-Aviatorilor , București
Grigore Mora 37 , Charles De Gaulle-Aviatorilor , București
Piata Charles de Gaulle 15 , Charles De Gaulle-Aviatorilor , București
Calea Dorobantilor 239 , Charles De Gaulle-Aviatorilor , București
Ermil Pangratti 30 A , Charles De Gaulle-Aviatorilor , București
Str. Ermil Pangratti 2 , Charles De Gaulle-Aviatorilor , București
Ești chiriaș?
Contactează-ne și vei primi consultanță gratuită cu privire la:
- condițiile existente în piață
- renegociere termeni contractuali
- opțiuni de relocare
Ești proprietar?
Contactează-ne dacă vrei să fii prezent în cea mai avansată platformă online dedicată închirierii/vânzării de birouri
Contactează-ne


































