Închiriere birouri in Biharia Office Building
Închiriere birouri intr-o cladire cu spații moderne amplasată în zona de Nord a Bucureștiului, zona Baneasa, pe Strada Biharia nr, 26, sector 1.
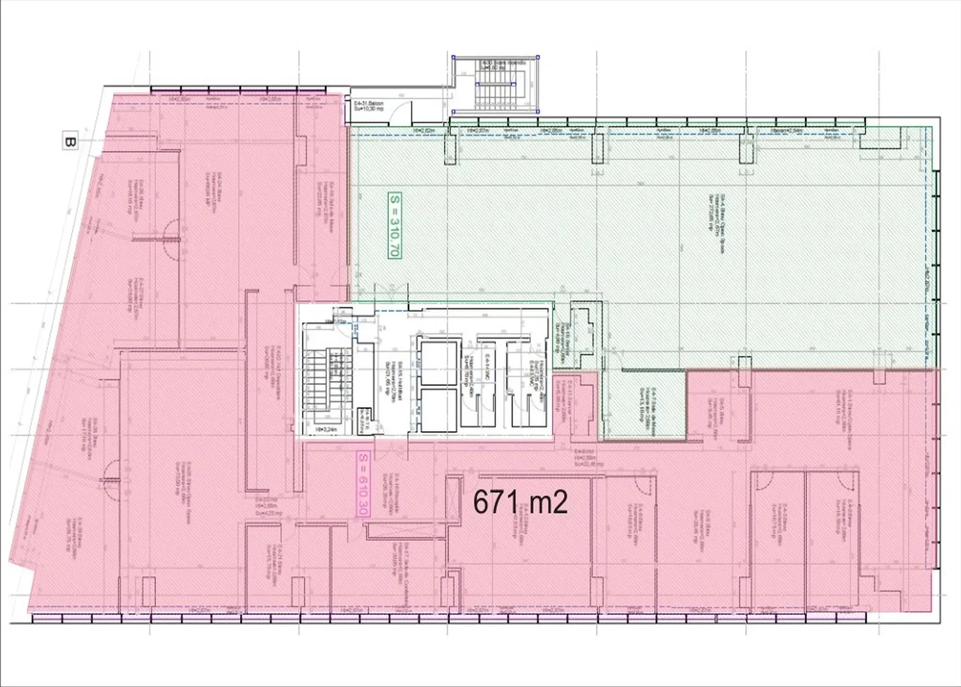
TABEL DETALIAT SUPRAFEȚE DISPONIBILE
| Etaj | Suprafață (m2) | Descriere | Disponibil | |||
| 1 | 348 | Open space / compartimentat; | Imediat | Poze | Plan | |
| 3 | 186 | open space, 4 birouri, chicineta, camera server | Decembrie 2025 | Poze | Plan | |
| 4 | 288 | Open space, 5 birouri, sala de sedinte, chicineta, spatiu de depozitare | Imediat | Plan | ||
| 4 | 670 | open space / compartimentat; birouri, sali de conferinta, bucatarie, GS, camera server | Imediat | Poze | Plan | |
| 5 | 340 | Compartimentat, amenajat cu partitii din sticla, 7 birouri individuale, MR, chicineta + sala de mese; cost 10.5€/m2/luna | Imediat | Plan |
Birouri De Închiriat Sector 1, Zona Băneasa
Birouri de inchiriat in sectorul 1, in cladirea Biharia Office Building, amplasată în nordul Bucureștiului, la ieșirea din capitală către Aeroportul Internațional H. Coandă și Ploiești / Brașov. Clădirea este situată la intersecția străzilor Biharia și Zeletin, la 300 metri de intersecția Biharia cu Bulevardul Aerogării.
Zona Aerogării a cunoscut o dezvoltare importantă în ultimii 10 ani, incluzând acum funcțiuni moderne precum clădiri de birouri, hoteluri, clinici medicale și clădiri rezidențiale.
Clădirea are o accesibilitate bună cu mașina, având access direct către zonele de birouri Barbu Văcărescu (2 km distanță) și N. Caramfil (1.3 km), precum și restul zonelor centrale și de nord. Transportul public este amplasat în distanța pietonală, la intersecția străzilor Biharia și Aerogării, incluzând linii de tramvai și autobuz.
Biharia OB este o clădire modernă de birouri, finalizată în 2008, având subsol, parter și 6 etaje. Clădirea are o suprafață închiriabilă totală de 5.800 m2, cu un etaj curent de 906 m2.
Specificațiile clădirii includ BMS, HVAC, podea înălțată și tavan suspendat, ferestre cu deschidere, acces securizat, generator de back-up, detectoare de fum, etc.
Status Cladire finalizata
Dată finalizare 2008
Niveluri S+P+6
Suprafață închiriabilă 5,800 m²
Suprafață etaj curent 906 m²
Locuri parcare 80
- Servicii receptie
- Parcare proprie
- BMS - Building Management System
- HVAC
- Podea Inaltata
- Tavan Suspendat
- Acces Securizat
- Inaltime utila minim 2,7 metri
- Ferestre cu deschidere
- Receptie
- Paza 24/7
- Lift/Lifturi
- Generator de Back-up
- CCTV / Supraveghere Video
- Detectoare Fum/Foc
- Mocheta
Alte oferte din Aerogării
Oferte disponibile: 6
Str. Eliberarii 14 , Aerogării , București
Str. Ocna Sibiului 46-48 , Aerogării , București
Str. Promoroaca 3A , Aerogării , București
Str. Valiug 32 , Aerogării , București
Str. Pechea 32-36 , Aerogării , București
Str. Biharia 67-77 , Aerogării , București
Ești chiriaș?
Contactează-ne și vei primi consultanță gratuită cu privire la:
- condițiile existente în piață
- renegociere termeni contractuali
- opțiuni de relocare
Ești proprietar?
Contactează-ne dacă vrei să fii prezent în cea mai avansată platformă online dedicată închirierii/vânzării de birouri
Contactează-neVIDEO 360 de grade: puteți schimba unghiul de vizualizare prin click / rotire pe video.
Utilizatorii iPhone: faceți click pe titlul din VIDEO pentru o vizualizare completă în aplicația YouTube.













