Offices for rent in River Plaza
Office spaces for rent in building completed in 2007, located in the Timpuri Noi area, 6 minutes from the Timpuri Noi subway station, sector 4, Bucharest.
Offices for rent in 76 Splaiul Unirii
Office space rental in the central area, in a building located just 3 minutes from the intersection between Splaiul Unirii and Marasesti Boulevard and 5 minutes from the intersection between Splaiul Unirii, Gheorghe Sincai Boulevard and Nerva Traian street.The building is situated 9 minutes from the National Library and 11 minutes away from the Bucharest Tribunal and Piata Unirii
The vicinity of the building include residential buildings, offices buildings, promenade areas ( Carol I Park, Tineretului Park, Unirii Park ), educational institutions, restaurants and shops.
The car acces is made from Splaiul Unirii, arteries with 2 lanes per direction, which ensure the connection with the south and center of the city. Public transport include the Timpuri Noi metro station at 5 minutes and bus and tram stops at 2-5 minutes walk from the building.
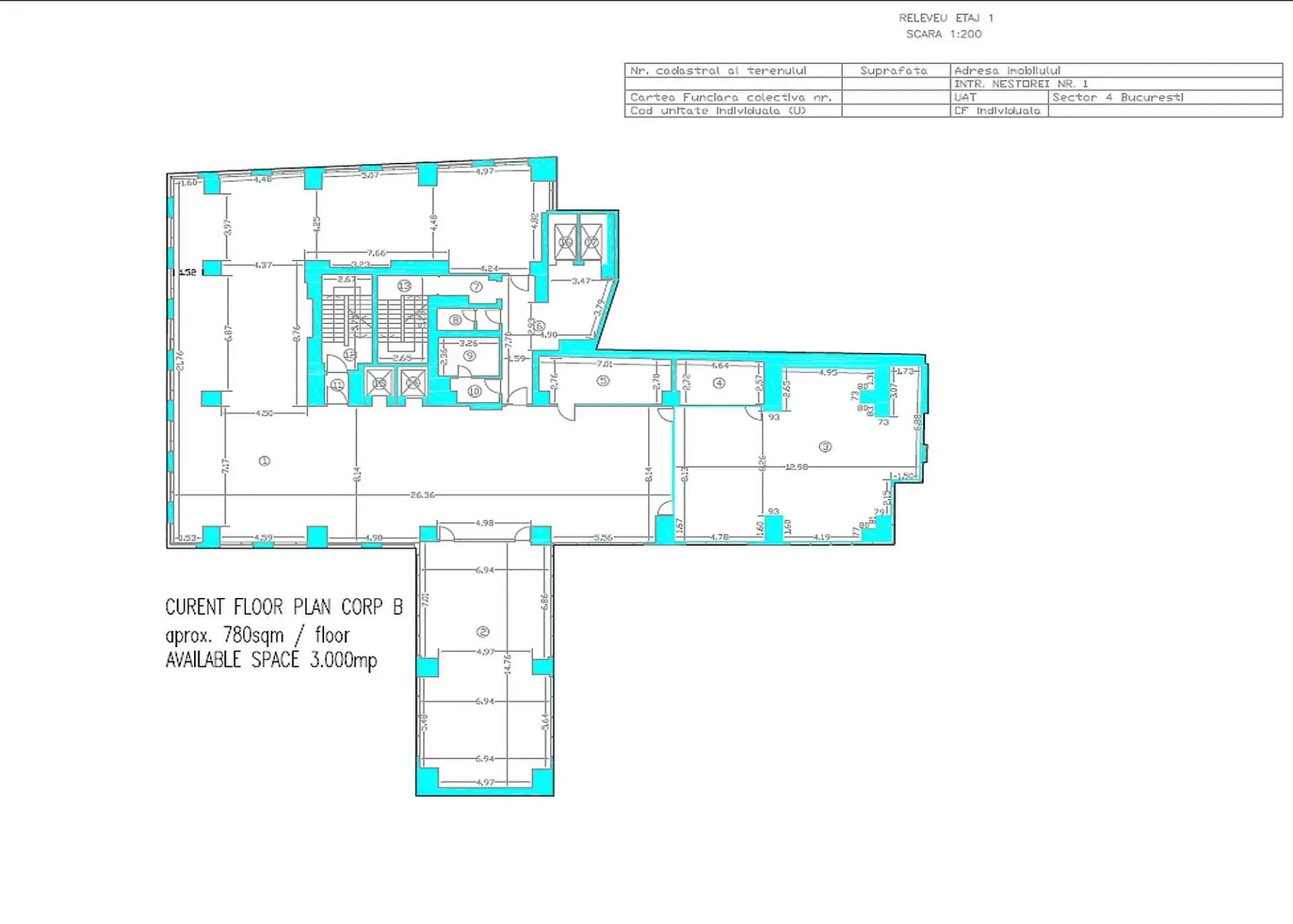
River Plaza is an office building completed in 2007, with a total rental area of 13,305 sq m, developed on an underground level, ground floor and 11 upper floors, with a current floor area of 783 sq m. The building benefits from specification such as HVAC, elevator, smoke detectors, 24/7 security, air conditioning, suspended ceiling, carpet, etc.
The building has parking spaces both underground and inside the yard
Status Existing
Completion date 2007
Levels S+P+9 / 11
Rentable area 13,305 m²
Current floor area 783 m²
Parking spaces 85
- Reception services
- Own parking
- BREEAM
- HVAC
- Raised Floor
- Suspended Ceiling
- Secure Access
- Opening windows
- Reception
- 24/7 security
- Elevator/Elevators
- CCTV / Video Surveillance
- Smoke/Fire Detectors
- Carpet
Other offers from Timpuri Noi
Available offers: 7
27-33 Street Nerva Traian , Timpuri Noi , București
58 Foisorului Street , Timpuri Noi , București
58 Foisorului Street , Timpuri Noi , București
165 Splaiul Unirii , Timpuri Noi , București
96 Dumitru Papazoglu Street , Timpuri Noi , București
50 Anastasie Panu Street , Timpuri Noi , București
165 Splaiul Unirii , Timpuri Noi , București
Are you a tenant?
Contact us and you will receive a free consultation regarding:
- existing market conditions
- renegotiation of contractual terms
- relocation options
Are you an owner?
Contact us if you want to be present in the most advanced online platform dedicated to renting/selling offices
Contact usVIDEO 360 degrees: you can change the viewing angle by clicking / rotating the video.
iPhone users: click the title in the VIDEO for a full view in the YouTube app.





















